東京都千代田区神田西福田町(神田駅)の賃貸:物件詳細
交通 所在地 |
駅徒歩 |
賃料 管理費等 |
敷金/保証金 礼金 |
間取り 面積 |
物件種目 築年月 |
|
JR山手線/神田
東京都千代田区神田西福田町
|
5分
|
25万円
15,000円
|
1ヶ月 / なし
1ヶ月
|
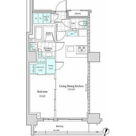
1LDK
45.75m²
|
賃貸マンション
2018年11月(築7年)
|
ペット相談、デザイナーズ、常時ゴミ出し可能、最上階、二人入居可、24時間セキュリティー、24時間換気システム、外観タイル張り、IT重説対応物件、保証人不要
|
|
間取図
|
外観
|
<
その他の画像
>
|
| 交通 | JR山手線 神田駅 徒歩5分 |
|---|
| その他の交通 | 東京メトロ日比谷線 秋葉原駅 徒歩10分 東京メトロ半蔵門線 三越前駅 徒歩7分 |
| 所在地 |
東京都千代田区神田西福田町
|
| 物件種目 |
賃貸マンション |
| 賃料 |
25万円 |
管理費等 |
15,000円 |
| 敷金 / 保証金 |
1ヶ月 / なし |
礼金 |
1ヶ月 |
| 敷引 |
- |
保証金償却 |
- |
| その他一時金 |
駆付けサポート24:16,500円、鍵交換代等:33,000円~ |
保険等 |
要 |
| 維持費等 |
- |
クレジットカード決済 |
初期費用可 賃料可 |
| 間取り |
1LDK(LDK13.1帖 洋室5.5帖) |
専有面積 |
45.75m² |
| 築年月 |
2018年11月(築7年)
|
階建 / 階 |
12階建 / 12階 |
| 建物構造 |
RC |
総戸数 |
- |
| 主要採光面 |
北 |
駐車場 |
無 |
| バイク置き場 |
- |
駐輪場 |
有 |
| 建物名・部屋番号 |
|
ペット |
相談 |
| アピールポイント |
■ クレジット決済対応可能物件 ■ 当社未掲載物件もまとめてご相談くださいませ。 |
| リフォーム履歴 |
- |
| リノベーション履歴 |
- |
| 備考 |
賃貸保証等:加入要(詳細はお問い合わせください。)
管理形態/管理員の勤務形態:-/巡回
IT重説対応物件、管理人巡回
■都心部でのお部屋探しは賃貸専門店の【 御茶ノ水不動産スーペリアホーム 】にお任せ下さい。当社掲未掲載の他社様公開物件も含め、まとめてご案内を承っております。
『オンライン内見』『社用車でのご案内』『現地でのお待合わせ』など、お客様のご都合に合わせて臨機応変に対応をさせていただいておりますのでお気軽にお問合せ、ご相談くださいませ。
|
| エネルギー消費性能 |
- |
| 断熱性能 |
- |
| 目安光熱費 |
- |
| バス・トイレ |
バス・トイレ別、浴室乾燥機、オートバス、追焚機能、洗面所独立、洗面台、シャワー、温水洗浄便座、トイレ |
| キッチン |
カウンターキッチン、システムキッチン、3口以上コンロ、ガスコンロ付、ガスコンロ可、グリル |
| セキュリティー |
モニター付オートロック、オートロック、モニター付インターホン、防犯カメラ、火災警報器(報知機) |
| 収納 |
全居室収納、ウォークインクローゼット、収納スペース、クローゼット、シューズボックス |
| 設備・サービス |
室内洗濯機置場、給湯、全居室フローリング、フローリング、都市ガス、エアコン、複層ガラス |
| TV・通信 |
インターネット対応、インターネット使用料無料、光ファイバー、CS、BS端子、マルチメディアコンセント |
| その他 |
宅配BOX、バルコニー、駐輪場、エレベーター |
| 契約期間 |
2年 |
現況 |
空家 |
| 条件等 |
- |
入居可能時期 |
即時 |
| 更新料 |
新賃料 1ヶ月 |
物件番号 |
1004191483 |
| 情報公開日 |
2025年10月15日 |
次回更新予定日 |
2025年10月29日 |
| ケータイ用バーコード |
- スマートフォンでこの物件を見る
- スマートフォンからもこの物件をご覧になれます。
|
※「-」と表示されている項目については、情報提供会社にご確認ください。
| 周辺施設 |
まいばすけっと 日本橋本町4丁目店 |
| 距離 |
454m |
写真を見る |
| 周辺施設 |
三越前駅小伝馬町歯科ハルデンタルオフィス |
| 距離 |
433m |
写真を見る |
| 周辺施設 |
神田今川橋郵便局 |
| 距離 |
249m |
写真を見る |
| 周辺施設 |
三井住友銀行 神田駅前支店 |
| 距離 |
256m |
写真を見る |
| 周辺施設 |
ポニークリーニング 小伝馬町店 |
| 距離 |
575m |
写真を見る |
ここから簡単にお問い合わせをすることができます。
(SSLでの暗号化での送信を希望されるお客さまは
こちら
よりお問い合わせください)
お問い合わせを行う前に
「個人情報の取り扱いについて」を必ずお読みください。
「個人情報の取り扱いについて」に同意いただいた場合は「上記にご同意の上 確認画面へ進む」のボタンをクリックしてください。
個人情報の取り扱いについて
皆さまが送付された個人情報はアットホーム(株)のサーバを経由し、お問い合わせ先の不動産会社にメールまたはFAXにて転送されるためアットホーム(株)にも保管されます。アットホーム(株)で保管された個人情報の取り扱いについては、【こちら】をご覧ください。
また、本画面でご記入いただいた個人情報は、お問い合わせ先の不動産会社でも保管します。 お問い合わせ先の不動産会社が保管する個人情報の取り扱いについては、不動産会社に直接お問い合わせください。
東京都知事免許(2)第99564号 |
|---|
- 交通:
- 東京メトロ丸ノ内線/御茶ノ水駅 徒歩5分
- 東京都文京区本郷3丁目2-2 リベール御茶ノ水ビル1階
- TEL:
- 03-6801-5861
- FAX:
- 03-6801-5862
- 所属団体:
- (公社)東京都宅地建物取引業協会会員(公社)首都圏不動産公正取引協議会加盟
取引態様:仲介  - 00261345
|
- スマートフォンで
この不動産会社を見る

|
- 提携サイト等より掲載されている物件情報につきましては、不動産会社詳細情報にリンクされていないものがあります。
- 物件に関するお問合せは、物件詳細ページの「情報提供会社」に表示されている不動産会社へ直接お願いいたします。
- 間取図は、現況を優先させていただきます。
- 映像は物件の一部を撮影したものです。物件の契約にあたっての最終判断はご自身の判断に基づいて行ってください。
- 仲介手数料について

アットホームは物件情報の適正化に努めております。
内容に誤りがある場合にはこちらへご連絡ください。