愛知県岡崎市明大寺町字耳取(東岡崎駅)の賃貸:物件詳細
交通 所在地 |
駅徒歩 |
賃料 管理費等 |
敷金/保証金 礼金 |
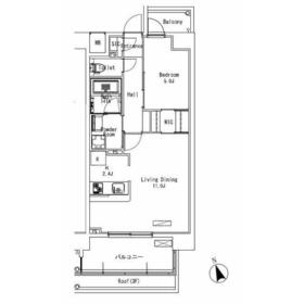
間取り 面積 |
物件種目 築年月 |
名鉄名古屋本線/東岡崎
愛知県岡崎市明大寺町字耳取
|
3分
|
11.1万円
8,000円
|
1ヶ月 / なし
1ヶ月
|
1LDK
45.19m²
|
賃貸マンション
2025年1月
|
間取図
|
外観
|
<
その他の画像
>
|
交通 | 名鉄名古屋本線 東岡崎駅 徒歩3分 |
---|
その他の交通 | 名鉄名古屋本線 岡崎公園前駅 徒歩25分 愛知環状鉄道 中岡崎駅 徒歩25分 |
所在地 |
愛知県岡崎市明大寺町字耳取
|
物件種目 |
賃貸マンション |
賃料 |
11.1万円 |
管理費等 |
8,000円 |
敷金 / 保証金 |
1ヶ月 / なし |
礼金 |
1ヶ月 |
敷引 |
- |
保証金償却 |
- |
その他一時金 |
室内清掃費:59,650円 |
保険等 |
要 |
維持費等 |
口座振替事務手数料:110円/月 |
間取り |
1LDK |
専有面積 |
45.19m² |
築年月 |
2025年1月
|
階建 / 階 |
10階建 / 9階 |
建物構造 |
RC |
総戸数 |
- |
主要採光面 |
南西 |
駐車場 |
無 |
バイク置き場 |
- |
駐輪場 |
- |
建物名・部屋番号 |
SLR東岡崎駅前 904 |
ペット |
-
|
リフォーム履歴 |
- |
リノベーション履歴 |
- |
備考 |
賃貸保証等:利用可(初回保証委託料(最低15,000円):月額賃料等の50%、 2年目以降:10,000円/年)
管理形態/管理員の勤務形態:-/巡回
バルコニー:10m²
管理人巡回
共用部には宅配ボックスを設置しているため、急なお出かけや不在の際にも荷物を受け取ることができます!室内設備は浴室乾燥機・洗面所独立など大変充実!エントランスと玄関の2つのロックを備えているので防犯対策につながるオートロック機能付きです!利便性の高い暮らしをするなら岡崎市でいかがでしょうか!賃貸住宅情報をお探しの際には、ぜひお気軽に当社までご連絡ください!しっかりとサポートいたします(^_^)
賃貸戸数:33戸
|
エネルギー消費性能 |
- |
断熱性能 |
- |
目安光熱費 |
- |
バス・トイレ |
バス・トイレ別、浴室乾燥機、追焚機能、洗面所独立、洗面所、トイレ |
キッチン |
システムキッチン、グリル |
セキュリティー |
オートロック |
収納 |
ウォークインクローゼット、収納スペース、クローゼット |
設備・サービス |
室内洗濯機置場、洗濯機置場、フローリング、エアコン |
TV・通信 |
- |
その他 |
宅配BOX、バルコニー、エレベーター |
契約期間 |
2年 |
現況 |
空家 |
条件等 |
- |
入居可能時期 |
即時 |
更新料 |
- |
物件番号 |
1004348693 |
情報公開日 |
2025年8月15日 |
次回更新予定日 |
2025年10月30日 |
ケータイ用バーコード |
- スマートフォンでこの物件を見る
- スマートフォンからもこの物件をご覧になれます。
|
※「-」と表示されている項目については、情報提供会社にご確認ください。
周辺施設 |
岡崎公園前駅 |
距離 |
2002m |
写真を見る |
ここから簡単にお問い合わせをすることができます。
(SSLでの暗号化での送信を希望されるお客さまは
こちら
よりお問い合わせください)
お問い合わせを行う前に
「個人情報の取り扱いについて」を必ずお読みください。
「個人情報の取り扱いについて」に同意いただいた場合は「上記にご同意の上 確認画面へ進む」のボタンをクリックしてください。
個人情報の取り扱いについて
皆さまが送付された個人情報はアットホーム(株)のサーバを経由し、お問い合わせ先の不動産会社にメールまたはFAXにて転送されるためアットホーム(株)にも保管されます。アットホーム(株)で保管された個人情報の取り扱いについては、【こちら】をご覧ください。
また、本画面でご記入いただいた個人情報は、お問い合わせ先の不動産会社でも保管します。 お問い合わせ先の不動産会社が保管する個人情報の取り扱いについては、不動産会社に直接お問い合わせください。
国土交通大臣免許(14)第2018号 |
---|
- 交通:
- 名鉄名古屋本線/東岡崎駅 徒歩2分
- 愛知県岡崎市明大寺本町4丁目28番地
- TEL:
- 0564-22-8200
- FAX:
- 0564-22-8205
取引態様:仲介  - 40401836
|
- スマートフォンで
この不動産会社を見る

|
- 提携サイト等より掲載されている物件情報につきましては、不動産会社詳細情報にリンクされていないものがあります。
- 物件に関するお問合せは、物件詳細ページの「情報提供会社」に表示されている不動産会社へ直接お願いいたします。
- 間取図は、現況を優先させていただきます。
- 映像は物件の一部を撮影したものです。物件の契約にあたっての最終判断はご自身の判断に基づいて行ってください。
- 仲介手数料について

アットホームは物件情報の適正化に努めております。
内容に誤りがある場合にはこちらへご連絡ください。