不動産 賃貸 マンション等の住宅情報:埼玉住まい情報


東京都墨田区緑2丁目(両国駅)の賃貸:物件詳細

  • 物件詳細
  • 情報の見方
  • 印刷用画面
交通
所在地
駅徒歩 賃料
管理費等
敷金/保証金
礼金
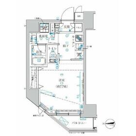
間取り
面積
物件種目
築年月

都営大江戸線/両国

東京都墨田区緑2丁目

8分

11.1万円

12,000円

1ヶ月 / なし

1ヶ月

1K

25.73m²

賃貸マンション

2018年9月(築7年6ヶ月)

おすすめPOINTペット相談、分譲タイプ、常時ゴミ出し可能、角部屋、24時間セキュリティー、24時間換気システム、外観タイル張り、IT重説対応物件、保証人不要

おすすめコメント  スタッフ: 佐藤 紳

機能性など細部までにこだわりを追求した高品質のお住まい!

間取図

間取図

外観

外観

<
その他の画像
  • リビング
  • バス/シャワー
  • エントランス
  • 室内
  • 玄関
  • 収納
  • キッチン
  • トイレ
  • 洗面
  • ショッピング施設
  • ショッピング施設
  • コンビニ
  • コンビニ
  • ショッピング施設
  • 郵便局
  • 飲食店
  • レジャー・観光
>
    • とりあえず保存
    • お問い合わせ
    交通

    都営大江戸線 両国駅 徒歩8分

    その他の交通

    都営新宿線 森下駅 徒歩9分

    JR総武線 錦糸町駅 徒歩18分

    所在地 東京都墨田区緑2丁目
    物件種目 賃貸マンション
    賃料 11.1万円 管理費等 12,000円
    敷金 / 保証金 1ヶ月 / なし 礼金 1ヶ月
    敷引 保証金償却
    その他一時金 なし、鍵交換代等:35,200円~ 保険等 要 2年 20,000円
    維持費等 クレジットカード決済 初期費用可 賃料可
    間取り 1K 専有面積 25.73m²
    築年月 2018年9月(築7年6ヶ月) 階建 / 階 10階建 / 5階
    建物構造 RC 総戸数 33戸
    主要採光面 西 駐車場
    バイク置き場 駐輪場
    建物名・部屋番号 クレイシア両国レジェール 501 ペット 相談
    アピールポイント 東京を中心に関東人気エリアの賃貸マンション・アパート情報をご紹介いたします!明るいスタッフ全員にてお迎えいたします!初期費用のお支払いはPAYPAYを含めクレジットカード決済もご相談できます!ご来店頂きましたお客様にはフリードリンクサービスにてゆっくりお部屋探しも出来ます。時間のない方、遠方のお客様にはIT重説もご対応しております。創業42年直営110店舗以上のネットワークであなたのベストハウスお探しいたします!
    リフォーム履歴
    リノベーション履歴
    備考
    賃貸保証等:加入要(賃貸保証料:0.40ヶ月 保証料(初回契約時)40%、保証料(年間)10,000円、プラン有(新日本信用保証の場合 口座振替手数料216円(税込)/月))
    管理形態/管理員の勤務形態:-/巡回
    IT重説対応物件、管理人巡回
    ペット飼育時保証金2ヶ月。※短期解約違約金有※【初期費用一部クレジット決済相談可】
    エネルギー消費性能
    断熱性能
    目安光熱費
    バス・トイレ バス・トイレ別、浴室暖房、浴室乾燥機、洗面所独立、洗面所、洗面台、シャワー、温水洗浄便座、トイレ
    キッチン システムキッチン、独立型キッチン、2口コンロ、ガスコンロ付、グリル
    セキュリティー モニター付オートロック、オートロック、モニター付インターホン、ディンプルキー、ダブルロックドア、防犯カメラ、火災警報器(報知機)
    収納 全居室収納、収納スペース、クローゼット、シューズボックス
    設備・サービス 全居室エアコン、室内洗濯機置場、都市ガス給湯、給湯、全居室フローリング、フローリング、都市ガス、エアコン、人感センサー付照明
    TV・通信 インターネット対応、インターネット使用料無料、CS、BS端子
    その他 宅配BOX、バルコニー、駐輪場、エレベーター
    契約期間 2年 現況 居住中
    条件等 入居可能時期 2026年2月中旬予定
    更新料 新賃料 1ヶ月 物件番号 1004405874
    情報公開日 2025年12月25日 次回更新予定日 2026年2月8日
    ケータイ用バーコード

    QRコード

    スマートフォンでこの物件を見る
    スマートフォンからもこの物件をご覧になれます。
    ※「-」と表示されている項目については、情報提供会社にご確認ください。

    この物件の周辺情報

    周辺施設 まいばすけっと墨田緑2丁目店
    距離 169m
    周辺施設 ライフ菊川店
    距離 359m
    周辺施設 セブンイレブン墨田立川3丁目店
    距離 281m
    周辺施設 サンクス墨田立川三丁目店
    距離 448m
    周辺施設 どらっぐぱぱす両国店
    距離 626m
    周辺施設 墨田菊川郵便局
    距離 998m
    周辺施設 吉野家両国店
    距離 609m
    周辺施設 東京都江戸東京博物館
    距離 930m

    クイックお問い合わせ

    ここから簡単にお問い合わせをすることができます。
    (SSLでの暗号化での送信を希望されるお客さまは こちら よりお問い合わせください)

    お問い合わせ内容(必須)
    お名前(必須) 姓  名 
    メールアドレス(必須)
    ※携帯電話のメールアドレスをご入力される方はこちらをご確認ください
    電話番号(必須)
    - -

    ※入力いただいた電話番号へSMSまたは音声でパスワードをご連絡します。

    携帯電話の番号をご入力の方へ

    携帯電話の番号をご入力の方へ
    確認画面にて送信ボタンをクリックするとSMSが携帯電話に届きます。
    そのSMSに記載のパスワード(認証番号)を入力し、お問い合わせを完了してください。
    尚、SMSの送信者番号は 0005 202 760 となります。
    これはアットホームの固定番号です。

    備考欄 希望条件、物件案内希望日、質問などがございましたらご記入ください。
    お問い合わせを行う前に「個人情報の取り扱いについて」を必ずお読みください。
    「個人情報の取り扱いについて」に同意いただいた場合は「上記にご同意の上 確認画面へ進む」のボタンをクリックしてください。

    個人情報の取り扱いについて

    皆さまが送付された個人情報はアットホーム(株)のサーバを経由し、お問い合わせ先の不動産会社にメールまたはFAXにて転送されるためアットホーム(株)にも保管されます。アットホーム(株)で保管された個人情報の取り扱いについては、【こちら】をご覧ください。
    また、本画面でご記入いただいた個人情報は、お問い合わせ先の不動産会社でも保管します。 お問い合わせ先の不動産会社が保管する個人情報の取り扱いについては、不動産会社に直接お問い合わせください。

    情報提供会社

    情報提供会社

    (株)タウンハウジング東京 錦糸町店

    国土交通大臣免許(1)第9926号

    交通:
    JR総武本線/錦糸町駅 徒歩3分
    東京都墨田区江東橋2丁目14-6 JU錦糸町駅前ビル1階
    TEL:
    03-3634-6055
    FAX:
    03-3634-6056
    所属団体:
    所属団体未加入会員

    取引態様:仲介

    • 会社情報
    • 00270804
    スマートフォンで
    この不動産会社を見る
    QRコード
    • とりあえず保存
    • お問い合わせ
    • 提携サイト等より掲載されている物件情報につきましては、不動産会社詳細情報にリンクされていないものがあります。
    • 物件に関するお問合せは、物件詳細ページの「情報提供会社」に表示されている不動産会社へ直接お願いいたします。
    • 間取図は、現況を優先させていただきます。
    • 映像は物件の一部を撮影したものです。物件の契約にあたっての最終判断はご自身の判断に基づいて行ってください。
    • 仲介手数料について仲介手数料

    アットホームは物件情報の適正化に努めております。 内容に誤りがある場合にはこちらへご連絡ください。

    【埼玉住まい情報】では、日本全国の物件から賃貸マンションや賃貸アパート・賃貸一戸建て等の賃貸住宅情報、新築マンション・分譲マンションや中古マンション等の売買マンション情報、新築一戸建てや中古一戸建てなどの戸建住宅、 土地など、総合的な不動産住宅情報検索サービスを提供致します。
    【埼玉住まい情報】から、選りすぐりの不動産物件を探してみましょう。

    【免責事項】
    このコーナーの運営はアットホーム株式会社(https://www.athome.co.jp/)が行っています。
    このコーナーに掲載している物件情報は、「アットホーム不動産情報ネットワーク」に加盟する不動産会社等(情報提供元)から提供されています。信頼性の高い情報提供が行えるよう、最大限の努力をしておりますが、その内容を保証するものではありません。 利用者のみなさまと各情報提供元との取引に起因する損害および情報が掲載されたことに起因する損害等については、株式会社イーシティ埼玉、およびアットホームは一切責任を負いません。
    各物件情報の内容や画像等はすべて現況を優先させていただきます。
    お取引等(お取引の準備、資金調達等を含みます)の際には、内容や契約条件等について、各情報提供元より十分な説明を受け、ご自身でご確認の上、判断してください。
    このコーナーへの物件情報のご掲載、その他不動産業務ソリューション等についての不動産会社様のお問合せはこちらからお願いいたします。

    物件画像: