東京都江戸川区西小岩4丁目(小岩駅)の賃貸:物件詳細
交通 所在地 |
駅徒歩 |
賃料 管理費等 |
敷金/保証金 礼金 |
間取り 面積 |
物件種目 築年月 |
|
JR総武線/小岩
東京都江戸川区西小岩4丁目
|
5分
|
9万円
10,000円
|
なし / なし
1.5ヶ月
|
1K
25.18m²
|
賃貸マンション
2007年2月(築19年2ヶ月)
|
ペット相談、分譲タイプ、常時ゴミ出し可能、角部屋、南向き、二人入居可、24時間換気システム、外観タイル張り、保証人不要
|
|
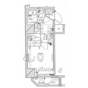
間取図
|
外観
|
<
その他の画像
>
|
| 交通 | JR総武線 小岩駅 徒歩5分 |
|---|
| その他の交通 | 京成本線 京成小岩駅 徒歩12分 京成本線 江戸川駅 徒歩15分 |
| 所在地 |
東京都江戸川区西小岩4丁目
|
| 物件種目 |
賃貸マンション |
| 賃料 |
9万円 |
管理費等 |
10,000円 |
| 敷金 / 保証金 |
なし / なし |
礼金 |
1.5ヶ月 |
| 敷引 |
- |
保証金償却 |
- |
| その他一時金 |
Smile Support 24:22,000円、契約事務手数料:5,500円、室内清掃費用:44,000円、鍵交換代等:27,500円~ |
保険等 |
要 2年 20,000円 |
| 維持費等 |
- |
| 間取り |
1K(洋7.3) |
専有面積 |
25.18m² |
| 築年月 |
2007年2月(築19年2ヶ月)
|
階建 / 階 |
14階建 / 8階 |
| 建物構造 |
RC |
総戸数 |
- |
| 主要採光面 |
南 |
駐車場 |
- |
| バイク置き場 |
- |
駐輪場 |
- |
| 建物名・部屋番号 |
リファイズ小岩 804 |
ペット |
相談 |
| アピールポイント |
室内設備はエアコン・システムキッチン・CSなど大変充実しております。共用部にはエレベータ・敷地内ごみ置き場など様々な設備やサービスが揃っているので便利です。地上14階建てのマンションです。マンションタイプのお部屋です。脱衣所付きのマンションです。入居してからペットの飼育を始めたい方は、事前にご相談ください。こちらのマンションからは2駅が近くにあり、移動範囲も広がります。畳部屋の使用頻度が低い方向けの全居室フローリング設置。初の一人暮らしをきっかけにお料理も楽しめる1Kです。 |
| リフォーム履歴 |
- |
| リノベーション履歴 |
- |
| 備考 |
賃貸保証等:加入要(いえらぶ安心保証 月払費用総額の50%~※口座振替手数料:月々440円/年間更新料:10,000円 ※審査次第ではクレディセゾン、にじいろライフへ変更)
管理形態/管理員の勤務形態:-/巡回
管理人巡回
セキュリティ面は、TVインターホン・オートロックなど充実しているので安心して生活できます。共用部には宅配ボックス・ゴミ出し24時間OKなどが備わっておりとても充実しています。収納はクロゼット・シューズボックスなど豊富なので、衣類や履き物の整理がしやすく便利です。納得できる住まい選びを行っていきませんか。住まい環境はより良いものにしていきましょう。まずはこちらからご覧ください。
■ペット飼育可能な物件の場合、飼育時敷金+1ヶ月/償却■
■半年以内に解約の場合、0.5ヶ月分の短期解約違約金有■
■クリーニング費用契約時支払い■物件内喫煙不可■
■空き予定の物件は先行契約■法人契約:諸条件相談可能■
■ネット掲載:全媒体不可■解約予告:2ヶ月前■
■契約事務手数料:5,000円(税別)■
■更新事務手数料:5,000円(税別)■
|
| エネルギー消費性能 |
- |
| 断熱性能 |
- |
| 目安光熱費 |
- |
| バス・トイレ |
バス・トイレ別、浴室乾燥機、洗面所独立、洗面所、洗面台、温水洗浄便座、トイレ |
| キッチン |
システムキッチン、2口コンロ、ガスコンロ可 |
| セキュリティー |
モニター付オートロック、オートロック、モニター付インターホン |
| 収納 |
収納スペース、クローゼット、シューズボックス |
| 設備・サービス |
室内洗濯機置場、洗濯機置場、全居室フローリング、フローリング、都市ガス、エアコン、人感センサー付照明 |
| TV・通信 |
インターネット対応、CS、BS端子 |
| その他 |
宅配BOX、バルコニー、エレベーター |
| 契約期間 |
2年 |
現況 |
居住中 |
| 条件等 |
- |
入居可能時期 |
2026年3月下旬予定 |
| 仲介手数料 |
1.1ヶ月 |
|
|
| 更新料 |
新賃料 1ヶ月 |
物件番号 |
1008533081 |
| 情報公開日 |
2026年3月5日 |
次回更新予定日 |
2026年3月19日 |
| ケータイ用バーコード |
- スマートフォンでこの物件を見る
- スマートフォンからもこの物件をご覧になれます。
|
※「-」と表示されている項目については、情報提供会社にご確認ください。
ここから簡単にお問い合わせをすることができます。
(SSLでの暗号化での送信を希望されるお客さまは
こちら
よりお問い合わせください)
お問い合わせを行う前に
「個人情報の取り扱いについて」を必ずお読みください。
「個人情報の取り扱いについて」に同意いただいた場合は「上記にご同意の上 確認画面へ進む」のボタンをクリックしてください。
個人情報の取り扱いについて
皆さまが送付された個人情報はアットホーム(株)のサーバを経由し、お問い合わせ先の不動産会社にメールまたはFAXにて転送されるためアットホーム(株)にも保管されます。アットホーム(株)で保管された個人情報の取り扱いについては、【こちら】をご覧ください。
また、本画面でご記入いただいた個人情報は、お問い合わせ先の不動産会社でも保管します。 お問い合わせ先の不動産会社が保管する個人情報の取り扱いについては、不動産会社に直接お問い合わせください。
Asset Plus(株)東京都知事免許(2)第105228号 |
|---|
- 交通:
- JR山手線/恵比寿駅 徒歩1分
- 東京都渋谷区恵比寿4丁目3-14 恵比寿SSビル9階
- TEL:
- 03-6712-5390
- FAX:
- 03-6712-5393
- 所属団体:
- (公社)全日本不動産協会会員(公社)首都圏不動産公正取引協議会加盟
取引態様:仲介 |
- 提携サイト等より掲載されている物件情報につきましては、不動産会社詳細情報にリンクされていないものがあります。
- 物件に関するお問合せは、物件詳細ページの「情報提供会社」に表示されている不動産会社へ直接お願いいたします。
- 間取図は、現況を優先させていただきます。
- 映像は物件の一部を撮影したものです。物件の契約にあたっての最終判断はご自身の判断に基づいて行ってください。
- 仲介手数料について

アットホームは物件情報の適正化に努めております。
内容に誤りがある場合にはこちらへご連絡ください。