不動産 賃貸 マンション等の住宅情報:埼玉住まい情報


東京都江東区亀戸4丁目(亀戸駅)の賃貸:物件詳細

  • 物件詳細
  • 情報の見方
  • 印刷用画面
交通
所在地
駅徒歩 賃料
管理費等
敷金/保証金
礼金
間取り
面積
物件種目
築年月

JR総武線/亀戸

東京都江東区亀戸4丁目

10分

10.3万円

10,000円

なし / なし

1ヶ月

1K

25.80m²

賃貸マンション

2015年9月(築10年2ヶ月)

おすすめPOINTデザイナーズ、南向き、24時間換気システム

おすすめコメント  スタッフ: 富井 竜大

【お部屋探しはクレアスレント】★複数路線利用可の好立地/物件周辺の生活環境良好★女性にも安心のオートロックセキュリティ!システムキッチン・浴室乾燥機・温水洗浄便座・独立洗面台・宅配BOXなど設備充実♪

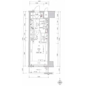
間取図

間取図

外観

外観

<
その他の画像
  • リビング
  • 室内
  • キッチン
  • 洗面
  • バス/シャワー
  • トイレ
  • 収納
  • 室内
  • エントランス
  • その他
  • その他
  • 共有部分
  • その他
  • 共有部分
  • 設備
  • 駐車場
  • 収納
  • その他
  • その他
  • 販売店
  • 販売店
  • 販売店
  • ショッピング施設
  • コンビニ
>
    • とりあえず保存
    • お問い合わせ
    交通

    JR総武線 亀戸駅 徒歩10分

    その他の交通

    東武亀戸線 亀戸水神駅 徒歩5分

    東京メトロ半蔵門線 錦糸町駅 徒歩24分

    所在地 東京都江東区亀戸4丁目
    物件種目 賃貸マンション
    賃料 10.3万円 管理費等 10,000円
    敷金 / 保証金 なし / なし 礼金 1ヶ月
    敷引 保証金償却
    その他一時金 事務手数料:11,000円、24時間駆け付け対応:22,000円、室内清掃費用:77,000円、鍵交換代等:27,500円~ 保険等 要 2年 20,000円
    維持費等
    間取り 1K(洋8.1、K1.5) 専有面積 25.80m²
    築年月 2015年9月(築10年2ヶ月) 階建 / 階 11階建 / 2階
    建物構造 RC 総戸数
    主要採光面 駐車場
    バイク置き場 駐輪場
    建物名・部屋番号 アルテシモシリウス ペット
    リフォーム履歴
    リノベーション履歴
    備考
    賃貸保証等:加入要(初回保証料50%(月額保証料800円))
    管理形態/管理員の勤務形態:-/-
    ◆初期費用・web内見・入居日交渉などお気軽にご相談下さい◆
    【お部屋探しはクレアスレント】★空室の確認は即時返答★LINEで簡単にお部屋探し★営業時間外もご対応可能★インターネットで紹介していない類似物件も多数ご用意、ご案内!お客様のご要望にお応えいたします!仕様・図面・写真等に相違があった場合は現況を優先します。更新事務手数料 : 22000円短期解約違約金あり:1年未満解約時、賃料1ヶ月分
    エネルギー消費性能
    断熱性能
    目安光熱費
    バス・トイレ バス・トイレ別、浴室乾燥機、洗面所独立、洗面所、洗面台、シャワー、温水洗浄便座、トイレ
    キッチン システムキッチン、2口コンロ、ガスコンロ可、グリル
    セキュリティー モニター付オートロック、オートロック、モニター付インターホン、ディンプルキー、ダブルロックドア、防犯カメラ
    収納 収納スペース、クローゼット、シューズボックス
    設備・サービス 室内洗濯機置場、洗濯機置場、都市ガス給湯、給湯、フローリング、都市ガス、エアコン、人感センサー付照明
    TV・通信 インターネット対応、インターネット使用料無料、CS、BS端子
    その他 宅配BOX、バルコニー、エレベーター
    契約期間 2年 現況 居住中
    条件等 入居可能時期 2025年12月下旬予定
    更新料 新賃料 1ヶ月 物件番号 1014497499
    情報公開日 2025年10月8日 次回更新予定日 2025年11月2日
    ケータイ用バーコード

    QRコード

    スマートフォンでこの物件を見る
    スマートフォンからもこの物件をご覧になれます。
    ※「-」と表示されている項目については、情報提供会社にご確認ください。

    この物件の周辺情報

    周辺施設 エニタイムフィットネス 亀戸店
    距離 836m
    周辺施設 まいばすけっと 亀戸駅東口店
    距離 777m
    周辺施設 Olympic(オリンピック) 墨田文花店
    距離 920m
    周辺施設 まいばすけっと 江東亀戸6丁目店
    距離 1178m
    周辺施設 atre(アトレ)亀戸
    距離 802m
    周辺施設 セブンイレブン 亀戸駅東口店
    距離 808m

    クイックお問い合わせ

    ここから簡単にお問い合わせをすることができます。
    (SSLでの暗号化での送信を希望されるお客さまは こちら よりお問い合わせください)

    お問い合わせ内容(必須)
    お名前(必須) 姓  名 
    メールアドレス(必須)
    ※携帯電話のメールアドレスをご入力される方はこちらをご確認ください
    電話番号(必須)
    - -

    ※入力いただいた電話番号へSMSまたは音声でパスワードをご連絡します。

    携帯電話の番号をご入力の方へ

    携帯電話の番号をご入力の方へ
    確認画面にて送信ボタンをクリックするとSMSが携帯電話に届きます。
    そのSMSに記載のパスワード(認証番号)を入力し、お問い合わせを完了してください。
    尚、SMSの送信者番号は 0005 202 760 となります。
    これはアットホームの固定番号です。

    備考欄 希望条件、物件案内希望日、質問などがございましたらご記入ください。
    お問い合わせを行う前に「個人情報の取り扱いについて」を必ずお読みください。
    「個人情報の取り扱いについて」に同意いただいた場合は「上記にご同意の上 確認画面へ進む」のボタンをクリックしてください。

    個人情報の取り扱いについて

    皆さまが送付された個人情報はアットホーム(株)のサーバを経由し、お問い合わせ先の不動産会社にメールまたはFAXにて転送されるためアットホーム(株)にも保管されます。アットホーム(株)で保管された個人情報の取り扱いについては、【こちら】をご覧ください。
    また、本画面でご記入いただいた個人情報は、お問い合わせ先の不動産会社でも保管します。 お問い合わせ先の不動産会社が保管する個人情報の取り扱いについては、不動産会社に直接お問い合わせください。

    情報提供会社

    情報提供会社

    (株)クレアスレント 上野店

    国土交通大臣免許(1)第10473号

    交通:
    JR山手線/上野駅 徒歩1分
    東京都台東区上野7丁目2-2 東叡堂ビル4階
    TEL:
    03-6824-9462
    FAX:
    03-5246-4308
    所属団体:
    (公社)東京都宅地建物取引業協会会員
    (公社)首都圏不動産公正取引協議会加盟

    取引態様:仲介

    • 会社情報
    • 00265536
    スマートフォンで
    この不動産会社を見る
    QRコード
    • とりあえず保存
    • お問い合わせ
    • 提携サイト等より掲載されている物件情報につきましては、不動産会社詳細情報にリンクされていないものがあります。
    • 物件に関するお問合せは、物件詳細ページの「情報提供会社」に表示されている不動産会社へ直接お願いいたします。
    • 間取図は、現況を優先させていただきます。
    • 映像は物件の一部を撮影したものです。物件の契約にあたっての最終判断はご自身の判断に基づいて行ってください。
    • 仲介手数料について仲介手数料

    アットホームは物件情報の適正化に努めております。 内容に誤りがある場合にはこちらへご連絡ください。

    【埼玉住まい情報】では、日本全国の物件から賃貸マンションや賃貸アパート・賃貸一戸建て等の賃貸住宅情報、新築マンション・分譲マンションや中古マンション等の売買マンション情報、新築一戸建てや中古一戸建てなどの戸建住宅、 土地など、総合的な不動産住宅情報検索サービスを提供致します。
    【埼玉住まい情報】から、選りすぐりの不動産物件を探してみましょう。

    【免責事項】
    このコーナーの運営はアットホーム株式会社(https://www.athome.co.jp/)が行っています。
    このコーナーに掲載している物件情報は、「アットホーム不動産情報ネットワーク」に加盟する不動産会社等(情報提供元)から提供されています。信頼性の高い情報提供が行えるよう、最大限の努力をしておりますが、その内容を保証するものではありません。 利用者のみなさまと各情報提供元との取引に起因する損害および情報が掲載されたことに起因する損害等については、株式会社イーシティ埼玉、およびアットホームは一切責任を負いません。
    各物件情報の内容や画像等はすべて現況を優先させていただきます。
    お取引等(お取引の準備、資金調達等を含みます)の際には、内容や契約条件等について、各情報提供元より十分な説明を受け、ご自身でご確認の上、判断してください。
    このコーナーへの物件情報のご掲載、その他不動産業務ソリューション等についての不動産会社様のお問合せはこちらからお願いいたします。

    物件画像: