東京都千代田区神田須田町1丁目(神田駅)の賃貸:物件詳細
交通 所在地 |
駅徒歩 |
賃料 管理費等 |
敷金/保証金 礼金 |
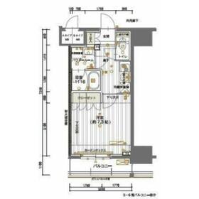
間取り 面積 |
物件種目 築年月 |
東京メトロ銀座線/神田
東京都千代田区神田須田町1丁目
|
1分
|
15万円
20,000円
|
なし / なし
なし
|
1K
25.61m²
|
賃貸マンション
2016年7月(築9年4ヶ月)
|
ペット相談、分譲タイプ、常時ゴミ出し可能、24時間セキュリティー、24時間換気システム、外観タイル張り、IT重説対応物件、保証人不要
|
間取図
|
外観
|
<
その他の画像
>
|
交通 | 東京メトロ銀座線 神田駅 徒歩1分 |
---|
その他の交通 | JR山手線 神田駅 徒歩4分 東京メトロ丸ノ内線 淡路町駅 徒歩5分 |
所在地 |
東京都千代田区神田須田町1丁目
|
物件種目 |
賃貸マンション |
賃料 |
15万円 |
管理費等 |
20,000円 |
敷金 / 保証金 |
なし / なし |
礼金 |
なし |
敷引 |
- |
保証金償却 |
- |
その他一時金 |
室内清掃費用:49,500円、AMLクラブサポート費用:16,500円、鍵交換費:29,700円、ルームクリーニング費用(退去時):49,500円、エアコンクリーニング費用(1台)(退去時):16,500円 |
保険等 |
要 2年 16,000円 |
維持費等 |
- |
クレジットカード決済 |
初期費用可 |
間取り |
1K(K2.0帖 洋室7.3帖) |
専有面積 |
25.61m² |
築年月 |
2016年7月(築9年4ヶ月)
|
階建 / 階 |
14階建 / 8階 |
建物構造 |
RC |
総戸数 |
- |
主要採光面 |
南東 |
駐車場 |
- |
バイク置き場 |
- |
駐輪場 |
有 |
建物名・部屋番号 |
メインステージ神田須田町 802 |
ペット |
相談 |
アピールポイント |
おしゃれなカフェをテーマにしたお部屋探しCAFEヘヤギメ!若くて活気あるスタッフが丁寧に対応いたします。LINE・メール・ビデオ通話でのオンライン相談、現地またはオンライン内覧、IT重説に対応。初期費用はクレジットカード(一括・分割)でのお支払いが可能です。ポータルに掲載されていない未公開物件や周辺エリアの類似物件もまとめてご紹介します。遠方にお住まいの方やお忙しい方も、お気軽にお問い合わせください。最新の空室状況や費用は変動いたしますので、お早めにご確認ください。 |
リフォーム履歴 |
- |
リノベーション履歴 |
- |
備考 |
賃貸保証等:加入要(賃貸保証料:0.50ヶ月 賃料と管理費の50%)
管理形態/管理員の勤務形態:-/巡回
IT重説対応物件、管理人巡回
メールやLINEで気軽にご相談いただけます。ご来店が難しいお客様も安心してお問い合わせください。複数物件をまとめてご案内でき、オンライン相談・内見・契約まで対応可能。初期費用はクレジットカード(一括・分割)でのお支払いも可能です。
|
エネルギー消費性能 |
- |
断熱性能 |
- |
目安光熱費 |
- |
バス・トイレ |
バス・トイレ別、浴室乾燥機、シャワー付洗面化粧台、洗面所独立、洗面台、シャワー、温水洗浄便座 |
キッチン |
システムキッチン、2口コンロ、ガスコンロ付 |
セキュリティー |
モニター付オートロック、オートロック、モニター付インターホン、ディンプルキー、ダブルロックドア、防犯カメラ、火災警報器(報知機) |
収納 |
全居室収納、収納スペース、クローゼット、シューズボックス |
設備・サービス |
全居室エアコン、室内洗濯機置場、給湯、全居室フローリング、フローリング、都市ガス、エアコン |
TV・通信 |
インターネット対応、インターネット使用料無料、光ファイバー、CS、BS端子、マルチメディアコンセント |
その他 |
宅配BOX、バルコニー、駐輪場、エレベーター |
契約期間 |
2年 |
現況 |
居住中 |
条件等 |
- |
入居可能時期 |
2025年11月下旬予定 |
更新料 |
新賃料 1.5ヶ月 |
物件番号 |
1018677174 |
情報公開日 |
2025年9月18日 |
次回更新予定日 |
2025年11月4日 |
ケータイ用バーコード |
- スマートフォンでこの物件を見る
- スマートフォンからもこの物件をご覧になれます。
|
※「-」と表示されている項目については、情報提供会社にご確認ください。
周辺施設 |
まいばすけっと神田駅北口店 |
距離 |
473m |
写真を見る |
周辺施設 |
セブンイレブン神田万世橋南店 |
距離 |
111m |
写真を見る |
周辺施設 |
ファミリーマート神田須田町一丁目店 |
距離 |
190m |
写真を見る |
周辺施設 |
マーチエキュート神田万世橋 |
距離 |
212m |
周辺施設 |
マツモトキヨシワテラスモール店 |
距離 |
474m |
ここから簡単にお問い合わせをすることができます。
(SSLでの暗号化での送信を希望されるお客さまは
こちら
よりお問い合わせください)
お問い合わせを行う前に
「個人情報の取り扱いについて」を必ずお読みください。
「個人情報の取り扱いについて」に同意いただいた場合は「上記にご同意の上 確認画面へ進む」のボタンをクリックしてください。
個人情報の取り扱いについて
皆さまが送付された個人情報はアットホーム(株)のサーバを経由し、お問い合わせ先の不動産会社にメールまたはFAXにて転送されるためアットホーム(株)にも保管されます。アットホーム(株)で保管された個人情報の取り扱いについては、【こちら】をご覧ください。
また、本画面でご記入いただいた個人情報は、お問い合わせ先の不動産会社でも保管します。 お問い合わせ先の不動産会社が保管する個人情報の取り扱いについては、不動産会社に直接お問い合わせください。
国土交通大臣免許(4)第7352号 |
---|
- 交通:
- JR中央線/御茶ノ水駅 徒歩1分
- 東京都千代田区神田駿河台2丁目1-19 アルベルゴ御茶ノ水2F
- TEL:
- 0120-51-5432
- FAX:
- 03-5217-0778
- 所属団体:
- (公社)全日本不動産協会会員不動産公正取引協議会加盟
取引態様:仲介  - 00014412
|
- スマートフォンで
この不動産会社を見る

|
- 提携サイト等より掲載されている物件情報につきましては、不動産会社詳細情報にリンクされていないものがあります。
- 物件に関するお問合せは、物件詳細ページの「情報提供会社」に表示されている不動産会社へ直接お願いいたします。
- 間取図は、現況を優先させていただきます。
- 映像は物件の一部を撮影したものです。物件の契約にあたっての最終判断はご自身の判断に基づいて行ってください。
- 仲介手数料について

アットホームは物件情報の適正化に努めております。
内容に誤りがある場合にはこちらへご連絡ください。