北海道札幌市中央区北五条西10丁目(さっぽろ駅)の賃貸:物件詳細
交通 所在地 |
駅徒歩 |
賃料 管理費等 |
敷金/保証金 礼金 |
間取り 面積 |
物件種目 築年月 |
|
札幌市南北線/さっぽろ
北海道札幌市中央区北五条西10丁目
|
9分
|
4.4万円
5,200円
|
1ヶ月 / なし
なし
|
1K
25.92m²
|
賃貸マンション
1990年12月(築35年1ヶ月)
|
分譲タイプ、高齢者相談、閑静な住宅街、外観タイル張り、保証人不要
|
|
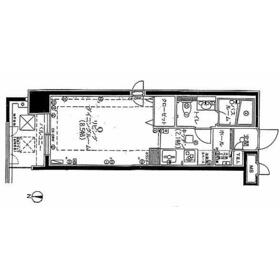
間取図
|
外観
外観
|
<
その他の画像
>
|
| 交通 | 札幌市南北線 さっぽろ駅 徒歩9分 |
|---|
| その他の交通 | JR函館本線 札幌駅 徒歩9分 JR函館本線 桑園駅 徒歩10分 |
| 所在地 |
北海道札幌市中央区北五条西10丁目
|
| 物件種目 |
賃貸マンション |
| 賃料 |
4.4万円 |
管理費等 |
5,200円 |
| 敷金 / 保証金 |
1ヶ月 / なし |
礼金 |
なし |
| 敷引 |
- |
保証金償却 |
- |
| その他一時金 |
水廻り消毒料:28,600円、事務手数料:8,800円 |
保険等 |
要 2年 19,000円 |
| 維持費等 |
- |
| 間取り |
1K(洋8.5、K2.1) |
専有面積 |
25.92m² |
| 築年月 |
1990年12月(築35年1ヶ月)
|
階建 / 階 |
11階建 / 7階 |
| 建物構造 |
RC |
総戸数 |
- |
| 主要採光面 |
北 |
駐車場 |
空無 |
| バイク置き場 |
空無 |
駐輪場 |
有 1,000円/月 |
| 建物名・部屋番号 |
チサンマンション植物園 |
ペット |
-
|
| リフォーム履歴 |
- |
| リノベーション履歴 |
- |
| 備考 |
賃貸保証等:利用可(全保連 初回委託保証料は月額賃料等の120%、年間保証委託料不要(初回のみプラン)連帯保証人有りの場合は不要)
管理形態/管理員の勤務形態:-/日勤
バルコニー:4.7m²
管理人日勤
札幌駅近くの浴・トイレ別、家具家電付物件
間取り 1K 8.5帖+2.1K(25.92㎡)
・バルコニー(4.70㎡)
・オートロック
・浴・トイレ別
・灯油暖房
・シャンプードレッサー
・クローゼット
・水廻り消毒料28,600円(契約時)
|
| エネルギー消費性能 |
- |
| 断熱性能 |
- |
| 目安光熱費 |
- |
| バス・トイレ |
バス・トイレ別、シャワー付洗面化粧台、洗面台、シャワー、温水洗浄便座、トイレ |
| キッチン |
システムキッチン、2口コンロ、ガスコンロ付、ガスコンロ可、グリル |
| セキュリティー |
オートロック、防犯カメラ |
| 収納 |
収納スペース、クローゼット、シューズボックス |
| 設備・サービス |
室内洗濯機置場、冷蔵庫、洗濯機置場、都市ガス給湯、給湯、都市ガス、FF暖房、灯油暖房、暖房、灯油、家具付き、家電付、照明器具、ベッド |
| TV・通信 |
インターネット対応、光ファイバー、ケーブルTV |
| その他 |
バイク置き場、バルコニー、駐輪場、エレベーター |
| 契約期間 |
2年 |
現況 |
空家 |
| 条件等 |
- |
入居可能時期 |
即時 |
| 更新料 |
- |
物件番号 |
1022350152 |
| 情報公開日 |
2025年5月1日 |
次回更新予定日 |
2025年12月18日 |
| ケータイ用バーコード |
- スマートフォンでこの物件を見る
- スマートフォンからもこの物件をご覧になれます。
|
※「-」と表示されている項目については、情報提供会社にご確認ください。
| 周辺施設 |
まいばすけっと 北5条西10丁目店 |
| 距離 |
120m |
写真を見る |
| 周辺施設 |
コープさっぽろ 植物園店 |
| 距離 |
270m |
写真を見る |
| 周辺施設 |
イオン 札幌桑園店 |
| 距離 |
1000m |
写真を見る |
ここから簡単にお問い合わせをすることができます。
(SSLでの暗号化での送信を希望されるお客さまは
こちら
よりお問い合わせください)
お問い合わせを行う前に
「個人情報の取り扱いについて」を必ずお読みください。
「個人情報の取り扱いについて」に同意いただいた場合は「上記にご同意の上 確認画面へ進む」のボタンをクリックしてください。
個人情報の取り扱いについて
皆さまが送付された個人情報はアットホーム(株)のサーバを経由し、お問い合わせ先の不動産会社にメールまたはFAXにて転送されるためアットホーム(株)にも保管されます。アットホーム(株)で保管された個人情報の取り扱いについては、【こちら】をご覧ください。
また、本画面でご記入いただいた個人情報は、お問い合わせ先の不動産会社でも保管します。 お問い合わせ先の不動産会社が保管する個人情報の取り扱いについては、不動産会社に直接お問い合わせください。
北海道知事免許 石狩(10)第3992号 |
|---|
- 交通:
- 札幌市南北線/中島公園駅 徒歩1分
- 北海道札幌市中央区南九条西4丁目1-12
- TEL:
- 011-513-0007
- FAX:
- 011-513-7779
- 所属団体:
- (公社)北海道宅地建物取引業協会会員(一社)北海道不動産公正取引協議会加盟
取引態様:仲介  - 10000033
|
- スマートフォンで
この不動産会社を見る

|
- 提携サイト等より掲載されている物件情報につきましては、不動産会社詳細情報にリンクされていないものがあります。
- 物件に関するお問合せは、物件詳細ページの「情報提供会社」に表示されている不動産会社へ直接お願いいたします。
- 間取図は、現況を優先させていただきます。
- 映像は物件の一部を撮影したものです。物件の契約にあたっての最終判断はご自身の判断に基づいて行ってください。
- 仲介手数料について

アットホームは物件情報の適正化に努めております。
内容に誤りがある場合にはこちらへご連絡ください。