愛知県半田市住吉町2丁目(半田口駅)の賃貸:物件詳細
交通 所在地 |
駅徒歩 |
賃料 管理費等 |
敷金/保証金 礼金 |
間取り 面積 |
物件種目 築年月 |
|
名鉄河和線/半田口
愛知県半田市住吉町2丁目
|
10分
|
5万円
3,900円
|
なし / なし
なし
|
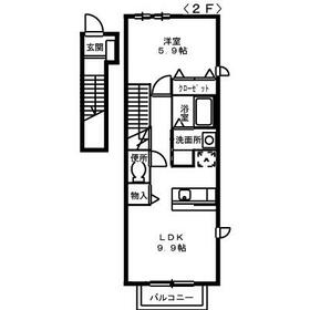
1LDK
41.98m²
|
賃貸アパート
2003年1月(築23年)
|
角部屋、最上階、南向き、IT重説対応物件、保証人不要
|
|
間取図
|
外観
|
<
その他の画像
>
|
| 交通 | 名鉄河和線 半田口駅 徒歩10分 |
|---|
| その他の交通 | 武豊線 乙川駅 徒歩14分 名鉄河和線 住吉町駅 徒歩18分 |
| 所在地 |
愛知県半田市住吉町2丁目
|
| 物件種目 |
賃貸アパート |
| 賃料 |
5万円 |
管理費等 |
3,900円 |
| 敷金 / 保証金 |
なし / なし |
礼金 |
なし |
| 敷引 |
- |
保証金償却 |
- |
| その他一時金 |
クリーニング費:60,000円、鍵セット費:3,300円 |
保険等 |
要 |
| 維持費等 |
24時間サポート費用:330円/月、収納手数料:170円/月 |
クレジットカード決済 |
初期費用可 賃料可 |
| 間取り |
1LDK(LDK10.1 洋室6) |
専有面積 |
41.98m² |
| 築年月 |
2003年1月(築23年)
|
階建 / 階 |
2階建 / 2階 |
| 建物構造 |
木造 |
総戸数 |
- |
| 主要採光面 |
南 |
駐車場 |
有 3,300円/月 |
| バイク置き場 |
- |
駐輪場 |
- |
| 建物名・部屋番号 |
ベリエM 202 |
ペット |
-
|
| リフォーム履歴 |
- |
| リノベーション履歴 |
- |
| 備考 |
賃貸保証等:加入要(その他 保証委託料 契約時:22,000円 月額:賃料総額の2.2%)
管理形態/管理員の勤務形態:-/-
IT重説対応物件
☆幹線道路へのアクセス良好で通勤等に便利な立地の2LDK☆
浴室乾燥機付きで、雨の日でも洗濯物の心配なし♪
最上階角部屋なので、他室の音が気になりにくいのも嬉しいです!
気になる方は、ピタットハウス半田店までお問い合わせください♪
更新事務手数料22,000円。駐車場契約の場合、別途契約手数料がかかります。
|
| エネルギー消費性能 |
- |
| 断熱性能 |
- |
| 目安光熱費 |
- |
| バス・トイレ |
バス・トイレ別、浴室乾燥機、追焚機能、洗面所独立、シャワー |
| キッチン |
カウンターキッチン、ガスコンロ可 |
| セキュリティー |
モニター付インターホン |
| 収納 |
収納スペース、クローゼット、シューズボックス |
| 設備・サービス |
室内洗濯機置場、洗濯機置場、給湯、プロパンガス、エアコン、照明器具 |
| TV・通信 |
インターネット対応、BS端子 |
| その他 |
バルコニー |
| 契約期間 |
2年 |
現況 |
空家 |
| 条件等 |
- |
入居可能時期 |
即時 |
| 更新料 |
- |
物件番号 |
1023228071 |
| 情報公開日 |
2025年7月3日 |
次回更新予定日 |
2025年12月19日 |
| ケータイ用バーコード |
- スマートフォンでこの物件を見る
- スマートフォンからもこの物件をご覧になれます。
|
※「-」と表示されている項目については、情報提供会社にご確認ください。
| 周辺施設 |
半田市立半田小学校 |
| 距離 |
1185m |
写真を見る |
| 周辺施設 |
半田市立半田中学校 |
| 距離 |
654m |
写真を見る |
| 周辺施設 |
半田市役所 |
| 距離 |
2182m |
写真を見る |
| 周辺施設 |
半田市立図書館 |
| 距離 |
3291m |
写真を見る |
| 周辺施設 |
半田警察署 |
| 距離 |
1322m |
写真を見る |
ここから簡単にお問い合わせをすることができます。
(SSLでの暗号化での送信を希望されるお客さまは
こちら
よりお問い合わせください)
お問い合わせを行う前に
「個人情報の取り扱いについて」を必ずお読みください。
「個人情報の取り扱いについて」に同意いただいた場合は「上記にご同意の上 確認画面へ進む」のボタンをクリックしてください。
個人情報の取り扱いについて
皆さまが送付された個人情報はアットホーム(株)のサーバを経由し、お問い合わせ先の不動産会社にメールまたはFAXにて転送されるためアットホーム(株)にも保管されます。アットホーム(株)で保管された個人情報の取り扱いについては、【こちら】をご覧ください。
また、本画面でご記入いただいた個人情報は、お問い合わせ先の不動産会社でも保管します。 お問い合わせ先の不動産会社が保管する個人情報の取り扱いについては、不動産会社に直接お問い合わせください。
愛知県知事免許(2)第23193号 |
|---|
- 交通:
- 名鉄河和線/青山駅 徒歩6分
- 愛知県半田市東郷町4丁目103番地の10
- TEL:
- 0569-84-0080
- 所属団体:
- (公社)全日本不動産協会会員東海不動産公正取引協議会加盟
取引態様:仲介  - 40409437
|
- スマートフォンで
この不動産会社を見る

|
- 提携サイト等より掲載されている物件情報につきましては、不動産会社詳細情報にリンクされていないものがあります。
- 物件に関するお問合せは、物件詳細ページの「情報提供会社」に表示されている不動産会社へ直接お願いいたします。
- 間取図は、現況を優先させていただきます。
- 映像は物件の一部を撮影したものです。物件の契約にあたっての最終判断はご自身の判断に基づいて行ってください。
- 仲介手数料について

アットホームは物件情報の適正化に努めております。
内容に誤りがある場合にはこちらへご連絡ください。