福岡県久留米市東和町(西鉄久留米駅)の賃貸:物件詳細
交通 所在地 |
駅徒歩 |
賃料 管理費等 |
敷金/保証金 礼金 |
間取り 面積 |
物件種目 築年月 |
|
西鉄天神大牟田線/西鉄久留米
福岡県久留米市東和町
|
5分
|
12.9万円
10,500円
|
なし / なし
なし
|
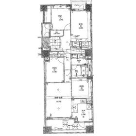
4LDK
100.21m²
|
賃貸マンション
2004年1月(築21年10ヶ月)
|
ペット相談、分譲タイプ、角部屋、南向き、二人入居可、IT重説対応物件
|
|
間取図
|
外観
|
<
その他の画像
>
|
| 交通 | 西鉄天神大牟田線 西鉄久留米駅 徒歩5分 |
|---|
| その他の交通 | 西鉄天神大牟田線 櫛原駅 徒歩15分 西鉄天神大牟田線 花畑駅 徒歩16分 |
| 所在地 |
福岡県久留米市東和町
|
| 物件種目 |
賃貸マンション |
| 賃料 |
12.9万円 |
管理費等 |
10,500円 |
| 敷金 / 保証金 |
なし / なし |
礼金 |
なし |
| 敷引 |
- |
保証金償却 |
- |
| その他一時金 |
室内清掃費用:153,450円、自治会費:500円、鍵交換代等:27,500円~ |
保険等 |
要 2年 22,700円 |
| 維持費等 |
- |
| 間取り |
4LDK(洋室8洋室6洋室5.9洋室5.1LDK17.9) |
専有面積 |
100.21m² |
| 築年月 |
2004年1月(築21年10ヶ月)
|
階建 / 階 |
14階建 / 10階 |
| 建物構造 |
SRC |
総戸数 |
- |
| 主要採光面 |
南 |
駐車場 |
有 8,500円/月 |
| バイク置き場 |
- |
駐輪場 |
- |
| 建物名・部屋番号 |
クイーンズプラザ久留米中央 |
ペット |
小型犬可・ 猫可 |
| リフォーム履歴 |
- |
| リノベーション履歴 |
- |
| 備考 |
賃貸保証等:加入要(ジェイリース(株):50%)
管理形態/管理員の勤務形態:-/-
IT重説対応物件
駅まで徒歩4分で利便性の良い分譲マンションです。
敷地内駐車場もあります。(空き要確認)
|
| エネルギー消費性能 |
- |
| 断熱性能 |
- |
| 目安光熱費 |
- |
| バス・トイレ |
バス・トイレ別、オートバス、追焚機能、シャワー付洗面化粧台、洗面所独立、洗面台、シャワー、温水洗浄便座、トイレ |
| キッチン |
カウンターキッチン、システムキッチン、3口以上コンロ |
| セキュリティー |
オートロック、モニター付インターホン |
| 収納 |
収納スペース、クローゼット、シューズボックス |
| 設備・サービス |
室内洗濯機置場、給湯、フローリング、都市ガス |
| TV・通信 |
BS端子 |
| その他 |
宅配BOX、エレベーター |
| 契約期間 |
2年 |
現況 |
空家 |
| 条件等 |
- |
入居可能時期 |
即時 |
| 仲介手数料 |
0.55ヶ月 |
|
|
| 更新料 |
16,500円 |
物件番号 |
1027264875 |
| 情報公開日 |
2025年3月20日 |
次回更新予定日 |
2025年11月6日 |
| ケータイ用バーコード |
- スマートフォンでこの物件を見る
- スマートフォンからもこの物件をご覧になれます。
|
※「-」と表示されている項目については、情報提供会社にご確認ください。
| 周辺施設 |
セブンイレブン久留米中央公園前店 |
| 距離 |
1049m |
写真を見る |
| 周辺施設 |
ディスカウントドラッグコスモス合川店 |
| 距離 |
1197m |
写真を見る |
| 周辺施設 |
ドラッグストアモリ花畑店 |
| 距離 |
1171m |
写真を見る |
| 周辺施設 |
岩田屋久留米店本館 |
| 距離 |
259m |
写真を見る |
| 周辺施設 |
久留米市立諏訪中学校 |
| 距離 |
909m |
写真を見る |
| 周辺施設 |
久留米市立西国分小学校 |
| 距離 |
1211m |
写真を見る |
ここから簡単にお問い合わせをすることができます。
(SSLでの暗号化での送信を希望されるお客さまは
こちら
よりお問い合わせください)
お問い合わせを行う前に
「個人情報の取り扱いについて」を必ずお読みください。
「個人情報の取り扱いについて」に同意いただいた場合は「上記にご同意の上 確認画面へ進む」のボタンをクリックしてください。
個人情報の取り扱いについて
皆さまが送付された個人情報はアットホーム(株)のサーバを経由し、お問い合わせ先の不動産会社にメールまたはFAXにて転送されるためアットホーム(株)にも保管されます。アットホーム(株)で保管された個人情報の取り扱いについては、【こちら】をご覧ください。
また、本画面でご記入いただいた個人情報は、お問い合わせ先の不動産会社でも保管します。 お問い合わせ先の不動産会社が保管する個人情報の取り扱いについては、不動産会社に直接お問い合わせください。
福岡県知事免許(5)第15311号 |
|---|
- 交通:
- JR久大本線/久留米大学前駅
- 福岡県久留米市合川町17-6 平野第2ビル1階
- TEL:
- 0942-43-3721
- FAX:
- 0942-43-8211
- 所属団体:
- (公社)福岡県宅地建物取引業協会会員(一社)九州不動産公正取引協議会加盟
取引態様:仲介  - 99000408
|
- スマートフォンで
この不動産会社を見る

|
- 提携サイト等より掲載されている物件情報につきましては、不動産会社詳細情報にリンクされていないものがあります。
- 物件に関するお問合せは、物件詳細ページの「情報提供会社」に表示されている不動産会社へ直接お願いいたします。
- 間取図は、現況を優先させていただきます。
- 映像は物件の一部を撮影したものです。物件の契約にあたっての最終判断はご自身の判断に基づいて行ってください。
- 仲介手数料について

アットホームは物件情報の適正化に努めております。
内容に誤りがある場合にはこちらへご連絡ください。