愛知県名古屋市中村区中村町6丁目(中村日赤駅)の賃貸:物件詳細
交通 所在地 |
駅徒歩 |
賃料 管理費等 |
敷金/保証金 礼金 |
間取り 面積 |
物件種目 築年月 |
|
名古屋市東山線/中村日赤
愛知県名古屋市中村区中村町6丁目
|
5分
|
6.3万円
4,000円
|
なし / なし
1ヶ月
|
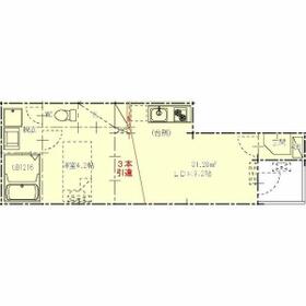
1LDK
31.28m²
|
賃貸アパート
2019年3月(築6年9ヶ月)
|
デザイナーズ、角部屋、二人入居可、24時間換気システム、IT重説対応物件、保証人不要
|
|
間取図
間取り
|
外観
|
<
その他の画像
>
|
| 交通 | 名古屋市東山線 中村日赤駅 徒歩5分 |
|---|
| その他の交通 | 名古屋市東山線 中村公園駅 徒歩9分 名古屋市東山線 本陣駅 徒歩15分 |
| 所在地 |
愛知県名古屋市中村区中村町6丁目
|
| 物件種目 |
賃貸アパート |
| 賃料 |
6.3万円 |
管理費等 |
4,000円 |
| 敷金 / 保証金 |
なし / なし |
礼金 |
1ヶ月 |
| 敷引 |
- |
保証金償却 |
- |
| その他一時金 |
退去時クリーニング代:46,200円、インターネット開通サービス:16,500円、鍵交換代:22,000円、シノサポ24:17,600円 |
保険等 |
要 |
| 維持費等 |
町内会費:300円/月 |
クレジットカード決済 |
初期費用可 |
| 間取り |
1LDK(洋室4.2畳/LDK9.2畳) |
専有面積 |
31.28m² |
| 築年月 |
2019年3月(築6年9ヶ月)
|
階建 / 階 |
3階建 / 2階 |
| 建物構造 |
木造 |
総戸数 |
- |
| 主要採光面 |
北 |
駐車場 |
近有 11,000円/月 |
| バイク置き場 |
- |
駐輪場 |
- |
| 建物名・部屋番号 |
エスポワール中村 |
ペット |
-
|
| アピールポイント |
オートロック付なので女性、はじめての一人暮らしでも安心してご入居頂けます☆インターネット使用料不要なので面倒な手続き不要です◎LINE・メール・お電話でやり取り可能!名古屋でのお部屋探しはスタイルエステート西支店にお任せ下さい☆現地・最寄り駅でのお待ち合わせも可能です☆名古屋市内地域問わず、お客様に最適のお部屋をご紹介いたします☆ |
| リフォーム履歴 |
- |
| リノベーション履歴 |
- |
| 備考 |
管理形態/管理員の勤務形態:-/巡回
IT重説対応物件、管理人巡回
デザイナーズアパート☆ネット使用料不要♪
見学から契約までご来店不要でご対応可能です♪駐車場の空き状況は別途お問い合わせ下さい。
|
| エネルギー消費性能 |
- |
| 断熱性能 |
- |
| 目安光熱費 |
- |
| バス・トイレ |
バス・トイレ別、浴室暖房、浴室乾燥機、追焚機能、シャワー付洗面化粧台、洗面所独立、洗面台、シャワー、温水洗浄便座、トイレ |
| キッチン |
システムキッチン、2口コンロ、ガスコンロ付 |
| セキュリティー |
モニター付オートロック、オートロック、モニター付インターホン、防犯カメラ |
| 収納 |
収納スペース、クローゼット、シューズボックス |
| 設備・サービス |
室内洗濯機置場、給湯、全居室フローリング、フローリング、プロパンガス、エアコン、暖房、冷房 |
| TV・通信 |
インターネット対応、インターネット使用料無料、光ファイバー |
| その他 |
バルコニー |
| 契約期間 |
2年 |
現況 |
- |
| 条件等 |
- |
入居可能時期 |
指定有り2025年12月26日 |
| 更新料 |
- |
物件番号 |
1027377965 |
| 情報公開日 |
2025年10月29日 |
次回更新予定日 |
2025年11月15日 |
| ケータイ用バーコード |
- スマートフォンでこの物件を見る
- スマートフォンからもこの物件をご覧になれます。
|
※「-」と表示されている項目については、情報提供会社にご確認ください。
| 周辺施設 |
アオキスーパー 中村店 |
| 距離 |
494m |
写真を見る |
| 周辺施設 |
セブンイレブン 名古屋中村町7丁目店 |
| 距離 |
215m |
写真を見る |
| 周辺施設 |
名古屋第一赤十字病院 |
| 距離 |
647m |
写真を見る |
| 周辺施設 |
V・drug(V・ドラッグ) 中村公園前店 |
| 距離 |
414m |
写真を見る |
| 周辺施設 |
名古屋藤江郵便局 |
| 距離 |
391m |
写真を見る |
| 周辺施設 |
DAISO 中村公園前店 |
| 距離 |
668m |
写真を見る |
ここから簡単にお問い合わせをすることができます。
(SSLでの暗号化での送信を希望されるお客さまは
こちら
よりお問い合わせください)
お問い合わせを行う前に
「個人情報の取り扱いについて」を必ずお読みください。
「個人情報の取り扱いについて」に同意いただいた場合は「上記にご同意の上 確認画面へ進む」のボタンをクリックしてください。
個人情報の取り扱いについて
皆さまが送付された個人情報はアットホーム(株)のサーバを経由し、お問い合わせ先の不動産会社にメールまたはFAXにて転送されるためアットホーム(株)にも保管されます。アットホーム(株)で保管された個人情報の取り扱いについては、【こちら】をご覧ください。
また、本画面でご記入いただいた個人情報は、お問い合わせ先の不動産会社でも保管します。 お問い合わせ先の不動産会社が保管する個人情報の取り扱いについては、不動産会社に直接お問い合わせください。
愛知県知事免許(3)第22094号 |
|---|
- 交通:
- 名古屋市東山線/高畑駅 徒歩1分
- 愛知県名古屋市中川区高畑1丁目235番地 ピアレス高畑1F
- TEL:
- 052-361-5600
- FAX:
- 052-361-5618
- 所属団体:
- (公社)愛知県宅地建物取引業協会会員東海不動産公正取引協議会加盟
取引態様:仲介  - 40404094
|
- スマートフォンで
この不動産会社を見る

|
- 提携サイト等より掲載されている物件情報につきましては、不動産会社詳細情報にリンクされていないものがあります。
- 物件に関するお問合せは、物件詳細ページの「情報提供会社」に表示されている不動産会社へ直接お願いいたします。
- 間取図は、現況を優先させていただきます。
- 映像は物件の一部を撮影したものです。物件の契約にあたっての最終判断はご自身の判断に基づいて行ってください。
- 仲介手数料について

アットホームは物件情報の適正化に努めております。
内容に誤りがある場合にはこちらへご連絡ください。