兵庫県神戸市北区桂木2丁目(三ノ宮駅)の賃貸:物件詳細
交通 所在地 |
駅徒歩 |
賃料 管理費等 |
敷金/保証金 礼金 |
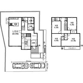
間取り 面積 |
物件種目 築年月 |
JR東海道本線/三ノ宮 【バス】30分 桂木2丁目 停歩3分
兵庫県神戸市北区桂木2丁目
|
-
|
12万円
なし
|
17万円 / なし
34万円
|
5LDK
130.38m²
|
賃貸一戸建て
1997年4月(築28年7ヶ月)
|
駐車場2台分、閑静な住宅街
|
間取図
|
外観
|
<
その他の画像
>
|
交通 | JR東海道本線 三ノ宮駅 【バス】 30分 桂木2丁目 停歩3分 |
所在地 |
兵庫県神戸市北区桂木2丁目
|
物件種目 |
賃貸一戸建て |
賃料 |
12万円 |
管理費等 |
なし |
敷金 / 保証金 |
17万円 / なし |
礼金 |
34万円 |
敷引 |
- |
保証金償却 |
- |
その他一時金 |
なし、鍵交換代等:44,000円~ |
保険等 |
要 2年 24,000円 |
維持費等 |
- |
間取り |
5LDK |
専有面積 |
130.38m² |
築年月 |
1997年4月(築28年7ヶ月)
|
階建 / 階 |
2階建 |
建物構造 |
軽量鉄骨造 |
総戸数 |
- |
主要採光面 |
|
駐車場 |
有 無料 |
バイク置き場 |
有 無料 |
駐輪場 |
有 無料 |
建物名・部屋番号 |
|
ペット |
-
|
リフォーム履歴 |
- |
リノベーション履歴 |
- |
備考 |
賃貸保証等:加入要(日本セーフティー:50%)
管理形態/管理員の勤務形態:-/-
※1年以内の解約は賃料総額2ヶ月相当、半年以内は1ヶ月分相当の短期解約違約金が発生します。
※全保連(株):初回賃料総額の50%、1年毎に1.3万円の更新料要
|
エネルギー消費性能 |
- |
断熱性能 |
- |
目安光熱費 |
- |
バス・トイレ |
バス・トイレ別、シャワー付洗面化粧台、洗面所独立、洗面所、トイレ2ヶ所、トイレ |
キッチン |
カウンターキッチン、システムキッチン、IHクッキングヒーター |
セキュリティー |
モニター付インターホン |
収納 |
全居室収納、クローゼット |
設備・サービス |
エアコン2台以上、室内洗濯機置場、フローリング |
TV・通信 |
- |
その他 |
バイク置き場、専用庭、バルコニー、駐輪場 |
契約期間 |
2年 |
現況 |
空家 |
条件等 |
- |
入居可能時期 |
相談 |
更新料 |
なし |
物件番号 |
1029029475 |
情報公開日 |
2025年9月27日 |
次回更新予定日 |
2025年10月30日 |
ケータイ用バーコード |
- スマートフォンでこの物件を見る
- スマートフォンからもこの物件をご覧になれます。
|
※「-」と表示されている項目については、情報提供会社にご確認ください。
周辺施設 |
万代神戸北町店(ミリオンタウン) |
距離 |
500m |
写真を見る |
周辺施設 |
コープデイズ神戸北町 |
距離 |
1187m |
写真を見る |
周辺施設 |
DCMダイキ神戸北町店 |
距離 |
759m |
写真を見る |
周辺施設 |
神戸市立大原中学校 |
距離 |
817m |
写真を見る |
周辺施設 |
神戸市立桂木小学校 |
距離 |
894m |
写真を見る |
周辺施設 |
はまぐち内科クリニック |
距離 |
888m |
写真を見る |
周辺施設 |
神戸山田郵便局 |
距離 |
1632m |
写真を見る |
周辺施設 |
みなと銀行神戸北町支店 |
距離 |
1056m |
写真を見る |
ここから簡単にお問い合わせをすることができます。
(SSLでの暗号化での送信を希望されるお客さまは
こちら
よりお問い合わせください)
お問い合わせを行う前に
「個人情報の取り扱いについて」を必ずお読みください。
「個人情報の取り扱いについて」に同意いただいた場合は「上記にご同意の上 確認画面へ進む」のボタンをクリックしてください。
個人情報の取り扱いについて
皆さまが送付された個人情報はアットホーム(株)のサーバを経由し、お問い合わせ先の不動産会社にメールまたはFAXにて転送されるためアットホーム(株)にも保管されます。アットホーム(株)で保管された個人情報の取り扱いについては、【こちら】をご覧ください。
また、本画面でご記入いただいた個人情報は、お問い合わせ先の不動産会社でも保管します。 お問い合わせ先の不動産会社が保管する個人情報の取り扱いについては、不動産会社に直接お問い合わせください。
兵庫県知事免許(6)第10507号 |
---|
- 交通:
- JR東海道本線/三ノ宮駅
- 兵庫県神戸市北区桂木2丁目2-1
- TEL:
- 078-583-5995
- FAX:
- 078-583-5944
- 所属団体:
- (一社)兵庫県宅地建物取引業協会会員(公社)近畿地区不動産公正取引協議会加盟
取引態様:仲介  - 99000976
|
- スマートフォンで
この不動産会社を見る

|
- 提携サイト等より掲載されている物件情報につきましては、不動産会社詳細情報にリンクされていないものがあります。
- 物件に関するお問合せは、物件詳細ページの「情報提供会社」に表示されている不動産会社へ直接お願いいたします。
- 間取図は、現況を優先させていただきます。
- 映像は物件の一部を撮影したものです。物件の契約にあたっての最終判断はご自身の判断に基づいて行ってください。
- 仲介手数料について

アットホームは物件情報の適正化に努めております。
内容に誤りがある場合にはこちらへご連絡ください。