東京都台東区北上野1丁目(上野駅)の賃貸:物件詳細
交通 所在地 |
駅徒歩 |
賃料 管理費等 |
敷金/保証金 礼金 |
間取り 面積 |
物件種目 築年月 |
JR山手線/上野
東京都台東区北上野1丁目
|
6分
|
15万円
なし
|
1ヶ月 / なし
なし
|
1K
41.93m²
|
賃貸マンション
2002年2月(築23年9ヶ月)
|
分譲タイプ、常時ゴミ出し可能、角部屋、2面採光、24時間換気システム、外観タイル張り、保証人不要
|
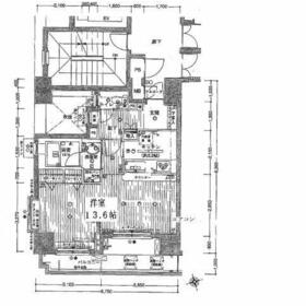
間取図
13.6帖洋室 1K 41.93㎡
|
外観
コスモ上野ロイヤルフォルム 分譲賃貸
|
<
その他の画像
>
|
交通 | JR山手線 上野駅 徒歩6分 |
---|
その他の交通 | 東京メトロ銀座線 稲荷町駅 徒歩6分 都営大江戸線 新御徒町駅 徒歩14分 |
所在地 |
東京都台東区北上野1丁目
|
物件種目 |
賃貸マンション |
賃料 |
15万円 |
管理費等 |
なし |
敷金 / 保証金 |
1ヶ月 / なし |
礼金 |
なし |
敷引 |
- |
保証金償却 |
- |
その他一時金 |
なし、鍵交換代等:38,500円~ |
保険等 |
要 2年 15,100円 |
維持費等 |
口座振替手数料:330円/月 |
間取り |
1K(洋13.6、K3.2) |
専有面積 |
41.93m² |
築年月 |
2002年2月(築23年9ヶ月)
|
階建 / 階 |
14階建 / 5階 |
建物構造 |
SRC |
総戸数 |
- |
主要採光面 |
西 |
駐車場 |
- |
バイク置き場 |
- |
駐輪場 |
- |
建物名・部屋番号 |
コスモ上野ロイヤルフォルム 501 |
ペット |
-
|
アピールポイント |
室内設備は浴室乾燥機・洗面化粧台など豊富に揃っており、過ごしやすいお部屋になっております。収納はシューズボックス・クロゼットなど豊富なので、広々と空間を利用することも可能です。セキュリティ面は、TVインターホン・オートロックなどを備え付けているので安心して暮らせます。共用部には宅配ボックス・ゴミ出し24時間OKなどが揃っております。こだわり条件であるフローリングの洋室がある物件です。日中は管理人が駐在しているので安心です。民放番組だけでは物足りない方にはBS・CS対応物件ならもっと楽しめますよ。地上14階建ての物件は、弊社イチオシの物件です。入居日指定が令和7年12月の物件です。片面しか隣接しないためお互いの生活音が響きにくく、騒音トラブル防止につながる角部屋になります。休日のお出かけも便利な、3駅以上利用可の物件がおすすめです。 |
リフォーム履歴 |
■その他:2024年3月 2024.3浴室、給湯器交換 ※実施年月は最も古い履歴を表示 |
リノベーション履歴 |
- |
備考 |
賃貸保証等:加入要(ナップ賃貸保証 50%,2年目以降1万円/1年)
管理形態/管理員の勤務形態:-/日勤
管理人日勤
11/19(水)退去予定、先行申込受付中、実際にお部屋を見てからの契約でOKです(複数申込の場合は同時審査です)
上野の不動産会社邦興商事の分譲賃貸管理物件です
コスモ上野ロイヤルフォルム
東京都台東区北上野1-1-14
定期借家2年、再契約はオーナー都合により検討相談
礼金0
13.6帖洋室の1K
2025年外観共用部大規模修修繕済で綺麗で管理良好な分譲賃貸
2024年浴室・給湯器新品交換
床暖房
玄関にもモニター付インターホンセキュリティ
キッチンに収納式作業台付、キッチン上部に手前に引き出せるシステム収納
シューズBOXと洗面台に収納式椅子があり楽で便利です
タンクレス温水洗浄便座はビルトイン洗浄液タンク付きで自動洗浄
日当り眺望良好なワイドバルコニー
プライバシー確保された角部屋です
インターネットはNTT,JCOM,ニューロ光
近隣には複数のスーパー・コンビニ・ドラッグストアなど充実生活便利です
収納はクロゼット・シューズボックスなど豊富なので、広々と空間を利用することも可能です。室内設備は洗面化粧台・浴室乾燥機などが揃っているので、快適に
|
エネルギー消費性能 |
- |
断熱性能 |
- |
目安光熱費 |
- |
バス・トイレ |
バス・トイレ別、浴室乾燥機、オートバス、追焚機能、シャワー付洗面化粧台、洗面所独立、洗面所、洗面台、シャワー、温水洗浄便座、タンクレストイレ、トイレ |
キッチン |
カウンターキッチン、システムキッチン、浄水器、3口以上コンロ、ガスコンロ可、グリル |
セキュリティー |
モニター付オートロック、オートロック、モニター付インターホン、ディンプルキー、ダブルロックドア、防犯カメラ |
収納 |
収納スペース、クローゼット、シューズボックス |
設備・サービス |
床暖房、室内洗濯機置場、洗濯機置場、都市ガス給湯、給湯、フローリング、都市ガス、エアコン、暖房、照明器具 |
TV・通信 |
インターネット対応、光ファイバー、CS、BS端子 |
その他 |
宅配BOX、ワイドバルコニー、バルコニー、エレベーター |
契約期間 |
2年 |
現況 |
居住中 |
条件等 |
定期借家 |
入居可能時期 |
2025年12月上旬予定 |
更新料 |
新賃料 1ヶ月 |
物件番号 |
1029420594 |
情報公開日 |
2025年10月18日 |
次回更新予定日 |
2025年11月1日 |
ケータイ用バーコード |
- スマートフォンでこの物件を見る
- スマートフォンからもこの物件をご覧になれます。
|
※「-」と表示されている項目については、情報提供会社にご確認ください。
周辺施設 |
ドミノピザ北上野店 |
距離 |
270m |
写真を見る |
周辺施設 |
国立科学博物館 |
距離 |
819m |
写真を見る |
周辺施設 |
まいばすけっと北上野2丁目店 |
距離 |
255m |
写真を見る |
周辺施設 |
マルエツ東上野店 |
距離 |
299m |
写真を見る |
周辺施設 |
ローソン台東北上野1丁目店 |
距離 |
109m |
写真を見る |
周辺施設 |
セブンイレブン台東北上野1丁目店 |
距離 |
166m |
写真を見る |
ここから簡単にお問い合わせをすることができます。
(SSLでの暗号化での送信を希望されるお客さまは
こちら
よりお問い合わせください)
お問い合わせを行う前に
「個人情報の取り扱いについて」を必ずお読みください。
「個人情報の取り扱いについて」に同意いただいた場合は「上記にご同意の上 確認画面へ進む」のボタンをクリックしてください。
個人情報の取り扱いについて
皆さまが送付された個人情報はアットホーム(株)のサーバを経由し、お問い合わせ先の不動産会社にメールまたはFAXにて転送されるためアットホーム(株)にも保管されます。アットホーム(株)で保管された個人情報の取り扱いについては、【こちら】をご覧ください。
また、本画面でご記入いただいた個人情報は、お問い合わせ先の不動産会社でも保管します。 お問い合わせ先の不動産会社が保管する個人情報の取り扱いについては、不動産会社に直接お問い合わせください。
東京都知事免許(8)第61038号 |
---|
- 交通:
- JR山手線/上野駅 徒歩1分
- 東京都台東区上野7丁目4-9 細田ビル1階
- TEL:
- 03-5828-0081
- FAX:
- 03-5828-0048
- 所属団体:
- (公社)東京都宅地建物取引業協会会員(公社)首都圏不動産公正取引協議会加盟
取引態様:仲介  - 00550557
|
- スマートフォンで
この不動産会社を見る

|
- 提携サイト等より掲載されている物件情報につきましては、不動産会社詳細情報にリンクされていないものがあります。
- 物件に関するお問合せは、物件詳細ページの「情報提供会社」に表示されている不動産会社へ直接お願いいたします。
- 間取図は、現況を優先させていただきます。
- 映像は物件の一部を撮影したものです。物件の契約にあたっての最終判断はご自身の判断に基づいて行ってください。
- 仲介手数料について

アットホームは物件情報の適正化に努めております。
内容に誤りがある場合にはこちらへご連絡ください。