不動産 賃貸 マンション等の住宅情報:埼玉住まい情報


佐賀県佐賀市鍋島町大字八戸溝(鍋島駅)の賃貸:物件詳細

  • 物件詳細
  • 情報の見方
  • 印刷用画面
交通
所在地
駅徒歩 賃料
管理費等
敷金/保証金
礼金
間取り
面積
物件種目
築年月

JR長崎本線/鍋島

佐賀県佐賀市鍋島町大字八戸溝

8分

6.5万円

2,000円

なし / なし

なし

1LDK

62.10m²

賃貸アパート

2000年3月(築25年8ヶ月)

おすすめPOINTペット相談、駐車場2台分、南向き、二人入居可、IT重説対応物件

おすすめコメント

2025.9リノベーション物件です。インターネットWIFI無料です!駐車場1台カーポート付、ペット可物件でドッグランもついています。

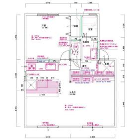
間取図

間取図

2025.9リノベーション完了で、3DKを1LDKにしちゃいました☆

外観

外観

<
その他の画像
  • 玄関
  • キッチン
  • 洗面
  • バス/シャワー
  • トイレ
  • 室内
  • 室内
  • 室内
  • 室内
  • その他
  • その他
  • その他
  • その他
>
    • とりあえず保存
    • お問い合わせ
    交通

    JR長崎本線 鍋島駅 徒歩8分

    所在地 佐賀県佐賀市鍋島町大字八戸溝
    物件種目 賃貸アパート
    賃料 6.5万円 管理費等 2,000円
    敷金 / 保証金 なし / なし 礼金 なし
    敷引 保証金償却
    その他一時金 ペット飼育負担金:65,000円、退去時清掃代:83,600円、鍵交換代等:11,000円~ 保険等 要 1年 12,000円
    維持費等 町内会費:800円/月、くらしーど24M:880円/月
    間取り 1LDK(LDK20.5 洋8) 専有面積 62.10m²
    築年月 2000年3月(築25年8ヶ月) 階建 / 階 2階建 / 1階
    建物構造 軽量鉄骨造 総戸数 8戸
    主要採光面 駐車場 有 3,300円/月
    バイク置き場 空無 駐輪場 空無
    建物名・部屋番号 セジュール小池 ペット 小型犬可・ 敷地内ドッグランあります
    アピールポイント 2025.9リノベーション完成物件です!収納棚を沢山つけました。インターネットWIFI無料です!駐車場1台カーポート付、ペット飼育可能(小型犬)です♪なんとドッグラン付です!ペット飼育時共益費3,000円
    リフォーム履歴
    リノベーション履歴 2025年9月
    キッチン、洗面台交換、3DK⇒1LDKに変更しました。
    ※実施年月は最も古い履歴を表示
    備考
    賃貸保証等:加入要(保証料:毎月支払い総額の50% 1年更新5,000円)
    管理形態/管理員の勤務形態:-/-
    IT重説対応物件
    魅力が満載、当物件のおすすめポイント。IT重説可能!非対面でのご契約が簡単に行えます。インターネット無料でご利用いただけます。コンロ3口以上!お料理好きな方におすすめです。洗濯機置き場が室内にあります。停電しても使用できます。火が通りやすく細かく温度調整できるガスコンロ付きです。嬉しい専用庭付きとなっております。2台並列で車を停められる駐車場スペースがございます。ウッドデッキ付き!ガーデニングなどの趣味をお楽しみください。カーポート付きなので天候に左右されずに車の乗り降りができます。ケーブルテレビが視聴可能となっております。嬉しい温水便座付き!感染予防にもつながり、冬でも便座が冷たくありません。空調安心のエアコン2台付きとなっております。ペットと一緒暮らすことのできるペット可物件です。二人入居可能となっております。バストイレ別の間取りです。CATVインターネットを利用可能となっております。クローゼット付きなので収納充実しております。施錠や解錠が簡単にできるカードキー施錠付き!防犯性が高く人気です。魅力が満載、当物件のおすすめポイント。
    エネルギー消費性能
    断熱性能
    目安光熱費
    バス・トイレ バス・トイレ別、高温差湯式、シャワー付洗面化粧台、洗面台、シャワー、温水洗浄便座
    キッチン システムキッチン、3口以上コンロ、ガスコンロ付
    セキュリティー モニター付インターホン、カードキー
    収納 クローゼット
    設備・サービス エアコン2台以上、室内洗濯機置場、洗濯機置場、給湯、室内物干し、プロパンガス、エアコン、ダウンライト
    TV・通信 インターネット対応、インターネット使用料無料、CATVインターネット、ケーブルTV
    その他 バイク置き場、専用庭、庭、ウッドデッキ、駐輪場
    契約期間 2年 現況 空家
    条件等 入居可能時期 即時
    仲介手数料 7.15万円    
    更新料 なし 物件番号 1031784675
    情報公開日 2025年9月1日 次回更新予定日 2025年11月3日
    ケータイ用バーコード

    QRコード

    スマートフォンでこの物件を見る
    スマートフォンからもこの物件をご覧になれます。
    ※「-」と表示されている項目については、情報提供会社にご確認ください。

    この物件の周辺情報

    周辺施設 開成小学校
    距離 1280m
    周辺施設 鍋島中学校
    距離 2640m
    周辺施設 スーパー
    距離 640m
    周辺施設 コンビニ
    距離 750m
    周辺施設 病院
    距離 1600m

    クイックお問い合わせ

    ここから簡単にお問い合わせをすることができます。
    (SSLでの暗号化での送信を希望されるお客さまは こちら よりお問い合わせください)

    お問い合わせ内容(必須)
    お名前(必須) 姓  名 
    メールアドレス(必須)
    ※携帯電話のメールアドレスをご入力される方はこちらをご確認ください
    電話番号(必須)
    - -

    ※入力いただいた電話番号へSMSまたは音声でパスワードをご連絡します。

    携帯電話の番号をご入力の方へ

    携帯電話の番号をご入力の方へ
    確認画面にて送信ボタンをクリックするとSMSが携帯電話に届きます。
    そのSMSに記載のパスワード(認証番号)を入力し、お問い合わせを完了してください。
    尚、SMSの送信者番号は 0005 202 760 となります。
    これはアットホームの固定番号です。

    備考欄 希望条件、物件案内希望日、質問などがございましたらご記入ください。
    お問い合わせを行う前に「個人情報の取り扱いについて」を必ずお読みください。
    「個人情報の取り扱いについて」に同意いただいた場合は「上記にご同意の上 確認画面へ進む」のボタンをクリックしてください。

    個人情報の取り扱いについて

    皆さまが送付された個人情報はアットホーム(株)のサーバを経由し、お問い合わせ先の不動産会社にメールまたはFAXにて転送されるためアットホーム(株)にも保管されます。アットホーム(株)で保管された個人情報の取り扱いについては、【こちら】をご覧ください。
    また、本画面でご記入いただいた個人情報は、お問い合わせ先の不動産会社でも保管します。 お問い合わせ先の不動産会社が保管する個人情報の取り扱いについては、不動産会社に直接お問い合わせください。

    情報提供会社

    情報提供会社

    (株)若松商事

    佐賀県知事免許(12)第1124号

    交通:
    【バス】 北高前
    佐賀県佐賀市天祐2丁目2-23 
    TEL:
    0952-26-5008
    FAX:
    0952-26-5020
    所属団体:
    (公社)佐賀県宅地建物取引業協会会員
    (公財)日本賃貸住宅管理協会会員
    (一社)九州不動産公正取引協議会加盟

    取引態様:仲介

    • 会社情報
    • 80500898
    スマートフォンで
    この不動産会社を見る
    QRコード
    • とりあえず保存
    • お問い合わせ
    • 提携サイト等より掲載されている物件情報につきましては、不動産会社詳細情報にリンクされていないものがあります。
    • 物件に関するお問合せは、物件詳細ページの「情報提供会社」に表示されている不動産会社へ直接お願いいたします。
    • 間取図は、現況を優先させていただきます。
    • 映像は物件の一部を撮影したものです。物件の契約にあたっての最終判断はご自身の判断に基づいて行ってください。
    • 仲介手数料について仲介手数料

    アットホームは物件情報の適正化に努めております。 内容に誤りがある場合にはこちらへご連絡ください。

    【埼玉住まい情報】では、日本全国の物件から賃貸マンションや賃貸アパート・賃貸一戸建て等の賃貸住宅情報、新築マンション・分譲マンションや中古マンション等の売買マンション情報、新築一戸建てや中古一戸建てなどの戸建住宅、 土地など、総合的な不動産住宅情報検索サービスを提供致します。
    【埼玉住まい情報】から、選りすぐりの不動産物件を探してみましょう。

    【免責事項】
    このコーナーの運営はアットホーム株式会社(https://www.athome.co.jp/)が行っています。
    このコーナーに掲載している物件情報は、「アットホーム不動産情報ネットワーク」に加盟する不動産会社等(情報提供元)から提供されています。信頼性の高い情報提供が行えるよう、最大限の努力をしておりますが、その内容を保証するものではありません。 利用者のみなさまと各情報提供元との取引に起因する損害および情報が掲載されたことに起因する損害等については、株式会社イーシティ埼玉、およびアットホームは一切責任を負いません。
    各物件情報の内容や画像等はすべて現況を優先させていただきます。
    お取引等(お取引の準備、資金調達等を含みます)の際には、内容や契約条件等について、各情報提供元より十分な説明を受け、ご自身でご確認の上、判断してください。
    このコーナーへの物件情報のご掲載、その他不動産業務ソリューション等についての不動産会社様のお問合せはこちらからお願いいたします。

    物件画像: