福岡県福岡市中央区大濠1丁目(六本松駅)の賃貸:物件詳細
交通 所在地 |
駅徒歩 |
賃料 管理費等 |
敷金/保証金 礼金 |
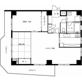
間取り 面積 |
物件種目 築年月 |
|
地下鉄七隈線/六本松
福岡県福岡市中央区大濠1丁目
|
12分
|
18.5万円
なし
|
1ヶ月 / なし
2ヶ月
|
2LDK
72.87m²
|
賃貸マンション
1973年10月(築52年1ヶ月)
|
角部屋、閑静な住宅街
|
|
間取図
|
外観
|
<
その他の画像
>
|
| 交通 | 地下鉄七隈線 六本松駅 徒歩12分 |
|---|
| その他の交通 | 地下鉄空港線 唐人町駅 徒歩14分 地下鉄空港線 大濠公園駅 徒歩16分 |
| 所在地 |
福岡県福岡市中央区大濠1丁目
|
| 物件種目 |
賃貸マンション |
| 賃料 |
18.5万円 |
管理費等 |
なし |
| 敷金 / 保証金 |
1ヶ月 / なし |
礼金 |
2ヶ月 |
| 敷引 |
- |
保証金償却 |
- |
| その他一時金 |
なし |
保険等 |
要 |
| 維持費等 |
- |
| 間取り |
2LDK |
専有面積 |
72.87m² |
| 築年月 |
1973年10月(築52年1ヶ月)
|
階建 / 階 |
6階建 / 3階 |
| 建物構造 |
SRC |
総戸数 |
- |
| 主要採光面 |
北東 |
駐車場 |
有 無料 |
| バイク置き場 |
- |
駐輪場 |
- |
| 建物名・部屋番号 |
メゾン大濠 301 |
ペット |
-
|
| リフォーム履歴 |
- |
| リノベーション履歴 |
- |
| 備考 |
管理形態/管理員の勤務形態:-/-
バルコニー:18.75m²
|
| エネルギー消費性能 |
- |
| 断熱性能 |
- |
| 目安光熱費 |
- |
| バス・トイレ |
バス・トイレ別、洗面所独立、洗面台、シャワー、温水洗浄便座、トイレ |
| キッチン |
システムキッチン、食器洗浄乾燥機、浄水器 |
| セキュリティー |
モニター付インターホン、防犯カメラ |
| 収納 |
収納スペース、トランクルーム、クローゼット、シューズボックス |
| 設備・サービス |
エアコン2台以上、室内洗濯機置場、給湯、フローリング、都市ガス、複層ガラス |
| TV・通信 |
BS端子 |
| その他 |
二面バルコニー、バルコニー、エレベーター |
| 契約期間 |
4年 |
現況 |
空家 |
| 条件等 |
定期借家 |
入居可能時期 |
相談 |
| 更新料 |
- |
物件番号 |
1032602592 |
| 情報公開日 |
2025年9月30日 |
次回更新予定日 |
2025年10月29日 |
| ケータイ用バーコード |
- スマートフォンでこの物件を見る
- スマートフォンからもこの物件をご覧になれます。
|
※「-」と表示されている項目については、情報提供会社にご確認ください。
ここから簡単にお問い合わせをすることができます。
(SSLでの暗号化での送信を希望されるお客さまは
こちら
よりお問い合わせください)
お問い合わせを行う前に
「個人情報の取り扱いについて」を必ずお読みください。
「個人情報の取り扱いについて」に同意いただいた場合は「上記にご同意の上 確認画面へ進む」のボタンをクリックしてください。
個人情報の取り扱いについて
皆さまが送付された個人情報はアットホーム(株)のサーバを経由し、お問い合わせ先の不動産会社にメールまたはFAXにて転送されるためアットホーム(株)にも保管されます。アットホーム(株)で保管された個人情報の取り扱いについては、【こちら】をご覧ください。
また、本画面でご記入いただいた個人情報は、お問い合わせ先の不動産会社でも保管します。 お問い合わせ先の不動産会社が保管する個人情報の取り扱いについては、不動産会社に直接お問い合わせください。
福岡県知事免許(4)第16246号 |
|---|
- 交通:
- 地下鉄空港線/藤崎駅
- 福岡県福岡市早良区藤崎1丁目1-40 藤崎駅ビル2F
- TEL:
- 092-833-1222
- FAX:
- 092-834-0065
- 所属団体:
- (公社)福岡県宅地建物取引業協会会員(一社)九州不動産公正取引協議会加盟
取引態様:仲介  - 80503458
|
- スマートフォンで
この不動産会社を見る

|
- 提携サイト等より掲載されている物件情報につきましては、不動産会社詳細情報にリンクされていないものがあります。
- 物件に関するお問合せは、物件詳細ページの「情報提供会社」に表示されている不動産会社へ直接お願いいたします。
- 間取図は、現況を優先させていただきます。
- 映像は物件の一部を撮影したものです。物件の契約にあたっての最終判断はご自身の判断に基づいて行ってください。
- 仲介手数料について

アットホームは物件情報の適正化に努めております。
内容に誤りがある場合にはこちらへご連絡ください。