東京都新宿区高田馬場3丁目(高田馬場駅)の賃貸:物件詳細
交通 所在地 |
駅徒歩 |
賃料 管理費等 |
敷金/保証金 礼金 |
間取り 面積 |
物件種目 築年月 |
|
JR山手線/高田馬場
東京都新宿区高田馬場3丁目
|
5分
|
16.4万円
15,000円
|
なし / なし
16.4万円
|
1K
30.38m²
|
賃貸マンション
2020年4月(築5年9ヶ月)
|
24時間換気システム、IT重説対応物件、保証人不要
|
|
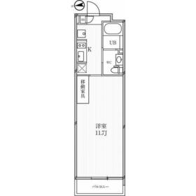
間取図
|
外観
|
<
その他の画像
>
|
| 交通 | JR山手線 高田馬場駅 徒歩5分 |
|---|
| その他の交通 | 西武新宿線 下落合駅 徒歩11分 JR山手線 目白駅 徒歩13分 |
| 所在地 |
東京都新宿区高田馬場3丁目
|
| 物件種目 |
賃貸マンション |
| 賃料 |
16.4万円 |
管理費等 |
15,000円 |
| 敷金 / 保証金 |
なし / なし |
礼金 |
16.4万円 |
| 敷引 |
- |
保証金償却 |
- |
| その他一時金 |
Goodプレミアムα:12,100円、住宅総合保険:28,000円、Goodプレミアムα登録料:2,200円、鍵交換代等:24,200円~ |
保険等 |
要 2年 28,000円 |
| 維持費等 |
- |
クレジットカード決済 |
初期費用可 |
| 間取り |
1K(洋室11.7帖) |
専有面積 |
30.38m² |
| 築年月 |
2020年4月(築5年9ヶ月)
|
階建 / 階 |
地上5階地下1階建 / 3階 |
| 建物構造 |
RC |
総戸数 |
23戸 |
| 主要採光面 |
西 |
駐車場 |
- |
| バイク置き場 |
- |
駐輪場 |
有 |
| 建物名・部屋番号 |
ルクレ高田馬場 304 |
ペット |
-
|
| アピールポイント |
★山手線・東西線・西武新宿線のお部屋探しならタウンハウジングへ★★創業46年の信頼と、首都圏直営139店舗のネットワークで、お客様のご要望にお応えします。★2023年度全国仲介件数第2位(全国賃貸新聞2024掲載)★ |
| リフォーム履歴 |
- |
| リノベーション履歴 |
- |
| 備考 |
賃貸保証等:加入要(ご確認必要。)
管理形態/管理員の勤務形態:-/-
IT重説対応物件
★山手線・東西線・西武新宿線のお部屋探しならタウンハウジングへ★★創業46年の信頼と、首都圏直営139店舗のネットワークで、お客様のご要望にお応えします。★2023年度全国仲介件数第2位(全国賃貸新聞2024掲載)★
|
| エネルギー消費性能 |
- |
| 断熱性能 |
- |
| 目安光熱費 |
- |
| バス・トイレ |
バス・トイレ別、浴室暖房、浴室乾燥機、洗面所、洗面台、シャワー、温水洗浄便座、トイレ |
| キッチン |
システムキッチン、2口コンロ、ガスコンロ付 |
| セキュリティー |
モニター付オートロック、オートロック、モニター付インターホン |
| 収納 |
収納スペース、クローゼット、シューズボックス |
| 設備・サービス |
洗濯機置場、給湯、フローリング、都市ガス、エアコン |
| TV・通信 |
インターネット対応、インターネット使用料無料 |
| その他 |
宅配BOX、バルコニー、駐輪場、エレベーター |
| 契約期間 |
2年 |
現況 |
空家 |
| 条件等 |
- |
入居可能時期 |
即時 |
| 更新料 |
新賃料 1ヶ月 |
物件番号 |
1034575595 |
| 情報公開日 |
2025年10月25日 |
次回更新予定日 |
2025年12月23日 |
| ケータイ用バーコード |
- スマートフォンでこの物件を見る
- スマートフォンからもこの物件をご覧になれます。
|
※「-」と表示されている項目については、情報提供会社にご確認ください。
| 周辺施設 |
マルエツプチ高田馬場店 |
| 距離 |
370m |
写真を見る |
| 周辺施設 |
セブンイレブン新宿下落合1丁目店 |
| 距離 |
280m |
写真を見る |
| 周辺施設 |
薬ヒグチ戸塚店 |
| 距離 |
310m |
写真を見る |
| 周辺施設 |
どらっぐぱぱす下落合店 |
| 距離 |
810m |
写真を見る |
ここから簡単にお問い合わせをすることができます。
(SSLでの暗号化での送信を希望されるお客さまは
こちら
よりお問い合わせください)
お問い合わせを行う前に
「個人情報の取り扱いについて」を必ずお読みください。
「個人情報の取り扱いについて」に同意いただいた場合は「上記にご同意の上 確認画面へ進む」のボタンをクリックしてください。
個人情報の取り扱いについて
皆さまが送付された個人情報はアットホーム(株)のサーバを経由し、お問い合わせ先の不動産会社にメールまたはFAXにて転送されるためアットホーム(株)にも保管されます。アットホーム(株)で保管された個人情報の取り扱いについては、【こちら】をご覧ください。
また、本画面でご記入いただいた個人情報は、お問い合わせ先の不動産会社でも保管します。 お問い合わせ先の不動産会社が保管する個人情報の取り扱いについては、不動産会社に直接お問い合わせください。
国土交通大臣免許(1)第9926号 |
|---|
- 交通:
- JR山手線/高田馬場駅 徒歩2分
- 東京都新宿区高田馬場1丁目25-28 佐藤ビル2F
- TEL:
- 03-3232-1201
- FAX:
- 03-3232-1202
取引態様:仲介  - 00313986
|
- スマートフォンで
この不動産会社を見る

|
- 提携サイト等より掲載されている物件情報につきましては、不動産会社詳細情報にリンクされていないものがあります。
- 物件に関するお問合せは、物件詳細ページの「情報提供会社」に表示されている不動産会社へ直接お願いいたします。
- 間取図は、現況を優先させていただきます。
- 映像は物件の一部を撮影したものです。物件の契約にあたっての最終判断はご自身の判断に基づいて行ってください。
- 仲介手数料について

アットホームは物件情報の適正化に努めております。
内容に誤りがある場合にはこちらへご連絡ください。