東京都世田谷区松原2丁目(明大前駅)の賃貸:物件詳細
交通 所在地 |
駅徒歩 |
賃料 管理費等 |
敷金/保証金 礼金 |
間取り 面積 |
物件種目 築年月 |
|
京王井の頭線/明大前
東京都世田谷区松原2丁目
|
2分
|
15.6万円
12,000円
|
なし / なし
1ヶ月
|
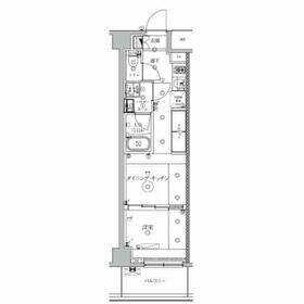
1DK
29.58m²
|
賃貸マンション
2022年2月(築3年10ヶ月)
|
ペット相談、デザイナーズ、外観タイル張り、IT重説対応物件、保証人不要
|
|
間取図
|
外観
外観
|
<
その他の画像
>
|
| 交通 | 京王井の頭線 明大前駅 徒歩2分 |
|---|
| その他の交通 | 京王線 明大前駅 徒歩2分 京王井の頭線 東松原駅 徒歩11分 |
| 所在地 |
東京都世田谷区松原2丁目
|
| 物件種目 |
賃貸マンション |
| 賃料 |
15.6万円 |
管理費等 |
12,000円 |
| 敷金 / 保証金 |
なし / なし |
礼金 |
1ヶ月 |
| 敷引 |
- |
保証金償却 |
- |
| その他一時金 |
なし |
保険等 |
要 2年 16,550円 |
| 維持費等 |
- |
クレジットカード決済 |
その他可 クレジット可能条件等:- |
| 間取り |
1DK |
専有面積 |
29.58m² |
| 築年月 |
2022年2月(築3年10ヶ月)
|
階建 / 階 |
7階建 / 4階 |
| 建物構造 |
RC |
総戸数 |
60戸 |
| 主要採光面 |
西 |
駐車場 |
- |
| バイク置き場 |
有 |
駐輪場 |
有 |
| 建物名・部屋番号 |
ニューミラ明大前 404 |
ペット |
相談 |
| アピールポイント |
ーお部屋探しは『タウンハウジング』で検索ー気になる物件まとめてご紹介可能です。他社様で掲載されている物件もまとめてお問い合わせください!お電話でのお問い合わせも可能です。 |
| リフォーム履歴 |
- |
| リノベーション履歴 |
- |
| 備考 |
賃貸保証等:加入要(エポスカード(RP) 保証料:賃料等の50%(最低2万)、月額保証料:賃料等の1%(更新料無))
管理形態/管理員の勤務形態:-/巡回
IT重説対応物件、管理人巡回
★インターネット上の物件はほぼ全てご紹介可能★
タウンハウジングは、200社以上の会社と取引があり、常に新着の情報を仕入れております。 地域トップクラスの情報量・取扱い物件をお客様にご提案させていただきます。一部クレジット払いも対応しています♪♪♪オンライン内見、オンライン申し込みも対応可能★
|
| エネルギー消費性能 |
- |
| 断熱性能 |
- |
| 目安光熱費 |
- |
| バス・トイレ |
TV付浴室、バス・トイレ別、浴室暖房、浴室乾燥機、追焚機能、洗面所独立、洗面所、洗面台、シャワー、温水洗浄便座、トイレ |
| キッチン |
システムキッチン、2口コンロ、ガスコンロ付 |
| セキュリティー |
モニター付オートロック、オートロック、モニター付インターホン、ダブルロックドア、防犯カメラ、火災警報器(報知機) |
| 収納 |
収納スペース、クローゼット、シューズボックス |
| 設備・サービス |
室内洗濯機置場、都市ガス給湯、給湯、全居室フローリング、フローリング、都市ガス、エアコン、暖房、冷房 |
| TV・通信 |
インターネット対応、インターネット使用料無料、CS、BS端子 |
| その他 |
宅配BOX、バイク置き場、バルコニー、駐輪場、エレベーター |
| 契約期間 |
2年 |
現況 |
居住中 |
| 条件等 |
定期借家 |
入居可能時期 |
2025年12月中旬予定 |
| 更新料 |
なし |
物件番号 |
1038661366 |
| 情報公開日 |
2025年11月8日 |
次回更新予定日 |
2025年11月22日 |
| ケータイ用バーコード |
- スマートフォンでこの物件を見る
- スマートフォンからもこの物件をご覧になれます。
|
※「-」と表示されている項目については、情報提供会社にご確認ください。
| 周辺施設 |
明大前駅(京王 京王線) |
| 距離 |
100m |
写真を見る |
| 周辺施設 |
フレンテ明大前 |
| 距離 |
170m |
写真を見る |
| 周辺施設 |
まいばすけっと松原2丁目店 |
| 距離 |
70m |
写真を見る |
| 周辺施設 |
生鮮食品館AZUMA明大前店 |
| 距離 |
210m |
写真を見る |
| 周辺施設 |
ファミリーマート世田谷松原一丁目店 |
| 距離 |
230m |
写真を見る |
| 周辺施設 |
ココカラファイン |
| 距離 |
40m |
写真を見る |
| 周辺施設 |
TSUTAYA明大前店 |
| 距離 |
130m |
写真を見る |
| 周辺施設 |
ガスト明大前店 |
| 距離 |
80m |
写真を見る |
ここから簡単にお問い合わせをすることができます。
(SSLでの暗号化での送信を希望されるお客さまは
こちら
よりお問い合わせください)
お問い合わせを行う前に
「個人情報の取り扱いについて」を必ずお読みください。
「個人情報の取り扱いについて」に同意いただいた場合は「上記にご同意の上 確認画面へ進む」のボタンをクリックしてください。
個人情報の取り扱いについて
皆さまが送付された個人情報はアットホーム(株)のサーバを経由し、お問い合わせ先の不動産会社にメールまたはFAXにて転送されるためアットホーム(株)にも保管されます。アットホーム(株)で保管された個人情報の取り扱いについては、【こちら】をご覧ください。
また、本画面でご記入いただいた個人情報は、お問い合わせ先の不動産会社でも保管します。 お問い合わせ先の不動産会社が保管する個人情報の取り扱いについては、不動産会社に直接お問い合わせください。
国土交通大臣免許(1)第9926号 |
|---|
- 交通:
- 京王井の頭線/明大前駅 徒歩1分
- 東京都世田谷区松原2丁目45-2 レインボー591 1F
- TEL:
- 03-3322-8331
- FAX:
- 03-3322-8332
取引態様:仲介  - 00019594
|
- スマートフォンで
この不動産会社を見る

|
- 提携サイト等より掲載されている物件情報につきましては、不動産会社詳細情報にリンクされていないものがあります。
- 物件に関するお問合せは、物件詳細ページの「情報提供会社」に表示されている不動産会社へ直接お願いいたします。
- 間取図は、現況を優先させていただきます。
- 映像は物件の一部を撮影したものです。物件の契約にあたっての最終判断はご自身の判断に基づいて行ってください。
- 仲介手数料について

アットホームは物件情報の適正化に努めております。
内容に誤りがある場合にはこちらへご連絡ください。