東京都墨田区東向島1丁目(曳舟駅)の賃貸:物件詳細
交通 所在地 |
駅徒歩 |
賃料 管理費等 |
敷金/保証金 礼金 |
間取り 面積 |
物件種目 築年月 |
|
東武伊勢崎線/曳舟
東京都墨田区東向島1丁目
|
5分
|
11.5万円
15,000円
|
1ヶ月 / なし
なし
|
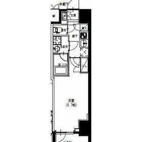
1K
27.80m²
|
賃貸マンション
2019年6月(築6年7ヶ月)
|
ペット相談、常時ゴミ出し可能、南向き、外観タイル張り、IT重説対応物件、保証人不要
|
|
間取図
|
外観
|
<
その他の画像
>
|
| 交通 | 東武伊勢崎線 曳舟駅 徒歩5分 |
|---|
| その他の交通 | 東京メトロ半蔵門線 押上駅 徒歩11分 京成押上線 京成曳舟駅 徒歩9分 |
| 所在地 |
東京都墨田区東向島1丁目
|
| 物件種目 |
賃貸マンション |
| 賃料 |
11.5万円 |
管理費等 |
15,000円 |
| 敷金 / 保証金 |
1ヶ月 / なし |
礼金 |
なし |
| 敷引 |
- |
保証金償却 |
- |
| その他一時金 |
なし |
保険等 |
要 |
| 維持費等 |
- |
クレジットカード決済 |
初期費用可 |
| 間取り |
1K(洋室8.7帖) |
専有面積 |
27.80m² |
| 築年月 |
2019年6月(築6年7ヶ月)
|
階建 / 階 |
12階建 / 2階 |
| 建物構造 |
RC |
総戸数 |
76戸 |
| 主要採光面 |
南 |
駐車場 |
有 27,500円/月 |
| バイク置き場 |
有 3,300円/月 |
駐輪場 |
有 |
| 建物名・部屋番号 |
S-RESIDENCE曳舟 205 |
ペット |
小型犬可・ 猫可 |
| アピールポイント |
☆初期費用・設備の詳細情報、ご来店予約をお急ぎのお客様は03-6859-2555までお気軽にお電話下さいませ♪ご提案、内見手配、ご契約まで女性専任スタッフによる安心安全のお部屋探しも実施しております☆ |
| リフォーム履歴 |
- |
| リノベーション履歴 |
- |
| 備考 |
賃貸保証等:加入要(初回総賃料の0.5ヶ月。1年毎に13000円。)
管理形態/管理員の勤務形態:-/-
駐車場敷金:1.00ヶ月
IT重説対応物件
火災保険18000円。口振手数料月額330円。ペット飼育時敷金1ヶ月増。1年未満解約時違約金総賃料1ヶ月分。退去時鍵交換代33000円、クリーニング代38500円、エアコンクリーニング代16500円。
|
| エネルギー消費性能 |
- |
| 断熱性能 |
- |
| 目安光熱費 |
- |
| バス・トイレ |
バス・トイレ別、浴室乾燥機、洗面所独立、洗面台、シャワー、温水洗浄便座、トイレ |
| キッチン |
システムキッチン、2口コンロ、ガスコンロ付 |
| セキュリティー |
モニター付オートロック、オートロック、モニター付インターホン、防犯カメラ |
| 収納 |
収納スペース、クローゼット、シューズボックス |
| 設備・サービス |
室内洗濯機置場、給湯、フローリング、都市ガス、エアコン |
| TV・通信 |
インターネット対応、インターネット使用料無料、光ファイバー |
| その他 |
宅配BOX、バイク置き場、バルコニー、駐輪場、エレベーター |
| 契約期間 |
2年 |
現況 |
居住中 |
| 条件等 |
- |
入居可能時期 |
2026年2月上旬予定 |
| 更新料 |
新賃料 1ヶ月 |
物件番号 |
1039994598 |
| 情報公開日 |
2025年12月16日 |
次回更新予定日 |
2025年12月30日 |
| ケータイ用バーコード |
- スマートフォンでこの物件を見る
- スマートフォンからもこの物件をご覧になれます。
|
※「-」と表示されている項目については、情報提供会社にご確認ください。
| 周辺施設 |
イトーヨーカドー曳舟店 |
| 距離 |
680m |
写真を見る |
| 周辺施設 |
セブンイレブン東武曳舟駅前店 |
| 距離 |
330m |
写真を見る |
| 周辺施設 |
くら寿司 スカイツリー押上駅前店 |
| 距離 |
980m |
写真を見る |
| 周辺施設 |
どらっぐぱぱす東向島店 |
| 距離 |
310m |
写真を見る |
| 周辺施設 |
ニトリ 押上駅前店 |
| 距離 |
1080m |
写真を見る |
ここから簡単にお問い合わせをすることができます。
(SSLでの暗号化での送信を希望されるお客さまは
こちら
よりお問い合わせください)
お問い合わせを行う前に
「個人情報の取り扱いについて」を必ずお読みください。
「個人情報の取り扱いについて」に同意いただいた場合は「上記にご同意の上 確認画面へ進む」のボタンをクリックしてください。
個人情報の取り扱いについて
皆さまが送付された個人情報はアットホーム(株)のサーバを経由し、お問い合わせ先の不動産会社にメールまたはFAXにて転送されるためアットホーム(株)にも保管されます。アットホーム(株)で保管された個人情報の取り扱いについては、【こちら】をご覧ください。
また、本画面でご記入いただいた個人情報は、お問い合わせ先の不動産会社でも保管します。 お問い合わせ先の不動産会社が保管する個人情報の取り扱いについては、不動産会社に直接お問い合わせください。
国土交通大臣免許(2)第9556号 |
|---|
- 交通:
- 東京メトロ半蔵門線/押上駅 徒歩1分
- 東京都墨田区押上1丁目23-2 ForestVillage1階
- TEL:
- 03-6859-2555
- FAX:
- 03-6859-2556
- 所属団体:
- (公財)日本賃貸住宅管理協会会員(公社)全日本不動産協会会員(公社)首都圏不動産公正取引協議会加盟
取引態様:仲介  - 00275928
|
- スマートフォンで
この不動産会社を見る

|
- 提携サイト等より掲載されている物件情報につきましては、不動産会社詳細情報にリンクされていないものがあります。
- 物件に関するお問合せは、物件詳細ページの「情報提供会社」に表示されている不動産会社へ直接お願いいたします。
- 間取図は、現況を優先させていただきます。
- 映像は物件の一部を撮影したものです。物件の契約にあたっての最終判断はご自身の判断に基づいて行ってください。
- 仲介手数料について

アットホームは物件情報の適正化に努めております。
内容に誤りがある場合にはこちらへご連絡ください。