不動産 賃貸 マンション等の住宅情報:埼玉住まい情報


東京都港区三田4丁目(泉岳寺駅)の賃貸:物件詳細

  • 物件詳細
  • 情報の見方
  • 印刷用画面
交通
所在地
駅徒歩 賃料
管理費等
敷金/保証金
礼金
間取り
面積
物件種目
築年月

京急本線/泉岳寺

東京都港区三田4丁目

3分

6.5万円

6,000円

6.5万円 / なし

6.5万円

ワンルーム

15.66m²

賃貸マンション

1985年8月(築40年3ヶ月)

おすすめPOINT分譲タイプ、南向き、外観タイル張り

おすすめコメント

物件の見学・詳細のお問い合わせは、ピタットハウス東新宿店へ☆

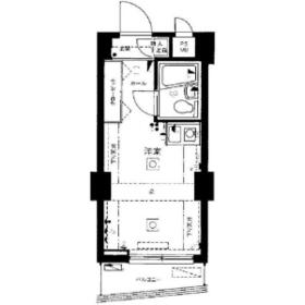
間取図

間取図

外観

外観

<
その他の画像
  • リビング
  • その他
  • キッチン
  • バス/シャワー
  • エントランス
  • 共有部分
  • その他
  • 収納
  • 眺望
  • その他
  • バルコニー
  • 販売店
  • コンビニ
>
    • とりあえず保存
    • お問い合わせ
    交通

    京急本線 泉岳寺駅 徒歩3分

    その他の交通

    JR山手線 高輪ゲートウェイ駅 徒歩10分

    東京メトロ南北線 白金高輪駅 徒歩10分

    所在地 東京都港区三田4丁目
    物件種目 賃貸マンション
    賃料 6.5万円 管理費等 6,000円
    敷金 / 保証金 6.5万円 / なし 礼金 6.5万円
    敷引 6.5万円 保証金償却
    その他一時金 鍵交換費用:25,300円、ライフサポート:16,500円 保険等 要 2年 18,000円
    維持費等 決済手数料:550円/月 クレジットカード決済 初期費用可
    間取り ワンルーム 専有面積 15.66m²
    築年月 1985年8月(築40年3ヶ月) 階建 / 階 地上5階地下1階建 / 4階
    建物構造 RC 総戸数 77戸
    主要採光面 駐車場
    バイク置き場 駐輪場
    建物名・部屋番号 パレ・ドール高輪 409 ペット
    リフォーム履歴
    リノベーション履歴
    備考
    賃貸保証等:加入要(その他 初回:賃料等総額の50% 更新料:1万円/年 決済サービス料:550円(税込)/月)
    管理形態/管理員の勤務形態:-/-
    バルコニー:2.23m²
    分譲賃貸マンション☆
    洗濯機置き場なし、敷地内コインランドリー利用可能です。

    ・契約金全額又は一部クレジットカードがご利用いただけます!
    ・駐輪場の有無や空き状況は要確認
    ・退去時の室内クリーニング費用負担があります
    ・鍵交換は任意です
    エネルギー消費性能
    断熱性能
    目安光熱費
    バス・トイレ バス・トイレ同室、シャワー
    キッチン システムキッチン、IHクッキングヒーター
    セキュリティー
    収納 クローゼット、シューズボックス
    設備・サービス 給湯、都市ガス、エアコン
    TV・通信 BS端子
    その他 コインランドリー、バルコニー、エレベーター
    契約期間 2年 現況
    条件等 入居可能時期 2025年11月中旬予定
    更新料 新賃料 1ヶ月 物件番号 1041300675
    情報公開日 2025年9月22日 次回更新予定日 2025年10月21日
    ケータイ用バーコード

    QRコード

    スマートフォンでこの物件を見る
    スマートフォンからもこの物件をご覧になれます。
    ※「-」と表示されている項目については、情報提供会社にご確認ください。

    この物件の周辺情報

    周辺施設 ピーコックストア三田伊皿子店
    距離 303m
    周辺施設 ローソン三田4丁目店
    距離 110m

    クイックお問い合わせ

    ここから簡単にお問い合わせをすることができます。
    (SSLでの暗号化での送信を希望されるお客さまは こちら よりお問い合わせください)

    お問い合わせ内容(必須)
    お名前(必須) 姓  名 
    メールアドレス(必須)
    ※携帯電話のメールアドレスをご入力される方はこちらをご確認ください
    電話番号(必須)
    - -

    ※入力いただいた電話番号へSMSまたは音声でパスワードをご連絡します。

    携帯電話の番号をご入力の方へ

    携帯電話の番号をご入力の方へ
    確認画面にて送信ボタンをクリックするとSMSが携帯電話に届きます。
    そのSMSに記載のパスワード(認証番号)を入力し、お問い合わせを完了してください。
    尚、SMSの送信者番号は 0005 202 760 となります。
    これはアットホームの固定番号です。

    備考欄 希望条件、物件案内希望日、質問などがございましたらご記入ください。
    お問い合わせを行う前に「個人情報の取り扱いについて」を必ずお読みください。
    「個人情報の取り扱いについて」に同意いただいた場合は「上記にご同意の上 確認画面へ進む」のボタンをクリックしてください。

    個人情報の取り扱いについて

    皆さまが送付された個人情報はアットホーム(株)のサーバを経由し、お問い合わせ先の不動産会社にメールまたはFAXにて転送されるためアットホーム(株)にも保管されます。アットホーム(株)で保管された個人情報の取り扱いについては、【こちら】をご覧ください。
    また、本画面でご記入いただいた個人情報は、お問い合わせ先の不動産会社でも保管します。 お問い合わせ先の不動産会社が保管する個人情報の取り扱いについては、不動産会社に直接お問い合わせください。

    情報提供会社

    情報提供会社

    ピタットハウス東新宿店 (株)ニッテイライフ

    東京都知事免許(5)第80097号

    交通:
    東京メトロ副都心線/東新宿駅 徒歩3分
    東京都新宿区新宿6丁目28-7 新宿イーストコートB1
    TEL:
    03-4589-6715
    FAX:
    03-4589-6901
    所属団体:
    (公社)東京都宅地建物取引業協会会員
    (一社)全国住宅産業協会会員
    (公社)首都圏不動産公正取引協議会加盟

    取引態様:代理

    • 会社情報
    • 00162398
    スマートフォンで
    この不動産会社を見る
    QRコード
    • とりあえず保存
    • お問い合わせ
    • 提携サイト等より掲載されている物件情報につきましては、不動産会社詳細情報にリンクされていないものがあります。
    • 物件に関するお問合せは、物件詳細ページの「情報提供会社」に表示されている不動産会社へ直接お願いいたします。
    • 間取図は、現況を優先させていただきます。
    • 映像は物件の一部を撮影したものです。物件の契約にあたっての最終判断はご自身の判断に基づいて行ってください。
    • 仲介手数料について仲介手数料

    アットホームは物件情報の適正化に努めております。 内容に誤りがある場合にはこちらへご連絡ください。

    【埼玉住まい情報】では、日本全国の物件から賃貸マンションや賃貸アパート・賃貸一戸建て等の賃貸住宅情報、新築マンション・分譲マンションや中古マンション等の売買マンション情報、新築一戸建てや中古一戸建てなどの戸建住宅、 土地など、総合的な不動産住宅情報検索サービスを提供致します。
    【埼玉住まい情報】から、選りすぐりの不動産物件を探してみましょう。

    【免責事項】
    このコーナーの運営はアットホーム株式会社(https://www.athome.co.jp/)が行っています。
    このコーナーに掲載している物件情報は、「アットホーム不動産情報ネットワーク」に加盟する不動産会社等(情報提供元)から提供されています。信頼性の高い情報提供が行えるよう、最大限の努力をしておりますが、その内容を保証するものではありません。 利用者のみなさまと各情報提供元との取引に起因する損害および情報が掲載されたことに起因する損害等については、株式会社イーシティ埼玉、およびアットホームは一切責任を負いません。
    各物件情報の内容や画像等はすべて現況を優先させていただきます。
    お取引等(お取引の準備、資金調達等を含みます)の際には、内容や契約条件等について、各情報提供元より十分な説明を受け、ご自身でご確認の上、判断してください。
    このコーナーへの物件情報のご掲載、その他不動産業務ソリューション等についての不動産会社様のお問合せはこちらからお願いいたします。

    物件画像: