東京都世田谷区大原2丁目(代田橋駅)の賃貸:物件詳細
交通 所在地 |
駅徒歩 |
賃料 管理費等 |
敷金/保証金 礼金 |
間取り 面積 |
物件種目 築年月 |
|
京王線/代田橋
東京都世田谷区大原2丁目
|
4分
|
12.3万円
15,000円
|
なし / なし
1ヶ月
|
1DK
28.88m²
|
賃貸マンション
2021年6月(築4年9ヶ月)
|
ペット相談、分譲タイプ、常時ゴミ出し可能、角部屋、二人入居可、24時間セキュリティー、24時間換気システム、外観タイル張り、IT重説対応物件、保証人不要
|
|
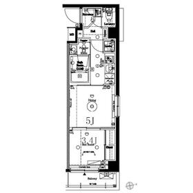
間取図
|
外観
|
<
その他の画像
>
|
| 交通 | 京王線 代田橋駅 徒歩4分 |
|---|
| その他の交通 | 京王線 笹塚駅 徒歩10分 京王井の頭線 新代田駅 徒歩11分 |
| 所在地 |
東京都世田谷区大原2丁目
|
| 物件種目 |
賃貸マンション |
| 賃料 |
12.3万円 |
管理費等 |
15,000円 |
| 敷金 / 保証金 |
なし / なし |
礼金 |
1ヶ月 |
| 敷引 |
- |
保証金償却 |
- |
| その他一時金 |
クラブアセットα:20,000円、消毒・害虫駆除サービス:33,000円、光触媒コーティングサービス:22,000円 |
保険等 |
要 2年 18,000円 |
| 維持費等 |
- |
クレジットカード決済 |
初期費用可 |
| 間取り |
1DK(洋室3.4畳/D5畳/K2.5畳) |
専有面積 |
28.88m² |
| 築年月 |
2021年6月(築4年9ヶ月)
|
階建 / 階 |
6階建 / 2階 |
| 建物構造 |
RC |
総戸数 |
- |
| 主要採光面 |
東 |
駐車場 |
- |
| バイク置き場 |
有 |
駐輪場 |
有 |
| 建物名・部屋番号 |
アークマーク代田橋 |
ペット |
相談 |
| アピールポイント |
※1年未満の解約の場合、短期解約違約金月額賃料1ヶ月。※アセット電気利用必須。※退去時、クリーニング費用:60,500円、鍵交換費用:38,500円、エアコンクリーニング費用:13,200円(1台につき)。※法人契約の場合、敷金礼金1ヶ月分追加。
|
| リフォーム履歴 |
- |
| リノベーション履歴 |
- |
| 備考 |
賃貸保証等:加入要(エポス、クレディセゾン、新日本信用保証、ルームバンクインシュア、ジェイリース、家賃総額の30%~)
管理形態/管理員の勤務形態:-/-
IT重説対応物件
当社グループ会社管理物件
分譲賃貸/オートロック/宅配ボックス/浴室乾燥機/独立洗面台/ペット可
|
| エネルギー消費性能 |
- |
| 断熱性能 |
- |
| 目安光熱費 |
- |
| バス・トイレ |
バス・トイレ別、浴室暖房、浴室乾燥機、洗面所独立、洗面台、シャワー、温水洗浄便座、トイレ |
| キッチン |
システムキッチン、2口コンロ、ガスコンロ付 |
| セキュリティー |
モニター付オートロック、オートロック、モニター付インターホン、ディンプルキー、ダブルロックドア、防犯カメラ |
| 収納 |
クローゼット、シューズボックス |
| 設備・サービス |
室内洗濯機置場、給湯、全居室フローリング、フローリング、都市ガス、エアコン、人感センサー付照明、ダウンライト |
| TV・通信 |
インターネット対応、インターネット使用料無料、CS、BS端子、マルチメディアコンセント |
| その他 |
宅配BOX、バイク置き場、バルコニー、駐輪場、エレベーター |
| 契約期間 |
2年 |
現況 |
居住中 |
| 条件等 |
- |
入居可能時期 |
2026年4月上旬予定 |
| 仲介手数料 |
0.55ヶ月 |
|
|
| 更新料 |
新賃料 1ヶ月 |
物件番号 |
1041512062 |
| 情報公開日 |
2026年2月16日 |
次回更新予定日 |
2026年3月2日 |
| ケータイ用バーコード |
- スマートフォンでこの物件を見る
- スマートフォンからもこの物件をご覧になれます。
|
※「-」と表示されている項目については、情報提供会社にご確認ください。
| 周辺施設 |
京王ストア代田橋店 |
| 距離 |
389m |
写真を見る |
| 周辺施設 |
ドン・キホーテ環七方南町店 |
| 距離 |
906m |
写真を見る |
| 周辺施設 |
世田谷大原郵便局 |
| 距離 |
237m |
写真を見る |
| 周辺施設 |
セブンイレブン 世田谷羽根木2丁目店 |
| 距離 |
303m |
写真を見る |
| 周辺施設 |
ファミリーマート 代田橋店 |
| 距離 |
279m |
写真を見る |
ここから簡単にお問い合わせをすることができます。
(SSLでの暗号化での送信を希望されるお客さまは
こちら
よりお問い合わせください)
お問い合わせを行う前に
「個人情報の取り扱いについて」を必ずお読みください。
「個人情報の取り扱いについて」に同意いただいた場合は「上記にご同意の上 確認画面へ進む」のボタンをクリックしてください。
個人情報の取り扱いについて
皆さまが送付された個人情報はアットホーム(株)のサーバを経由し、お問い合わせ先の不動産会社にメールまたはFAXにて転送されるためアットホーム(株)にも保管されます。アットホーム(株)で保管された個人情報の取り扱いについては、【こちら】をご覧ください。
また、本画面でご記入いただいた個人情報は、お問い合わせ先の不動産会社でも保管します。 お問い合わせ先の不動産会社が保管する個人情報の取り扱いについては、不動産会社に直接お問い合わせください。
東京都知事免許(4)第86028号 |
|---|
- 交通:
- 東京メトロ丸ノ内線/西新宿駅 徒歩1分
- 東京都新宿区西新宿8丁目1-2 PMO西新宿2F
- TEL:
- 03-5348-3311
- FAX:
- 03-5348-3322
- 所属団体:
- (公社)全日本不動産協会会員(公社)首都圏不動産公正取引協議会加盟
取引態様:仲介  - 00996300
|
- スマートフォンで
この不動産会社を見る

|
- 提携サイト等より掲載されている物件情報につきましては、不動産会社詳細情報にリンクされていないものがあります。
- 物件に関するお問合せは、物件詳細ページの「情報提供会社」に表示されている不動産会社へ直接お願いいたします。
- 間取図は、現況を優先させていただきます。
- 映像は物件の一部を撮影したものです。物件の契約にあたっての最終判断はご自身の判断に基づいて行ってください。
- 仲介手数料について

アットホームは物件情報の適正化に努めております。
内容に誤りがある場合にはこちらへご連絡ください。