大阪府高槻市奈佐原2丁目(摂津富田駅)の賃貸:物件詳細
交通 所在地 |
駅徒歩 |
賃料 管理費等 |
敷金/保証金 礼金 |
間取り 面積 |
物件種目 築年月 |
|
JR東海道本線/摂津富田 【バス】14分 消防署前 停歩2分
大阪府高槻市奈佐原2丁目
|
-
|
8.45万円
3,250円
|
2ヶ月 / なし
なし
|
2LDK
74.01m²
|
賃貸マンション
1994年12月(築30年11ヶ月)
|
|
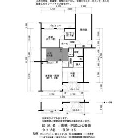
間取図
|
外観
|
その他の画像
|
| 交通 | JR東海道本線 摂津富田駅 【バス】 14分 消防署前 停歩2分 |
|---|
| その他の交通 | JR東海道本線 高槻駅 【バス】 34分 消防署前 停歩2分 阪急京都線 富田駅 【バス】 14分 消防署前 停歩2分 |
| 所在地 |
大阪府高槻市奈佐原2丁目
|
| 物件種目 |
賃貸マンション |
| 賃料 |
8.45万円 |
管理費等 |
3,250円 |
| 敷金 / 保証金 |
2ヶ月 / なし |
礼金 |
なし |
| 敷引 |
- |
保証金償却 |
- |
| その他一時金 |
- |
保険等 |
要 |
| 維持費等 |
- |
| 間取り |
2LDK(洋室7.5 K4 LD11.5) |
専有面積 |
74.01m² |
| 築年月 |
1994年12月(築30年11ヶ月)
|
階建 / 階 |
5階建 / 3階 |
| 建物構造 |
RC |
総戸数 |
- |
| 主要採光面 |
|
駐車場 |
有 8,360円/月 |
| バイク置き場 |
- |
駐輪場 |
- |
| 建物名・部屋番号 |
UR高槻・阿武山七番街 0060302 |
ペット |
-
|
| リフォーム履歴 |
- |
| リノベーション履歴 |
- |
| 備考 |
管理形態/管理員の勤務形態:-/巡回
管理人巡回
|
| エネルギー消費性能 |
- |
| 断熱性能 |
- |
| 目安光熱費 |
- |
| バス・トイレ |
バス・トイレ別、浴室乾燥機、追焚機能、洗面所独立、洗面台 |
| キッチン |
カウンターキッチン、システムキッチン、独立型キッチン、ガスコンロ付 |
| セキュリティー |
モニター付インターホン |
| 収納 |
ウォークインクローゼット、収納スペース |
| 設備・サービス |
室内洗濯機置場、都市ガス、エアコン |
| TV・通信 |
光ファイバー、ケーブルTV、BS端子 |
| その他 |
敷地内公園、二面バルコニー |
| 契約期間 |
1年 |
現況 |
居住中 |
| 条件等 |
- |
入居可能時期 |
2025年11月6日予定 |
| 更新料 |
なし |
物件番号 |
1043954915 |
| 情報公開日 |
2025年10月17日 |
次回更新予定日 |
2025年10月31日 |
| ケータイ用バーコード |
- スマートフォンでこの物件を見る
- スマートフォンからもこの物件をご覧になれます。
|
※「-」と表示されている項目については、情報提供会社にご確認ください。
| 周辺施設 |
高槻市立阿武山小学校 |
| 距離 |
456m |
写真を見る |
| 周辺施設 |
高槻市立阿武山図書館 |
| 距離 |
145m |
写真を見る |
ここから簡単にお問い合わせをすることができます。
(SSLでの暗号化での送信を希望されるお客さまは
こちら
よりお問い合わせください)
お問い合わせを行う前に
「個人情報の取り扱いについて」を必ずお読みください。
「個人情報の取り扱いについて」に同意いただいた場合は「上記にご同意の上 確認画面へ進む」のボタンをクリックしてください。
個人情報の取り扱いについて
皆さまが送付された個人情報はアットホーム(株)のサーバを経由し、お問い合わせ先の不動産会社にメールまたはFAXにて転送されるためアットホーム(株)にも保管されます。アットホーム(株)で保管された個人情報の取り扱いについては、【こちら】をご覧ください。
また、本画面でご記入いただいた個人情報は、お問い合わせ先の不動産会社でも保管します。 お問い合わせ先の不動産会社が保管する個人情報の取り扱いについては、不動産会社に直接お問い合わせください。
|
|---|
- 交通:
- JR東海道本線/高槻駅 徒歩2分
- 大阪府高槻市高槻町9-24 (スクエアビル1F)
- TEL:
- 072-686-5533
- FAX:
- 072-686-6222
取引態様:貸主  - 50026859
|
- スマートフォンで
この不動産会社を見る

|
- 提携サイト等より掲載されている物件情報につきましては、不動産会社詳細情報にリンクされていないものがあります。
- 物件に関するお問合せは、物件詳細ページの「情報提供会社」に表示されている不動産会社へ直接お願いいたします。
- 間取図は、現況を優先させていただきます。
- 映像は物件の一部を撮影したものです。物件の契約にあたっての最終判断はご自身の判断に基づいて行ってください。
- 仲介手数料について

アットホームは物件情報の適正化に努めております。
内容に誤りがある場合にはこちらへご連絡ください。