神奈川県川崎市高津区久本3丁目(溝の口駅)の賃貸:物件詳細
交通 所在地 |
駅徒歩 |
賃料 管理費等 |
敷金/保証金 礼金 |
間取り 面積 |
物件種目 築年月 |
|
東急田園都市線/溝の口
神奈川県川崎市高津区久本3丁目
|
10分
|
9.7万円
8,000円
|
1ヶ月 / なし
1ヶ月
|
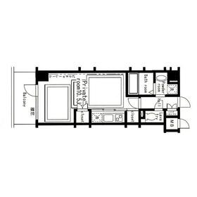
ワンルーム
30.65m²
|
賃貸マンション
2004年4月(築21年9ヶ月)
|
外観タイル張り、IT重説対応物件
|
|
間取図
間取図
|
外観
|
<
その他の画像
>
|
| 交通 | 東急田園都市線 溝の口駅 徒歩10分 |
|---|
| その他の交通 | 東急田園都市線 高津駅 徒歩9分 |
| 所在地 |
神奈川県川崎市高津区久本3丁目
|
| 物件種目 |
賃貸マンション |
| 賃料 |
9.7万円 |
管理費等 |
8,000円 |
| 敷金 / 保証金 |
1ヶ月 / なし |
礼金 |
1ヶ月 |
| 敷引 |
- |
保証金償却 |
解約時1ヶ月 |
| その他一時金 |
鍵交換代:16,500円、除菌消臭代:11,000円、退去時クリーニング代:27,500円 |
保険等 |
要 2年 16,000円 |
| 維持費等 |
- |
| 間取り |
ワンルーム(洋室10.5畳) |
専有面積 |
30.65m² |
| 築年月 |
2004年4月(築21年9ヶ月)
|
階建 / 階 |
5階建 / 4階 |
| 建物構造 |
RC |
総戸数 |
- |
| 主要採光面 |
西 |
駐車場 |
空無 |
| バイク置き場 |
有 |
駐輪場 |
有 |
| 建物名・部屋番号 |
ラメールマエジマ 402 |
ペット |
-
|
| リフォーム履歴 |
- |
| リノベーション履歴 |
- |
| 備考 |
賃貸保証等:利用可(初回保証料:月額賃料等の50% 継続保証料:月額賃料等に1%加算)
管理形態/管理員の勤務形態:-/巡回
非喫煙者限定、IT重説対応物件、管理人巡回
|
| エネルギー消費性能 |
- |
| 断熱性能 |
- |
| 目安光熱費 |
- |
| バス・トイレ |
バス・トイレ別、浴室乾燥機、オートバス、追焚機能、シャワー付洗面化粧台、洗面所独立 |
| キッチン |
システムキッチン、2口コンロ、ガスコンロ付 |
| セキュリティー |
オートロック |
| 収納 |
クローゼット、シューズボックス |
| 設備・サービス |
床暖房、室内洗濯機置場、給湯、フローリング、都市ガス、エアコン |
| TV・通信 |
インターネット対応、光ファイバー、ケーブルTV |
| その他 |
バイク置き場、バルコニー、駐輪場、エレベーター |
| 契約期間 |
2年 |
現況 |
居住中 |
| 条件等 |
- |
入居可能時期 |
2025年12月下旬予定 |
| 仲介手数料 |
1.1ヶ月 |
|
|
| 更新料 |
新賃料 1ヶ月 |
物件番号 |
1046753460 |
| 情報公開日 |
2025年12月4日 |
次回更新予定日 |
2025年12月24日 |
| ケータイ用バーコード |
- スマートフォンでこの物件を見る
- スマートフォンからもこの物件をご覧になれます。
|
※「-」と表示されている項目については、情報提供会社にご確認ください。
| 周辺施設 |
イトーヨーカドー溝ノ口店 |
| 距離 |
458m |
写真を見る |
| 周辺施設 |
マルイファミリー・ノクティ |
| 距離 |
729m |
写真を見る |
| 周辺施設 |
セブン美のガーデン溝ノ口店 |
| 距離 |
458m |
写真を見る |
| 周辺施設 |
KSP内郵便局 |
| 距離 |
491m |
写真を見る |
| 周辺施設 |
JAセレサ川崎高津支店 |
| 距離 |
587m |
写真を見る |
| 周辺施設 |
マクドナルド溝の口店 |
| 距離 |
458m |
写真を見る |
ここから簡単にお問い合わせをすることができます。
(SSLでの暗号化での送信を希望されるお客さまは
こちら
よりお問い合わせください)
お問い合わせを行う前に
「個人情報の取り扱いについて」を必ずお読みください。
「個人情報の取り扱いについて」に同意いただいた場合は「上記にご同意の上 確認画面へ進む」のボタンをクリックしてください。
個人情報の取り扱いについて
皆さまが送付された個人情報はアットホーム(株)のサーバを経由し、お問い合わせ先の不動産会社にメールまたはFAXにて転送されるためアットホーム(株)にも保管されます。アットホーム(株)で保管された個人情報の取り扱いについては、【こちら】をご覧ください。
また、本画面でご記入いただいた個人情報は、お問い合わせ先の不動産会社でも保管します。 お問い合わせ先の不動産会社が保管する個人情報の取り扱いについては、不動産会社に直接お問い合わせください。
国土交通大臣免許(10)第3369号 |
|---|
- 交通:
- 東急田園都市線/高津駅 徒歩4分
- 神奈川県川崎市高津区二子5丁目18-1
- TEL:
- 044-833-7500
- FAX:
- 044-833-7501
- 所属団体:
- (公社)神奈川県宅地建物取引業協会会員不動産公正取引協議会加盟
取引態様:仲介  - 00780593
|
- スマートフォンで
この不動産会社を見る

|
- 提携サイト等より掲載されている物件情報につきましては、不動産会社詳細情報にリンクされていないものがあります。
- 物件に関するお問合せは、物件詳細ページの「情報提供会社」に表示されている不動産会社へ直接お願いいたします。
- 間取図は、現況を優先させていただきます。
- 映像は物件の一部を撮影したものです。物件の契約にあたっての最終判断はご自身の判断に基づいて行ってください。
- 仲介手数料について

アットホームは物件情報の適正化に努めております。
内容に誤りがある場合にはこちらへご連絡ください。