東京都千代田区岩本町2丁目(神田駅)の賃貸:物件詳細
交通 所在地 |
駅徒歩 |
賃料 管理費等 |
敷金/保証金 礼金 |
間取り 面積 |
物件種目 築年月 |
JR山手線/神田
東京都千代田区岩本町2丁目
|
5分
|
8.25万円
15,000円
|
なし / なし
なし
|
ワンルーム
22.49m²
|
賃貸マンション
2003年3月(築22年8ヶ月)
|
デザイナーズ、分譲タイプ、常時ゴミ出し可能、角部屋、2面採光、外観タイル張り、IT重説対応物件、保証人不要
|
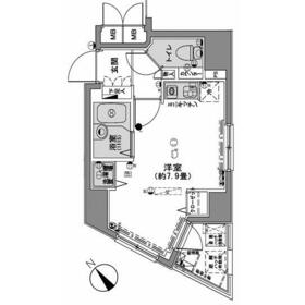
間取図
間取図
|
外観
|
<
その他の画像
>
|
交通 | JR山手線 神田駅 徒歩5分 |
---|
その他の交通 | 都営新宿線 岩本町駅 徒歩3分 東京メトロ日比谷線 小伝馬町駅 徒歩8分 |
所在地 |
東京都千代田区岩本町2丁目
|
物件種目 |
賃貸マンション |
賃料 |
8.25万円 |
管理費等 |
15,000円 |
敷金 / 保証金 |
なし / なし |
礼金 |
なし |
敷引 |
- |
保証金償却 |
- |
その他一時金 |
クラブアセットα:20,000円、光触媒コーティングサービス:22,000円、消毒・害虫駆除サービス:33,000円 |
保険等 |
要 2年 18,000円 |
維持費等 |
- |
クレジットカード決済 |
初期費用可 賃料可 |
間取り |
ワンルーム(洋室7.9畳) |
専有面積 |
22.49m² |
築年月 |
2003年3月(築22年8ヶ月)
|
階建 / 階 |
12階建 / 6階 |
建物構造 |
SRC |
総戸数 |
- |
主要採光面 |
|
駐車場 |
- |
バイク置き場 |
- |
駐輪場 |
有 |
建物名・部屋番号 |
アクティア神田岩本町 |
ペット |
-
|
アピールポイント |
※1年未満の解約の場合、短期解約違約金月額賃料1ヶ月。※アセット電気利用必須。※退去時、クリーニング費用:49,500円、鍵交換費用:38,500円、エアコンクリーニング費用:13,200円(1台につき)。※法人契約の場合、敷金礼金1ヶ月分追加。
|
リフォーム履歴 |
- |
リノベーション履歴 |
- |
備考 |
賃貸保証等:加入要(エポス、クレディセゾン、新日本信用保証、ルームバンクインシュア、ジェイリース、家賃総額の30%~)
管理形態/管理員の勤務形態:-/-
IT重説対応物件
当社グループ会社管理物件
分譲賃貸/オートロック/宅配ボックス/バストイレ別
|
エネルギー消費性能 |
- |
断熱性能 |
- |
目安光熱費 |
- |
バス・トイレ |
バス・トイレ別、シャワー、トイレ |
キッチン |
IHクッキングヒーター、ガスコンロ付 |
セキュリティー |
オートロック、ダブルロックドア |
収納 |
クローゼット、シューズボックス |
設備・サービス |
室内洗濯機置場、給湯、フローリング、都市ガス、エアコン |
TV・通信 |
インターネット対応、光ファイバー、ケーブルTV |
その他 |
宅配BOX、バルコニー、駐輪場、エレベーター |
契約期間 |
2年 |
現況 |
居住中 |
条件等 |
- |
入居可能時期 |
2025年12月中旬予定 |
仲介手数料 |
0.55ヶ月 |
|
|
更新料 |
新賃料 1ヶ月 |
物件番号 |
1047199662 |
情報公開日 |
2025年10月7日 |
次回更新予定日 |
2025年10月21日 |
ケータイ用バーコード |
- スマートフォンでこの物件を見る
- スマートフォンからもこの物件をご覧になれます。
|
※「-」と表示されている項目については、情報提供会社にご確認ください。
周辺施設 |
まいばすけっと岩本町2丁目店 |
距離 |
277m |
写真を見る |
周辺施設 |
ミニストップ岩本町2丁目店 |
距離 |
148m |
写真を見る |
周辺施設 |
業務スーパー神田店 |
距離 |
790m |
写真を見る |
周辺施設 |
マルマンストア日本橋馬喰町店 |
距離 |
785m |
写真を見る |
周辺施設 |
セブンイレブン日本橋小伝馬町店 |
距離 |
593m |
写真を見る |
周辺施設 |
ローソン岩本町三丁目店 |
距離 |
545m |
写真を見る |
ここから簡単にお問い合わせをすることができます。
(SSLでの暗号化での送信を希望されるお客さまは
こちら
よりお問い合わせください)
お問い合わせを行う前に
「個人情報の取り扱いについて」を必ずお読みください。
「個人情報の取り扱いについて」に同意いただいた場合は「上記にご同意の上 確認画面へ進む」のボタンをクリックしてください。
個人情報の取り扱いについて
皆さまが送付された個人情報はアットホーム(株)のサーバを経由し、お問い合わせ先の不動産会社にメールまたはFAXにて転送されるためアットホーム(株)にも保管されます。アットホーム(株)で保管された個人情報の取り扱いについては、【こちら】をご覧ください。
また、本画面でご記入いただいた個人情報は、お問い合わせ先の不動産会社でも保管します。 お問い合わせ先の不動産会社が保管する個人情報の取り扱いについては、不動産会社に直接お問い合わせください。
東京都知事免許(4)第86028号 |
---|
- 交通:
- 東京メトロ丸ノ内線/西新宿駅 徒歩1分
- 東京都新宿区西新宿8丁目1-2 PMO西新宿2F
- TEL:
- 03-5348-3311
- FAX:
- 03-5348-3322
- 所属団体:
- (公社)全日本不動産協会会員(公社)首都圏不動産公正取引協議会加盟
取引態様:仲介  - 00996300
|
- スマートフォンで
この不動産会社を見る

|
- 提携サイト等より掲載されている物件情報につきましては、不動産会社詳細情報にリンクされていないものがあります。
- 物件に関するお問合せは、物件詳細ページの「情報提供会社」に表示されている不動産会社へ直接お願いいたします。
- 間取図は、現況を優先させていただきます。
- 映像は物件の一部を撮影したものです。物件の契約にあたっての最終判断はご自身の判断に基づいて行ってください。
- 仲介手数料について

アットホームは物件情報の適正化に努めております。
内容に誤りがある場合にはこちらへご連絡ください。