東京都文京区小石川3丁目(後楽園駅)の賃貸:物件詳細
交通 所在地 |
駅徒歩 |
賃料 管理費等 |
敷金/保証金 礼金 |
間取り 面積 |
物件種目 築年月 |
|
東京メトロ丸ノ内線/後楽園
東京都文京区小石川3丁目
|
10分
|
23.5万円
15,000円
|
なし / なし
2ヶ月
|
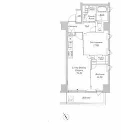
1SLDK
46.49m²
|
賃貸マンション
2016年6月(築9年9ヶ月)
|
ペット相談、分譲タイプ、角部屋、高齢者相談、二人入居可、2面採光、24時間換気システム、IT重説対応物件、保証人不要
|
|
間取図
|
外観
|
<
その他の画像
>
|
| 交通 | 東京メトロ丸ノ内線 後楽園駅 徒歩10分 |
|---|
| その他の交通 | 都営大江戸線 春日駅 徒歩10分 都営三田線 白山駅 徒歩15分 |
| 所在地 |
東京都文京区小石川3丁目
|
| 物件種目 |
賃貸マンション |
| 賃料 |
23.5万円 |
管理費等 |
15,000円 |
| 敷金 / 保証金 |
なし / なし |
礼金 |
2ヶ月 |
| 敷引 |
- |
保証金償却 |
- |
| その他一時金 |
鍵交換費用(必須):33,000円、室内抗菌代(必須):16,500円 |
保険等 |
不要 |
| 維持費等 |
ベルプラス(必須):2,200円/月 |
| 間取り |
1SLDK(洋室4.1畳/LDK10.2畳/S5畳) |
専有面積 |
46.49m² |
| 築年月 |
2016年6月(築9年9ヶ月)
|
階建 / 階 |
7階建 / 4階 |
| 建物構造 |
RC |
総戸数 |
- |
| 主要採光面 |
南西 |
駐車場 |
無 |
| バイク置き場 |
有 |
駐輪場 |
有 |
| 建物名・部屋番号 |
カーサスプレンディッド小石川 403 |
ペット |
相談 |
| アピールポイント |
当社管理物件です。先行申込で仲介手数料0円キャンペーン中。
当社は総合不動産会社で、他社様が掲載されている物件も一括してご案内可能となりますのでお気軽にご相談ください。 |
| リフォーム履歴 |
- |
| リノベーション履歴 |
- |
| 備考 |
賃貸保証等:加入要(初回契約時:50%、[リロ:月1,000円][JRAG:1万円/年(月330円)] [カーサ:月1%][ジャックス:月額保証料1%]※外国籍の方は敷金1ヶ月追加となります。)
管理形態/管理員の勤務形態:-/-
IT重説対応物件
図面取得・内見・申込はいい生活スクエアで
短期解約違約金:1年未満は総賃料2ヶ月分、1年以上1.5年未満は総賃料1.5ヶ月分。
|
| エネルギー消費性能 |
- |
| 断熱性能 |
- |
| 目安光熱費 |
- |
| バス・トイレ |
バス・トイレ別、浴室暖房、浴室乾燥機、追焚機能、洗面所独立、洗面台、シャワー、温水洗浄便座 |
| キッチン |
システムキッチン、3口以上コンロ、2口コンロ、ガスコンロ付、グリル |
| セキュリティー |
モニター付オートロック、オートロック、モニター付インターホン |
| 収納 |
ウォークインクローゼット、クローゼット、シューズボックス |
| 設備・サービス |
室内洗濯機置場、洗濯機置場、給湯、全居室フローリング、フローリング、都市ガス、エアコン |
| TV・通信 |
インターネット対応、光ファイバー、CS、BS端子 |
| その他 |
宅配BOX、バイク置き場、バルコニー、駐輪場、エレベーター |
| 契約期間 |
2年 |
現況 |
居住中 |
| 条件等 |
- |
入居可能時期 |
2026年4月上旬予定 |
| 仲介手数料 |
不要 |
|
|
| 更新料 |
新賃料 1.5ヶ月 |
物件番号 |
1048441796 |
| 情報公開日 |
2026年1月25日 |
次回更新予定日 |
2026年2月8日 |
| ケータイ用バーコード |
- スマートフォンでこの物件を見る
- スマートフォンからもこの物件をご覧になれます。
|
※「-」と表示されている項目については、情報提供会社にご確認ください。
| 周辺施設 |
セブンイレブン 文京小石川4丁目店 |
| 距離 |
392m |
写真を見る |
ここから簡単にお問い合わせをすることができます。
(SSLでの暗号化での送信を希望されるお客さまは
こちら
よりお問い合わせください)
お問い合わせを行う前に
「個人情報の取り扱いについて」を必ずお読みください。
「個人情報の取り扱いについて」に同意いただいた場合は「上記にご同意の上 確認画面へ進む」のボタンをクリックしてください。
個人情報の取り扱いについて
皆さまが送付された個人情報はアットホーム(株)のサーバを経由し、お問い合わせ先の不動産会社にメールまたはFAXにて転送されるためアットホーム(株)にも保管されます。アットホーム(株)で保管された個人情報の取り扱いについては、【こちら】をご覧ください。
また、本画面でご記入いただいた個人情報は、お問い合わせ先の不動産会社でも保管します。 お問い合わせ先の不動産会社が保管する個人情報の取り扱いについては、不動産会社に直接お問い合わせください。
国土交通大臣免許(1)第9910号 |
|---|
- 交通:
- 東京メトロ丸ノ内線/西新宿駅 徒歩2分
- 東京都新宿区西新宿6丁目8-1 住友不動産新宿オークタワー9階
- TEL:
- 03-6302-0637
- FAX:
- 03-6302-0638
- 所属団体:
- (公社)東京都宅地建物取引業協会会員(公社)首都圏不動産公正取引協議会加盟
取引態様:貸主  - 00269132
|
- スマートフォンで
この不動産会社を見る

|
- 提携サイト等より掲載されている物件情報につきましては、不動産会社詳細情報にリンクされていないものがあります。
- 物件に関するお問合せは、物件詳細ページの「情報提供会社」に表示されている不動産会社へ直接お願いいたします。
- 間取図は、現況を優先させていただきます。
- 映像は物件の一部を撮影したものです。物件の契約にあたっての最終判断はご自身の判断に基づいて行ってください。
- 仲介手数料について

アットホームは物件情報の適正化に努めております。
内容に誤りがある場合にはこちらへご連絡ください。