不動産 賃貸 マンション等の住宅情報:埼玉住まい情報


東京都八王子市南新町(八王子駅)の賃貸:物件詳細

  • 物件詳細
  • 情報の見方
  • 印刷用画面
交通
所在地
駅徒歩 賃料
管理費等
敷金/保証金
礼金
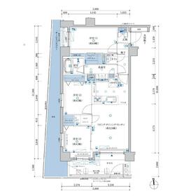
間取り
面積
物件種目
築年月

JR中央線/八王子

東京都八王子市南新町

12分

21万円

なし

なし / なし

なし

3LDK

62.71m²

賃貸マンション

2025年2月
新築 

おすすめPOINTペット相談、角部屋、2面採光、保証人不要

おすすめコメント  スタッフ: 石丸 周作

当店が自信を持ってオススメするお部屋です。チャットやLINE、メールでのご相談も可能。来店不要のオンラインによるご内見、重要事項説明も便利です。

間取図

間取図

外観

外観

<
その他の画像
  • リビング
  • キッチン
  • バス/シャワー
  • トイレ
  • その他
  • 洗面
  • 収納
  • バルコニー
  • 玄関
  • その他
  • 設備
  • 眺望
  • 室内
  • その他
  • 病院
  • 販売店
  • ショッピング施設
>
    • とりあえず保存
    • お問い合わせ
    交通

    JR中央線 八王子駅 徒歩12分

    その他の交通

    京王線 京王八王子駅 徒歩15分

    JR中央線 西八王子駅 徒歩23分

    所在地 東京都八王子市南新町
    物件種目 賃貸マンション
    賃料 21万円 管理費等 なし
    敷金 / 保証金 なし / なし 礼金 なし
    敷引 保証金償却
    その他一時金 保険等 要 2年 25,000円
    維持費等 入居サポート:1,100円/月、月額口座振替手数料:550円/月、バイク駐輪代:3,300円/月、駐輪場代:550円/月
    間取り 3LDK 専有面積 62.71m²
    築年月 2025年2月 新築  階建 / 階 7階建 / 1階
    建物構造 RC 総戸数 33戸
    主要採光面 西 駐車場
    バイク置き場 駐輪場
    建物名・部屋番号 VITA八王子 102 ペット 相談
    アピールポイント 当店が自信を持ってオススメするお部屋です。チャットやLINE、メールでのご相談も可能。来店不要のオンラインによるご内見、重要事項説明も便利です。
    リフォーム履歴
    リノベーション履歴
    備考
    賃貸保証等:加入要(ナップ賃貸保証 毎月賃料等請求金額の合計50%)
    管理形態/管理員の勤務形態:-/-
    エネルギー消費性能
    断熱性能
    目安光熱費
    バス・トイレ バス・トイレ別、浴室乾燥機、追焚機能、シャワー付洗面化粧台、洗面所独立、シャワー、トイレ
    キッチン カウンターキッチン、システムキッチン、3口以上コンロ、ガスコンロ付
    セキュリティー オートロック、モニター付インターホン、防犯カメラ
    収納 全居室収納、ウォークインクローゼット、シューズインクローゼット、クローゼット、シューズボックス
    設備・サービス 室内洗濯機置場、都市ガス給湯、給湯、都市ガス、エアコン
    TV・通信 インターネット使用料無料
    その他 宅配BOX、ルーフバルコニー、バルコニー、エレベーター
    契約期間 2年 現況 空家
    条件等 入居可能時期 即時
    更新料 新賃料 1ヶ月 物件番号 1054104274
    情報公開日 2025年5月23日 次回更新予定日 2025年10月29日
    ケータイ用バーコード

    QRコード

    スマートフォンでこの物件を見る
    スマートフォンからもこの物件をご覧になれます。
    ※「-」と表示されている項目については、情報提供会社にご確認ください。

    この物件の周辺情報

    周辺施設 八王子市立第三小学校
    距離 609m
    周辺施設 八王子市立第六中学校
    距離 812m
    周辺施設 八王子幼稚園
    距離 147m
    周辺施設 八王子寺町郵便局
    距離 331m
    周辺施設 仁和会総合病院
    距離 1138m
    周辺施設 エコス大横店
    距離 563m
    周辺施設 ローソン八王子南新町店
    距離 202m
    周辺施設 京王百貨店セレオ八王子店
    距離 976m

    クイックお問い合わせ

    ここから簡単にお問い合わせをすることができます。
    (SSLでの暗号化での送信を希望されるお客さまは こちら よりお問い合わせください)

    お問い合わせ内容(必須)
    お名前(必須) 姓  名 
    メールアドレス(必須)
    ※携帯電話のメールアドレスをご入力される方はこちらをご確認ください
    電話番号(必須)
    - -

    ※入力いただいた電話番号へSMSまたは音声でパスワードをご連絡します。

    携帯電話の番号をご入力の方へ

    携帯電話の番号をご入力の方へ
    確認画面にて送信ボタンをクリックするとSMSが携帯電話に届きます。
    そのSMSに記載のパスワード(認証番号)を入力し、お問い合わせを完了してください。
    尚、SMSの送信者番号は 0005 202 760 となります。
    これはアットホームの固定番号です。

    備考欄 希望条件、物件案内希望日、質問などがございましたらご記入ください。
    お問い合わせを行う前に「個人情報の取り扱いについて」を必ずお読みください。
    「個人情報の取り扱いについて」に同意いただいた場合は「上記にご同意の上 確認画面へ進む」のボタンをクリックしてください。

    個人情報の取り扱いについて

    皆さまが送付された個人情報はアットホーム(株)のサーバを経由し、お問い合わせ先の不動産会社にメールまたはFAXにて転送されるためアットホーム(株)にも保管されます。アットホーム(株)で保管された個人情報の取り扱いについては、【こちら】をご覧ください。
    また、本画面でご記入いただいた個人情報は、お問い合わせ先の不動産会社でも保管します。 お問い合わせ先の不動産会社が保管する個人情報の取り扱いについては、不動産会社に直接お問い合わせください。

    情報提供会社

    情報提供会社

    (株)ミニミニ城西 京王八王子店

    国土交通大臣免許(6)第5570号

    交通:
    京王線/京王八王子駅 徒歩1分
    東京都八王子市明神町4丁目6-3 みつげんビル2F
    TEL:
    042-645-8032
    FAX:
    042-645-2367

    取引態様:仲介

    • 会社情報
    • 00784101
    スマートフォンで
    この不動産会社を見る
    QRコード
    • とりあえず保存
    • お問い合わせ
    • 提携サイト等より掲載されている物件情報につきましては、不動産会社詳細情報にリンクされていないものがあります。
    • 物件に関するお問合せは、物件詳細ページの「情報提供会社」に表示されている不動産会社へ直接お願いいたします。
    • 間取図は、現況を優先させていただきます。
    • 映像は物件の一部を撮影したものです。物件の契約にあたっての最終判断はご自身の判断に基づいて行ってください。
    • 仲介手数料について仲介手数料

    アットホームは物件情報の適正化に努めております。 内容に誤りがある場合にはこちらへご連絡ください。

    【埼玉住まい情報】では、日本全国の物件から賃貸マンションや賃貸アパート・賃貸一戸建て等の賃貸住宅情報、新築マンション・分譲マンションや中古マンション等の売買マンション情報、新築一戸建てや中古一戸建てなどの戸建住宅、 土地など、総合的な不動産住宅情報検索サービスを提供致します。
    【埼玉住まい情報】から、選りすぐりの不動産物件を探してみましょう。

    【免責事項】
    このコーナーの運営はアットホーム株式会社(https://www.athome.co.jp/)が行っています。
    このコーナーに掲載している物件情報は、「アットホーム不動産情報ネットワーク」に加盟する不動産会社等(情報提供元)から提供されています。信頼性の高い情報提供が行えるよう、最大限の努力をしておりますが、その内容を保証するものではありません。 利用者のみなさまと各情報提供元との取引に起因する損害および情報が掲載されたことに起因する損害等については、株式会社イーシティ埼玉、およびアットホームは一切責任を負いません。
    各物件情報の内容や画像等はすべて現況を優先させていただきます。
    お取引等(お取引の準備、資金調達等を含みます)の際には、内容や契約条件等について、各情報提供元より十分な説明を受け、ご自身でご確認の上、判断してください。
    このコーナーへの物件情報のご掲載、その他不動産業務ソリューション等についての不動産会社様のお問合せはこちらからお願いいたします。

    物件画像: