茨城県つくばみらい市筒戸(小絹駅)の賃貸:物件詳細
				
					
					
				
														
	
		
			
				交通 所在地 | 
				駅徒歩 | 
				賃料 管理費等 | 
				敷金/保証金 礼金 | 
				間取り 面積 | 
				物件種目 築年月 | 
			
		
		
			
								| 
					 関東鉄道常総線/小絹
											 
					茨城県つくばみらい市筒戸 
				 | 
								
					 9分 
				 | 
								
					 4.9万円 
					3,000円 
				 | 
								
					 なし / なし 
					なし 
				 | 
								
					 1K 
					28.08m² 
				 | 
								
					 賃貸アパート 
					1991年2月(築34年10ヶ月)
																				 
				 | 
			
						
				 保証人不要
  | 
			
					
	
		
		
		
					| 
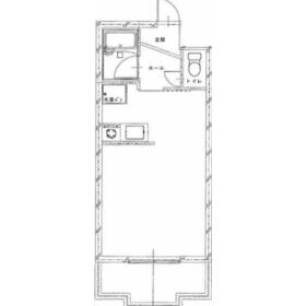
			 間取図 
			
			
			
			
			
		 | 
		
			 外観 
			
			
			
			
			
		 | 
				
		
		
			
				
										<
										
						
							 
							その他の画像
						 
					 
					
										>
									 
				
			 
		 | 
	
				
 
	
		
			
																			          | 交通 | 関東鉄道常総線 小絹駅 徒歩9分  | 
|---|
| その他の交通 | つくばエクスプレス 守谷駅 徒歩44分 関東鉄道常総線 新守谷駅 徒歩19分  | 
			
				| 所在地 | 
				
					茨城県つくばみらい市筒戸
				 | 
			
			
				| 物件種目 | 
				賃貸アパート | 
			
		
		
			
				| 賃料 | 
				4.9万円 | 
				管理費等 | 
				3,000円 | 
			
			
				| 敷金 / 保証金 | 
				なし / なし | 
				礼金 | 
				なし | 
			
			
				| 敷引 | 
				- | 
				保証金償却 | 
				- | 
			
			
				| その他一時金 | 
				なし、鍵交換代等:19,800円~ | 
				保険等 | 
				要 | 
			
						
				| 維持費等 | 
				- | 
			
					
		
			
				| 間取り | 
				1K(洋12) | 
				専有面積 | 
				28.08m² | 
			
			
				| 築年月 | 
				1991年2月(築34年10ヶ月)
												 | 
				階建 / 階 | 
				3階建 / 1階 | 
			
			
				| 建物構造 | 
				RC | 
				総戸数 | 
				- | 
			
			
				| 主要採光面 | 
				 | 
				駐車場 | 
				有 3,000円/月 | 
			
			
				| バイク置き場 | 
				- | 
				駐輪場 | 
				- | 
			
			
				| 建物名・部屋番号 | 
				アイビス小絹A 104 | 
				ペット | 
				
								-
								 | 
			
			
	| アピールポイント | 
	★秋のお部屋探しキャンペーン実施中★ 
①カタログギフト⇒選べるカタログギフト 
②体重計⇒TANITA体組成計体重計 
③羽毛入り枕⇒プレミアムホテルスタイル枕 
※対象物件を成約した方にもれなく上記商品の中から1つプレゼント! 
実施内容はお問合せ下さい!! 
┏┳━━━━━┳┓        
┃┃━ ▼ ━┃┃   
┃┃ ┗┻┛ ┃┃   
┗┫┏┓ ┏┓┣┛   
⌒⌒⌒⌒⌒⌒⌒⌒⌒⌒ | 
			
				| リフォーム履歴 | 
				- | 
			
			
				| リノベーション履歴 | 
				- | 
			
			
				| 備考 | 
				
					 
																	賃貸保証等:加入要(オリコフォレントインシュア 初回:賃料総月額の50%、月額:賃料総月額の1%)
											 						管理形態/管理員の勤務形態:-/-
											 						オンライン内見実施中!
										 
					
				 | 
			
		
				
		
		| エネルギー消費性能 | 
		- | 
	
	
		| 断熱性能 | 
		- | 
	
	
		| 目安光熱費 | 
		- | 
	
	
		
									
				| バス・トイレ | 
				バス・トイレ別、浴室乾燥機、シャワー、トイレ | 
			
						
				| キッチン | 
				カウンターキッチン、IHクッキングヒーター | 
			
						
				| セキュリティー | 
				モニター付インターホン | 
			
						
				| 収納 | 
				全居室収納、収納スペース、シューズボックス | 
			
						
				| 設備・サービス | 
				室内洗濯機置場、洗濯機置場、プロパンガス給湯、給湯、全居室フローリング、フローリング、プロパンガス、エアコン、照明器具 | 
			
						
				| TV・通信 | 
				インターネット対応、光ファイバー | 
			
						
				| その他 | 
				宅配BOX、バルコニー | 
			
					
		
			
				| 契約期間 | 
				2年 | 
				現況 | 
				空家 | 
			
			
				| 条件等 | 
				- | 
				入居可能時期 | 
				即時 | 
			
						
				| 更新料 | 
				新賃料 1ヶ月 | 
				物件番号 | 
				1055142594 | 
			
			
				| 情報公開日 | 
				2024年10月5日 | 
				次回更新予定日 | 
				2025年11月9日 | 
			
						
				| ケータイ用バーコード | 
				
				
					
					
						
							- スマートフォンでこの物件を見る
 
							- スマートフォンからもこの物件をご覧になれます。
 
						 
					 
				 
				 | 
			
					
	 
	 									※「-」と表示されている項目については、情報提供会社にご確認ください。
						
	
			
			
			
				
					
						
							| 周辺施設 | 
							つくばみらい市立 小絹小学校 | 
						
						
							| 距離 | 
							772m | 
							写真を見る | 						
					
				
			 
		 
					
		 
				
			
			
				
					
						
							| 周辺施設 | 
							守谷ひばり幼稚園 | 
						
						
							| 距離 | 
							4057m | 
							写真を見る | 						
					
				
			 
		 
					
			
				
					
						
							| 周辺施設 | 
							守谷幼稚園 | 
						
						
							| 距離 | 
							2534m | 
							写真を見る | 						
					
				
			 
		 
		 
				
			
			
				
					
						
							| 周辺施設 | 
							総合守谷第一病院 | 
						
						
							| 距離 | 
							2675m | 
							写真を見る | 						
					
				
			 
		 
					
			
				
					
						
							| 周辺施設 | 
							久保ヶ丘郵便局 | 
						
						
							| 距離 | 
							1742m | 
							写真を見る | 						
					
				
			 
		 
		 
				
			
			
				
					
						
							| 周辺施設 | 
							つくばみらい市役所 | 
						
						
							| 距離 | 
							3374m | 
							写真を見る | 						
					
				
			 
		 
					
			
				
					
						
							| 周辺施設 | 
							守谷市立 御所ケ丘小学校 | 
						
						
							| 距離 | 
							2705m | 
							写真を見る | 						
					
				
			 
		 
		 
		 									
												
					
					  ここから簡単にお問い合わせをすることができます。
(SSLでの暗号化での送信を希望されるお客さまは
													こちら
											  よりお問い合わせください)
					  
					
						
						
					
					お問い合わせを行う前に
「個人情報の取り扱いについて」を必ずお読みください。
「個人情報の取り扱いについて」に同意いただいた場合は「上記にご同意の上 確認画面へ進む」のボタンをクリックしてください。 
 
					
					
						個人情報の取り扱いについて
						皆さまが送付された個人情報はアットホーム(株)のサーバを経由し、お問い合わせ先の不動産会社にメールまたはFAXにて転送されるためアットホーム(株)にも保管されます。アットホーム(株)で保管された個人情報の取り扱いについては、【こちら】をご覧ください。
						また、本画面でご記入いただいた個人情報は、お問い合わせ先の不動産会社でも保管します。 お問い合わせ先の不動産会社が保管する個人情報の取り扱いについては、不動産会社に直接お問い合わせください。
					 
				 
				
														
				  
				  
					国土交通大臣免許(5)第5966号  | 
|---|
- 交通:
 - つくばエクスプレス/守谷駅
 - 茨城県守谷市大柏1005-71 
 - TEL:
 - 0297-47-1281
 - FAX:
 - 0297-47-1282
 - 所属団体:
 - (公社)全日本不動産協会会員(公社)首都圏不動産公正取引協議会加盟
 
 取引態様:仲介  - 00104300
 
  | 
						  						  
							
							  
								- スマートフォンで
 この不動産会社を見る 
								    
							   
							 
						   | 
						  						
					  
					 
				   
				 
							
						
												
			
					
- 提携サイト等より掲載されている物件情報につきましては、不動産会社詳細情報にリンクされていないものがあります。
 
- 物件に関するお問合せは、物件詳細ページの「情報提供会社」に表示されている不動産会社へ直接お願いいたします。
 
- 間取図は、現況を優先させていただきます。
 
- 映像は物件の一部を撮影したものです。物件の契約にあたっての最終判断はご自身の判断に基づいて行ってください。
 
- 仲介手数料について

 
アットホームは物件情報の適正化に努めております。
内容に誤りがある場合にはこちらへご連絡ください。