東京都調布市国領町1丁目(布田駅)の賃貸:物件詳細
交通 所在地 |
駅徒歩 |
賃料 管理費等 |
敷金/保証金 礼金 |
間取り 面積 |
物件種目 築年月 |
|
京王線/布田
東京都調布市国領町1丁目
|
5分
|
8.45万円
10,000円
|
なし / なし
1ヶ月
|
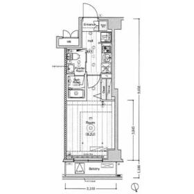
1K
25.99m²
|
賃貸マンション
2022年3月(築3年9ヶ月)
|
ペット相談、分譲タイプ、常時ゴミ出し可能、24時間セキュリティー、外観タイル張り、IT重説対応物件、保証人不要
|
|
間取図
★間取り図★
|
外観
★外観★
|
<
その他の画像
>
|
| 交通 | 京王線 布田駅 徒歩5分 |
|---|
| その他の交通 | 京王線 国領駅 徒歩5分 京王相模原線 調布駅 徒歩13分 |
| 所在地 |
東京都調布市国領町1丁目
|
| 物件種目 |
賃貸マンション |
| 賃料 |
8.45万円 |
管理費等 |
10,000円 |
| 敷金 / 保証金 |
なし / なし |
礼金 |
1ヶ月 |
| 敷引 |
- |
保証金償却 |
- |
| その他一時金 |
なし、鍵交換代等:22,000円~ |
保険等 |
要 2年 15,000円 |
| 維持費等 |
- |
| 間取り |
1K(洋室8.2帖) |
専有面積 |
25.99m² |
| 築年月 |
2022年3月(築3年9ヶ月)
|
階建 / 階 |
7階建 / 4階 |
| 建物構造 |
RC |
総戸数 |
- |
| 主要採光面 |
北 |
駐車場 |
近有 20,000円/月 |
| バイク置き場 |
無 |
駐輪場 |
有 無料 |
| 建物名・部屋番号 |
MAXIV調布国領 404 |
ペット |
相談 |
| アピールポイント |
他社様で掲載中のお部屋もまとめてご紹介可能です。 |
| リフォーム履歴 |
- |
| リノベーション履歴 |
- |
| 備考 |
賃貸保証等:加入要(賃貸保証料:0.40ヶ月 初回:総賃料の40%)
管理形態/管理員の勤務形態:-/巡回
IT重説対応物件、管理人巡回
インターネット上の物件はほぼ全てご紹介可能♪まとめてご紹介致します♪お気軽にお問合せください!お部屋探しはタウンハウジングまで☆新着情報毎日更新☆経験豊富なスタッフがお待ちしております♪
|
| エネルギー消費性能 |
- |
| 断熱性能 |
- |
| 目安光熱費 |
- |
| バス・トイレ |
バス・トイレ別、浴室暖房、浴室乾燥機、シャワー付洗面化粧台、洗面所独立、洗面所、洗面台、シャワー、温水洗浄便座、トイレ |
| キッチン |
システムキッチン、2口コンロ、ガスコンロ付 |
| セキュリティー |
モニター付オートロック、オートロック、モニター付インターホン、ディンプルキー、ダブルロックドア、防犯カメラ |
| 収納 |
収納スペース、クローゼット、シューズボックス |
| 設備・サービス |
室内洗濯機置場、都市ガス給湯、給湯、フローリング、都市ガス、エアコン、照明器具 |
| TV・通信 |
インターネット対応、インターネット使用料無料、光ファイバー、CS、BS端子 |
| その他 |
宅配BOX、バルコニー、駐輪場、エレベーター |
| 契約期間 |
2年 |
現況 |
空家 |
| 条件等 |
- |
入居可能時期 |
2025年11月中旬予定 |
| 更新料 |
新賃料 1ヶ月 |
物件番号 |
1055393370 |
| 情報公開日 |
2025年10月30日 |
次回更新予定日 |
2025年11月13日 |
| ケータイ用バーコード |
- スマートフォンでこの物件を見る
- スマートフォンからもこの物件をご覧になれます。
|
※「-」と表示されている項目については、情報提供会社にご確認ください。
| 周辺施設 |
24H西友・マルエツ |
| 距離 |
340m |
写真を見る |
| 周辺施設 |
ミニストップ調布駅前店 |
| 距離 |
920m |
写真を見る |
| 周辺施設 |
イトーヨーカドー国領店 |
| 距離 |
1190m |
写真を見る |
| 周辺施設 |
ファミリーマート |
| 距離 |
460m |
写真を見る |
| 周辺施設 |
スギ薬局調布布田店 |
| 距離 |
740m |
写真を見る |
| 周辺施設 |
ローソン調布布田店 |
| 距離 |
950m |
写真を見る |
| 周辺施設 |
ミネドラッグ布田駅前店 |
| 距離 |
350m |
写真を見る |
| 周辺施設 |
セブンイレブン調布染地2丁目店 |
| 距離 |
820m |
写真を見る |
ここから簡単にお問い合わせをすることができます。
(SSLでの暗号化での送信を希望されるお客さまは
こちら
よりお問い合わせください)
お問い合わせを行う前に
「個人情報の取り扱いについて」を必ずお読みください。
「個人情報の取り扱いについて」に同意いただいた場合は「上記にご同意の上 確認画面へ進む」のボタンをクリックしてください。
個人情報の取り扱いについて
皆さまが送付された個人情報はアットホーム(株)のサーバを経由し、お問い合わせ先の不動産会社にメールまたはFAXにて転送されるためアットホーム(株)にも保管されます。アットホーム(株)で保管された個人情報の取り扱いについては、【こちら】をご覧ください。
また、本画面でご記入いただいた個人情報は、お問い合わせ先の不動産会社でも保管します。 お問い合わせ先の不動産会社が保管する個人情報の取り扱いについては、不動産会社に直接お問い合わせください。
国土交通大臣免許(1)第9926号 |
|---|
- 交通:
- JR中央線/三鷹駅 徒歩2分
- 東京都武蔵野市西久保1丁目1-1 井野ビル1F
- TEL:
- 0422-53-9070
- FAX:
- 0422-53-9071
取引態様:仲介  - 00264457
|
- スマートフォンで
この不動産会社を見る

|
- 提携サイト等より掲載されている物件情報につきましては、不動産会社詳細情報にリンクされていないものがあります。
- 物件に関するお問合せは、物件詳細ページの「情報提供会社」に表示されている不動産会社へ直接お願いいたします。
- 間取図は、現況を優先させていただきます。
- 映像は物件の一部を撮影したものです。物件の契約にあたっての最終判断はご自身の判断に基づいて行ってください。
- 仲介手数料について

アットホームは物件情報の適正化に努めております。
内容に誤りがある場合にはこちらへご連絡ください。