東京都新宿区横寺町(牛込神楽坂駅)の賃貸:物件詳細
交通 所在地 |
駅徒歩 |
賃料 管理費等 |
敷金/保証金 礼金 |
間取り 面積 |
物件種目 築年月 |
|
都営大江戸線/牛込神楽坂
東京都新宿区横寺町
|
3分
|
16.8万円
18,000円
|
1ヶ月 / なし
1ヶ月
|
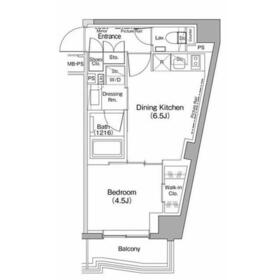
1DK
30.45m²
|
賃貸マンション
2020年3月(築5年10ヶ月)
|
ペット相談、楽器相談、常時ゴミ出し可能、二人入居可、24時間セキュリティー、24時間換気システム、IT重説対応物件、保証人不要
|
|
間取図
|
外観
|
<
その他の画像
>
|
| 交通 | 都営大江戸線 牛込神楽坂駅 徒歩3分 |
|---|
| その他の交通 | 東京メトロ東西線 神楽坂駅 徒歩6分 JR総武線 市ケ谷駅 徒歩12分 |
| 所在地 |
東京都新宿区横寺町
|
| 物件種目 |
賃貸マンション |
| 賃料 |
16.8万円 |
管理費等 |
18,000円 |
| 敷金 / 保証金 |
1ヶ月 / なし |
礼金 |
1ヶ月 |
| 敷引 |
- |
保証金償却 |
- |
| その他一時金 |
駆け付けサポート24:16,500円、鍵交換代等:33,000円~ |
保険等 |
要 2年 18,000円 |
| 維持費等 |
- |
クレジットカード決済 |
初期費用可 |
| 間取り |
1DK(DK6.5帖 洋室4.5帖) |
専有面積 |
30.45m² |
| 築年月 |
2020年3月(築5年10ヶ月)
|
階建 / 階 |
10階建 / 4階 |
| 建物構造 |
RC |
総戸数 |
- |
| 主要採光面 |
南西 |
駐車場 |
有 55,000円/月 |
| バイク置き場 |
- |
駐輪場 |
- |
| 建物名・部屋番号 |
ザ・パークハビオ神楽坂 405 |
ペット |
相談 |
| アピールポイント |
★山手線・東西線・西武新宿線のお部屋探しならタウンハウジングへ★★創業46年の信頼と、首都圏直営139店舗のネットワークで、お客様のご要望にお応えします。★2023年度全国仲介件数第2位(全国賃貸新聞2024掲載)★ |
| リフォーム履歴 |
- |
| リノベーション履歴 |
- |
| 備考 |
賃貸保証等:加入要(賃貸保証料:0.50ヶ月 1年毎1万円)
管理形態/管理員の勤務形態:-/-
IT重説対応物件
★山手線・東西線・西武新宿線のお部屋探しならタウンハウジングへ★★創業46年の信頼と、首都圏直営139店舗のネットワークで、お客様のご要望にお応えします。★2023年度全国仲介件数第2位(全国賃貸新聞2024掲載)★
|
| エネルギー消費性能 |
- |
| 断熱性能 |
- |
| 目安光熱費 |
- |
| バス・トイレ |
バス・トイレ別、浴室暖房、浴室乾燥機、追焚機能、シャワー付洗面化粧台、洗面所独立、洗面所、洗面台、シャワー、温水洗浄便座、トイレ |
| キッチン |
システムキッチン、2口コンロ、ガスコンロ付 |
| セキュリティー |
モニター付オートロック、オートロック、モニター付インターホン、防犯カメラ、火災警報器(報知機) |
| 収納 |
ウォークインクローゼット、収納スペース、クローゼット、シューズボックス |
| 設備・サービス |
全居室エアコン、エアコン2台以上、室内洗濯機置場、給湯、全居室フローリング、フローリング、都市ガス、エアコン、暖房、冷房 |
| TV・通信 |
インターネット対応、インターネット使用料無料、CS、BS端子 |
| その他 |
宅配BOX、バルコニー、エレベーター |
| 契約期間 |
2年 |
現況 |
居住中 |
| 条件等 |
- |
入居可能時期 |
2026年2月下旬予定 |
| 更新料 |
新賃料 1ヶ月 |
物件番号 |
1055839977 |
| 情報公開日 |
2025年12月14日 |
次回更新予定日 |
2025年12月28日 |
| ケータイ用バーコード |
- スマートフォンでこの物件を見る
- スマートフォンからもこの物件をご覧になれます。
|
※「-」と表示されている項目については、情報提供会社にご確認ください。
| 周辺施設 |
タリーズコーヒー神楽坂店 |
| 距離 |
148m |
写真を見る |
| 周辺施設 |
ココカラファイン神楽坂上店 |
| 距離 |
592m |
写真を見る |
| 周辺施設 |
クリエイトエス・ディー新宿牛込北町店 |
| 距離 |
213m |
写真を見る |
| 周辺施設 |
ファミリーマート |
| 距離 |
431m |
写真を見る |
| 周辺施設 |
ローソン牛込店 |
| 距離 |
176m |
写真を見る |
| 周辺施設 |
キッチンコート神楽坂店 |
| 距離 |
270m |
写真を見る |
ここから簡単にお問い合わせをすることができます。
(SSLでの暗号化での送信を希望されるお客さまは
こちら
よりお問い合わせください)
お問い合わせを行う前に
「個人情報の取り扱いについて」を必ずお読みください。
「個人情報の取り扱いについて」に同意いただいた場合は「上記にご同意の上 確認画面へ進む」のボタンをクリックしてください。
個人情報の取り扱いについて
皆さまが送付された個人情報はアットホーム(株)のサーバを経由し、お問い合わせ先の不動産会社にメールまたはFAXにて転送されるためアットホーム(株)にも保管されます。アットホーム(株)で保管された個人情報の取り扱いについては、【こちら】をご覧ください。
また、本画面でご記入いただいた個人情報は、お問い合わせ先の不動産会社でも保管します。 お問い合わせ先の不動産会社が保管する個人情報の取り扱いについては、不動産会社に直接お問い合わせください。
国土交通大臣免許(1)第9926号 |
|---|
- 交通:
- JR山手線/高田馬場駅 徒歩2分
- 東京都新宿区高田馬場1丁目25-28 佐藤ビル2F
- TEL:
- 03-3232-1201
- FAX:
- 03-3232-1202
取引態様:仲介  - 00313986
|
- スマートフォンで
この不動産会社を見る

|
- 提携サイト等より掲載されている物件情報につきましては、不動産会社詳細情報にリンクされていないものがあります。
- 物件に関するお問合せは、物件詳細ページの「情報提供会社」に表示されている不動産会社へ直接お願いいたします。
- 間取図は、現況を優先させていただきます。
- 映像は物件の一部を撮影したものです。物件の契約にあたっての最終判断はご自身の判断に基づいて行ってください。
- 仲介手数料について

アットホームは物件情報の適正化に努めております。
内容に誤りがある場合にはこちらへご連絡ください。