東京都豊島区南池袋2丁目(池袋駅)の賃貸:物件詳細
交通 所在地 |
駅徒歩 |
賃料 管理費等 |
敷金/保証金 礼金 |
間取り 面積 |
物件種目 築年月 |
|
JR山手線/池袋
東京都豊島区南池袋2丁目
|
5分
|
11万円
13,000円
|
1ヶ月 / なし
1ヶ月
|
1K
22.00m²
|
賃貸マンション
2016年2月(築10年1ヶ月)
|
ペット相談、分譲タイプ、24時間換気システム、保証人不要
|
|
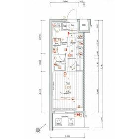
間取図
|
外観
|
その他の画像
|
| 交通 | JR山手線 池袋駅 徒歩5分 |
|---|
| その他の交通 | JR埼京線 池袋駅 徒歩5分 都電荒川線 都電雑司ヶ谷駅 徒歩7分 |
| 所在地 |
東京都豊島区南池袋2丁目
|
| 物件種目 |
賃貸マンション |
| 賃料 |
11万円 |
管理費等 |
13,000円 |
| 敷金 / 保証金 |
1ヶ月 / なし |
礼金 |
1ヶ月 |
| 敷引 |
- |
保証金償却 |
- |
| その他一時金 |
シーラプレミアムクラブ:24,200円、室内清掃費用:52,800円、鍵交換代等:33,000円~ |
保険等 |
要 2年 20,000円 |
| 維持費等 |
- |
| 間取り |
1K(洋6.6) |
専有面積 |
22.00m² |
| 築年月 |
2016年2月(築10年1ヶ月)
|
階建 / 階 |
15階建 / 13階 |
| 建物構造 |
RC |
総戸数 |
- |
| 主要採光面 |
南東 |
駐車場 |
- |
| バイク置き場 |
- |
駐輪場 |
- |
| 建物名・部屋番号 |
メイクスデザイン池袋 1302 |
ペット |
小型犬可・ 猫可 |
| アピールポイント |
共用部には宅配ボックスが備え付けられているため、日々忙しくて家にいる時間が少なくても荷物を受け取れます。収納はクロゼット・シューズボックスなど豊富なので、広々と空間を利用することも可能です。部外者の侵入を抑止するオートロックがついた、安心できる物件です。入浴後でも湿気に悩まされずに化粧やヘアメイクができる独立洗面台があります。システムキッチンは収納性に優れているため、キッチン回りを綺麗に保ちやすくなります。エアコン付きなので、室内の温度調整が簡単です。フローリングのマンションなので、木の温かみを感じることができます。ぜひご覧いただきたい賃貸物件です。バルコニーの広さが3.81平米あるマンションです。この物件は駅から徒歩4分のマンションです。造りとデザインに関して、自信をもって情報を提供できるマンションです。 |
| リフォーム履歴 |
- |
| リノベーション履歴 |
- |
| 備考 |
賃貸保証等:加入要(エルズサポート 初回50%、月額保証料700円、月額事務手数料330円~外国籍の方:GTNを利用。初回保証料100%(最低保証料40,000円)、月額保証料1,000円)
管理形態/管理員の勤務形態:-/-
バルコニー:3.81m²
留守中に注文した商品が届くので、配送時間を気にせず注文ができる宅配ボックスがあります。入浴後でも湿気に悩まされずに化粧やヘアメイクができる独立洗面台が付いております。オートロック機能が付いているので、基本的に住民のみという環境であり安心感につながります。収納はクロゼット・シューズボックスなど豊富なので、衣類や履き物の整理がしやすく便利です。手軽に掃除ができるフローリングの物件です。こちらは1Kの物件です。敷地内ごみ置き場があればごみをもって歩く距離も少なくてすみます。暑い日でも寒い日でも、エアコンのある物件なら安心です。エレベーター付きの物件です。コチラのバルコニーの広さは3.81㎡となっています。多くの方にご好評をいただいている、清潔感のある賃貸物件です。
|
| エネルギー消費性能 |
- |
| 断熱性能 |
- |
| 目安光熱費 |
- |
| バス・トイレ |
バス・トイレ別、浴室乾燥機、洗面所独立、洗面所、洗面台、温水洗浄便座、トイレ |
| キッチン |
システムキッチン、2口コンロ、ガスコンロ可 |
| セキュリティー |
オートロック、ディンプルキー |
| 収納 |
収納スペース、クローゼット、シューズボックス |
| 設備・サービス |
室内洗濯機置場、洗濯機置場、フローリング、都市ガス、エアコン |
| TV・通信 |
インターネット対応、インターネット使用料無料、CS、BS端子 |
| その他 |
宅配BOX、バルコニー、エレベーター |
| 契約期間 |
2年 |
現況 |
居住中 |
| 条件等 |
定期借家 |
入居可能時期 |
2026年4月中旬予定 |
| 更新料 |
- |
物件番号 |
1056491795 |
| 情報公開日 |
2026年1月31日 |
次回更新予定日 |
2026年2月14日 |
| ケータイ用バーコード |
- スマートフォンでこの物件を見る
- スマートフォンからもこの物件をご覧になれます。
|
※「-」と表示されている項目については、情報提供会社にご確認ください。
ここから簡単にお問い合わせをすることができます。
(SSLでの暗号化での送信を希望されるお客さまは
こちら
よりお問い合わせください)
お問い合わせを行う前に
「個人情報の取り扱いについて」を必ずお読みください。
「個人情報の取り扱いについて」に同意いただいた場合は「上記にご同意の上 確認画面へ進む」のボタンをクリックしてください。
個人情報の取り扱いについて
皆さまが送付された個人情報はアットホーム(株)のサーバを経由し、お問い合わせ先の不動産会社にメールまたはFAXにて転送されるためアットホーム(株)にも保管されます。アットホーム(株)で保管された個人情報の取り扱いについては、【こちら】をご覧ください。
また、本画面でご記入いただいた個人情報は、お問い合わせ先の不動産会社でも保管します。 お問い合わせ先の不動産会社が保管する個人情報の取り扱いについては、不動産会社に直接お問い合わせください。
(株)シーラ国土交通大臣免許(2)第9715号 |
|---|
- 交通:
- JR山手線/恵比寿駅 徒歩6分
- 東京都渋谷区広尾1丁目1-39 恵比寿プライムスクエア7階
- TEL:
- 03-4560-0653
- FAX:
- 03-4560-0660
- 所属団体:
- (公社)東京都宅地建物取引業協会会員(公社)首都圏不動産公正取引協議会加盟
取引態様:代理 |
- 提携サイト等より掲載されている物件情報につきましては、不動産会社詳細情報にリンクされていないものがあります。
- 物件に関するお問合せは、物件詳細ページの「情報提供会社」に表示されている不動産会社へ直接お願いいたします。
- 間取図は、現況を優先させていただきます。
- 映像は物件の一部を撮影したものです。物件の契約にあたっての最終判断はご自身の判断に基づいて行ってください。
- 仲介手数料について

アットホームは物件情報の適正化に努めております。
内容に誤りがある場合にはこちらへご連絡ください。