東京都荒川区東日暮里5丁目(日暮里駅)の賃貸:物件詳細
交通 所在地 |
駅徒歩 |
賃料 管理費等 |
敷金/保証金 礼金 |
間取り 面積 |
物件種目 築年月 |
|
JR山手線/日暮里
東京都荒川区東日暮里5丁目
|
10分
|
13万円
15,000円
|
なし / なし
なし
|
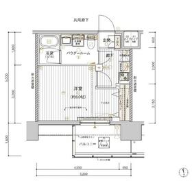
1K
26.00m²
|
賃貸マンション
2019年11月(築6年7ヶ月)
|
ペット相談、分譲タイプ、常時ゴミ出し可能、24時間セキュリティー、24時間換気システム、外観タイル張り、保証人不要
|
|
間取図
|
外観
|
その他の画像
|
| 交通 | JR山手線 日暮里駅 徒歩10分 |
|---|
| その他の交通 | JR山手線 鶯谷駅 徒歩5分 東京メトロ日比谷線 入谷駅 徒歩12分 |
| 所在地 |
東京都荒川区東日暮里5丁目
|
| 物件種目 |
賃貸マンション |
| 賃料 |
13万円 |
管理費等 |
15,000円 |
| 敷金 / 保証金 |
なし / なし |
礼金 |
なし |
| 敷引 |
- |
保証金償却 |
- |
| その他一時金 |
ハウスクリーニング費用(退去時請求):49,500円、退去時鍵交換費用(契約時請求):29,700円、AMLクラブサポート費用(契約時請求):16,500円 |
保険等 |
要 2年 16,000円 |
| 維持費等 |
- |
| 間取り |
1K(洋室8畳) |
専有面積 |
26.00m² |
| 築年月 |
2019年11月(築6年7ヶ月)
|
階建 / 階 |
13階建 / 7階 |
| 建物構造 |
RC |
総戸数 |
- |
| 主要採光面 |
北東 |
駐車場 |
- |
| バイク置き場 |
- |
駐輪場 |
有 |
| 建物名・部屋番号 |
メインステージ東日暮里 0704 |
ペット |
相談 |
| アピールポイント |
ペット可(敷1)
保証会社必須(セゾン)
退去時要清掃代
引越業者当社指定
ネット込(シーファイブ)
解約予告50日前 |
| リフォーム履歴 |
- |
| リノベーション履歴 |
- |
| 備考 |
賃貸保証等:加入要(家賃総額より50%~)
管理形態/管理員の勤務形態:-/巡回
バルコニー:5.67m²
管理人巡回
引越業者当社指定解約予告50日前
ペット可(敷1)保証会社必須(セゾン)退去時要清掃代引越業者当社指定ネット込(シーファイブ)解約予告50日前
|
| エネルギー消費性能 |
- |
| 断熱性能 |
- |
| 目安光熱費 |
- |
| バス・トイレ |
バス・トイレ別、浴室乾燥機、洗面台、温水洗浄便座、トイレ |
| キッチン |
システムキッチン、2口コンロ、ガスコンロ付 |
| セキュリティー |
モニター付オートロック、オートロック、モニター付インターホン、ディンプルキー、ダブルロックドア、防犯カメラ |
| 収納 |
クローゼット、シューズボックス |
| 設備・サービス |
室内洗濯機置場、洗濯機置場、給湯、都市ガス、エアコン、人感センサー付照明、ダウンライト、照明器具 |
| TV・通信 |
CS、BS端子 |
| その他 |
宅配BOX、バルコニー、駐輪場、エレベーター |
| 契約期間 |
2年 |
現況 |
居住中 |
| 条件等 |
- |
入居可能時期 |
2026年7月中旬予定 |
| 更新料 |
新賃料 1.5ヶ月 |
物件番号 |
1058216244 |
| 情報公開日 |
2026年5月16日 |
次回更新予定日 |
2026年5月30日 |
| ケータイ用バーコード |
- スマートフォンでこの物件を見る
- スマートフォンからもこの物件をご覧になれます。
|
※「-」と表示されている項目については、情報提供会社にご確認ください。
ここから簡単にお問い合わせをすることができます。
(SSLでの暗号化での送信を希望されるお客さまは
こちら
よりお問い合わせください)
お問い合わせを行う前に
「個人情報の取り扱いについて」を必ずお読みください。
「個人情報の取り扱いについて」に同意いただいた場合は「上記にご同意の上 確認画面へ進む」のボタンをクリックしてください。
個人情報の取り扱いについて
皆さまが送付された個人情報はアットホーム(株)のサーバを経由し、お問い合わせ先の不動産会社にメールまたはFAXにて転送されるためアットホーム(株)にも保管されます。アットホーム(株)で保管された個人情報の取り扱いについては、【こちら】をご覧ください。
また、本画面でご記入いただいた個人情報は、お問い合わせ先の不動産会社でも保管します。 お問い合わせ先の不動産会社が保管する個人情報の取り扱いについては、不動産会社に直接お問い合わせください。
(株)青山メインランド東京都知事免許(9)第54441号 |
|---|
- 交通:
- JR山手線/神田駅 徒歩7分
- 東京都千代田区内神田1丁目7-6 北大手町ビル
- TEL:
- 03-5281-5321
- FAX:
- 03-5281-5333
- 所属団体:
- (公社)東京都宅地建物取引業協会会員(公社)首都圏不動産公正取引協議会加盟
取引態様:貸主 |
- 提携サイト等より掲載されている物件情報につきましては、不動産会社詳細情報にリンクされていないものがあります。
- 物件に関するお問合せは、物件詳細ページの「情報提供会社」に表示されている不動産会社へ直接お願いいたします。
- 間取図は、現況を優先させていただきます。
- 映像は物件の一部を撮影したものです。物件の契約にあたっての最終判断はご自身の判断に基づいて行ってください。
- 仲介手数料について

アットホームは物件情報の適正化に努めております。
内容に誤りがある場合にはこちらへご連絡ください。