東京都江東区東陽7丁目(東陽町駅)の賃貸:物件詳細
交通 所在地 |
駅徒歩 |
賃料 管理費等 |
敷金/保証金 礼金 |
間取り 面積 |
物件種目 築年月 |
|
東京メトロ東西線/東陽町
東京都江東区東陽7丁目
|
9分
|
28万円
なし
|
1ヶ月 / なし
1ヶ月
|
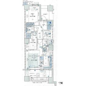
2LDK
55.28m²
|
賃貸マンション
2019年3月(築7年1ヶ月)
|
楽器相談、分譲タイプ、常時ゴミ出し可能、保証人不要
|
|
間取図
SBタイプ
|
外観
2019年5月撮影
|
<
その他の画像
>
|
| 交通 | 東京メトロ東西線 東陽町駅 徒歩9分 |
| 所在地 |
東京都江東区東陽7丁目
|
| 物件種目 |
賃貸マンション |
| 賃料 |
28万円 |
管理費等 |
なし |
| 敷金 / 保証金 |
1ヶ月 / なし |
礼金 |
1ヶ月 |
| 敷引 |
- |
保証金償却 |
- |
| その他一時金 |
入居時鍵交換費用:33,000円、M-REALプレミアム会費2年:19,800円 |
保険等 |
要 2年 32,000円 |
| 維持費等 |
- |
| 間取り |
2LDK(LDK12.2洋室6洋室4) |
専有面積 |
55.28m² |
| 築年月 |
2019年3月(築7年1ヶ月)
|
階建 / 階 |
11階建 / 2階 |
| 建物構造 |
RC |
総戸数 |
117戸 |
| 主要採光面 |
西 |
駐車場 |
無 |
| バイク置き場 |
- |
駐輪場 |
- |
| 建物名・部屋番号 |
ザ・パークハウス東陽町翠賓閣 202 |
ペット |
-
|
| リフォーム履歴 |
- |
| リノベーション履歴 |
- |
| 備考 |
賃貸保証等:加入要(当社指定:初期費用は賃料等の50%、月次保証料は賃料等の1%。その他保証会社条件有)
管理形態/管理員の勤務形態:-/-
バルコニー:10.2m²
専有面積はトランクルーム0.35㎡を含む
退去時清掃実費、大手法人保証会社不要(敷金1ヶ月増)
|
| エネルギー消費性能 |
- |
| 断熱性能 |
- |
| 目安光熱費 |
- |
| バス・トイレ |
バス・トイレ別、浴室乾燥機、洗面所独立、温水洗浄便座、トイレ |
| キッチン |
システムキッチン、グリル |
| セキュリティー |
オートロック、モニター付インターホン |
| 収納 |
ウォークインクローゼット、トランクルーム |
| 設備・サービス |
床暖房、室内洗濯機置場、フローリング、都市ガス |
| TV・通信 |
インターネット対応、インターネット使用料無料 |
| その他 |
宅配BOX、バルコニー、エレベーター |
| 契約期間 |
2年 |
現況 |
空家 |
| 条件等 |
定期借家 |
入居可能時期 |
指定有り2026年4月3日 |
| 更新料 |
新賃料 1ヶ月 |
物件番号 |
1058921541 |
| 情報公開日 |
2026年2月21日 |
次回更新予定日 |
2026年4月7日 |
| ケータイ用バーコード |
- スマートフォンでこの物件を見る
- スマートフォンからもこの物件をご覧になれます。
|
※「-」と表示されている項目については、情報提供会社にご確認ください。
ここから簡単にお問い合わせをすることができます。
(SSLでの暗号化での送信を希望されるお客さまは
こちら
よりお問い合わせください)
お問い合わせを行う前に
「個人情報の取り扱いについて」を必ずお読みください。
「個人情報の取り扱いについて」に同意いただいた場合は「上記にご同意の上 確認画面へ進む」のボタンをクリックしてください。
個人情報の取り扱いについて
皆さまが送付された個人情報はアットホーム(株)のサーバを経由し、お問い合わせ先の不動産会社にメールまたはFAXにて転送されるためアットホーム(株)にも保管されます。アットホーム(株)で保管された個人情報の取り扱いについては、【こちら】をご覧ください。
また、本画面でご記入いただいた個人情報は、お問い合わせ先の不動産会社でも保管します。 お問い合わせ先の不動産会社が保管する個人情報の取り扱いについては、不動産会社に直接お問い合わせください。
三菱地所リアルエステートサービス(株) 住宅運営部国土交通大臣免許(14)第1512号 |
|---|
- 交通:
- 東京メトロ丸ノ内線/大手町駅 徒歩1分
- 東京都千代田区大手町1丁目9-2 大手町フィナンシャルシティグランキューブ11階
- TEL:
- 0120-714-260
- FAX:
- 03-3510-8068
- 所属団体:
- (一社)不動産流通経営協会会員(一社)不動産協会会員(公社)首都圏不動産公正取引協議会加盟
取引態様:貸主 |
- 提携サイト等より掲載されている物件情報につきましては、不動産会社詳細情報にリンクされていないものがあります。
- 物件に関するお問合せは、物件詳細ページの「情報提供会社」に表示されている不動産会社へ直接お願いいたします。
- 間取図は、現況を優先させていただきます。
- 映像は物件の一部を撮影したものです。物件の契約にあたっての最終判断はご自身の判断に基づいて行ってください。
- 仲介手数料について

アットホームは物件情報の適正化に努めております。
内容に誤りがある場合にはこちらへご連絡ください。