東京都文京区関口1丁目(江戸川橋駅)の賃貸:物件詳細
交通 所在地 |
駅徒歩 |
賃料 管理費等 |
敷金/保証金 礼金 |
間取り 面積 |
物件種目 築年月 |
|
東京メトロ有楽町線/江戸川橋
東京都文京区関口1丁目
|
2分
|
8.1万円
5,000円
|
1ヶ月 / なし
なし
|
ワンルーム
18.68m²
|
賃貸マンション
2014年7月(築11年4ヶ月)
|
角部屋、オール電化
|
|
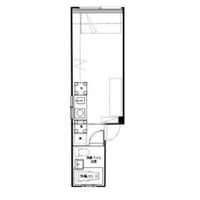
間取図
|
外観
|
<
その他の画像
>
|
| 交通 | 東京メトロ有楽町線 江戸川橋駅 徒歩2分 |
|---|
| その他の交通 | 東京メトロ東西線 神楽坂駅 徒歩7分 東京メトロ東西線 早稲田駅 徒歩10分 |
| 所在地 |
東京都文京区関口1丁目
|
| 物件種目 |
賃貸マンション |
| 賃料 |
8.1万円 |
管理費等 |
5,000円 |
| 敷金 / 保証金 |
1ヶ月 / なし |
礼金 |
なし |
| 敷引 |
- |
保証金償却 |
- |
| その他一時金 |
24Hサポート利用料:16,500円、鍵交換代等:38,500円~ |
保険等 |
要 2年 20,000円 |
| 維持費等 |
- |
| 間取り |
ワンルーム(洋室8.5) |
専有面積 |
18.68m² |
| 築年月 |
2014年7月(築11年4ヶ月)
|
階建 / 階 |
5階建 / 3階 |
| 建物構造 |
RC |
総戸数 |
8戸 |
| 主要採光面 |
北 |
駐車場 |
- |
| バイク置き場 |
- |
駐輪場 |
- |
| 建物名・部屋番号 |
プレシャス文京関口 302 |
ペット |
-
|
| アピールポイント |
礼金0ヶ月キャンペーン中!
オートロック付き
スーパー、コンビニ、飲食店も至近
打ちっ放し壁のシャープなデザイン! |
| リフォーム履歴 |
- |
| リノベーション履歴 |
- |
| 備考 |
賃貸保証等:加入要(その他 エルズサポート㈱:初回利用料、月額総賃料の50%。月次利用料、月額総賃料の1%)
管理形態/管理員の勤務形態:-/巡回
管理人巡回
※特定のインターネット設備はありません。ご利用時は入居者様ご自身でインターネット回線会社をお手配ください。
24Hサポート利用料: 16,500円(税込)
鍵交換料: 38,500円(税込)
保険料: 20,000円 2年
保証会社: 加入要
エルズサポート㈱:初回利用料、月額総賃料の50%。月次利用料、月額総賃料の1%
解約予告: 1ヶ月前
|
| エネルギー消費性能 |
- |
| 断熱性能 |
- |
| 目安光熱費 |
- |
| バス・トイレ |
温水洗浄便座 |
| キッチン |
IHクッキングヒーター |
| セキュリティー |
オートロック |
| 収納 |
- |
| 設備・サービス |
フローリング、エアコン |
| TV・通信 |
- |
| その他 |
- |
| 契約期間 |
2年 |
現況 |
空家 |
| 条件等 |
- |
入居可能時期 |
相談 |
| 更新料 |
新賃料 1ヶ月 |
物件番号 |
1059542379 |
| 情報公開日 |
2025年10月15日 |
次回更新予定日 |
2025年11月4日 |
| ケータイ用バーコード |
- スマートフォンでこの物件を見る
- スマートフォンからもこの物件をご覧になれます。
|
※「-」と表示されている項目については、情報提供会社にご確認ください。
ここから簡単にお問い合わせをすることができます。
(SSLでの暗号化での送信を希望されるお客さまは
こちら
よりお問い合わせください)
お問い合わせを行う前に
「個人情報の取り扱いについて」を必ずお読みください。
「個人情報の取り扱いについて」に同意いただいた場合は「上記にご同意の上 確認画面へ進む」のボタンをクリックしてください。
個人情報の取り扱いについて
皆さまが送付された個人情報はアットホーム(株)のサーバを経由し、お問い合わせ先の不動産会社にメールまたはFAXにて転送されるためアットホーム(株)にも保管されます。アットホーム(株)で保管された個人情報の取り扱いについては、【こちら】をご覧ください。
また、本画面でご記入いただいた個人情報は、お問い合わせ先の不動産会社でも保管します。 お問い合わせ先の不動産会社が保管する個人情報の取り扱いについては、不動産会社に直接お問い合わせください。
東京都知事免許(10)第44219号 |
|---|
- 交通:
- JR山手線/新橋駅 徒歩4分
- 東京都中央区銀座8丁目2-12 東京華僑会館3階
- TEL:
- 03-6852-8686
- FAX:
- 03-6852-8687
- 所属団体:
- (公社)東京都宅地建物取引業協会会員(公社)首都圏不動産公正取引協議会加盟
取引態様:仲介  - 00265618
|
- スマートフォンで
この不動産会社を見る

|
- 提携サイト等より掲載されている物件情報につきましては、不動産会社詳細情報にリンクされていないものがあります。
- 物件に関するお問合せは、物件詳細ページの「情報提供会社」に表示されている不動産会社へ直接お願いいたします。
- 間取図は、現況を優先させていただきます。
- 映像は物件の一部を撮影したものです。物件の契約にあたっての最終判断はご自身の判断に基づいて行ってください。
- 仲介手数料について

アットホームは物件情報の適正化に努めております。
内容に誤りがある場合にはこちらへご連絡ください。