愛知県名古屋市中区新栄1丁目(矢場町駅)の賃貸:物件詳細
交通 所在地 |
駅徒歩 |
賃料 管理費等 |
敷金/保証金 礼金 |
間取り 面積 |
物件種目 築年月 |
|
名古屋市名城線/矢場町
愛知県名古屋市中区新栄1丁目
|
9分
|
5.8万円
8,000円
|
なし / なし
なし
|
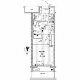
1K
21.66m²
|
賃貸マンション
2020年12月(築5年6ヶ月)
|
ペット相談、法人契約希望
|
|
間取図
|
外観
|
<
その他の画像
>
|
| 交通 | 名古屋市名城線 矢場町駅 徒歩9分 |
|---|
| その他の交通 | 名古屋市東山線 新栄町駅 徒歩12分 JR中央線 鶴舞駅 徒歩15分 |
| 所在地 |
愛知県名古屋市中区新栄1丁目
|
| 物件種目 |
賃貸マンション |
| 賃料 |
5.8万円 |
管理費等 |
8,000円 |
| 敷金 / 保証金 |
なし / なし |
礼金 |
なし |
| 敷引 |
- |
保証金償却 |
- |
| その他一時金 |
なし、鍵交換代等:33,000円~ |
保険等 |
不要 |
| 維持費等 |
- |
| 間取り |
1K |
専有面積 |
21.66m² |
| 築年月 |
2020年12月(築5年6ヶ月)
|
階建 / 階 |
12階建 / 8階 |
| 建物構造 |
RC |
総戸数 |
- |
| 主要採光面 |
北 |
駐車場 |
- |
| バイク置き場 |
- |
駐輪場 |
- |
| 建物名・部屋番号 |
メイクス矢場町 806 |
ペット |
相談 |
| リフォーム履歴 |
- |
| リノベーション履歴 |
- |
| 備考 |
賃貸保証等:加入要(①にじいろインシュア 50% 決済サービス料550円/月+月次保証料:月額賃料の1%(1%が1,000円に満たない場合は一律で1,000円)※継続保証料(年払い)は無し ②オリコフォレントインシュア)
管理形態/管理員の勤務形態:-/-
バルコニー:4.27m²
法人契約時礼金1.5ヶ月/更新事務手数料22,000円(税込)/短期解約違約金あり(2年未満解約 賃料+管理費1.5ヶ月分)/解約2ヶ月前予告/ペット飼育相談(小型犬または猫2匹まで)飼育の際は1匹につき敷金1ヶ月(100%償却)/退去時ルームクリーニング費用とエアコンクリーニング費用必要(金額要確認)/安心入居サポート(必須)22,000円(税込)※2年更新/鍵交換費 33,000円/保険要加入
室内設備は洗面所独立・浴室乾燥機など豊富に揃っており、過ごしやすいお部屋になっております。セキュリティ面は、TVインターホン・オートロックなどを備え付けているので安心して暮らせます。荷物を受け取れないときは宅配ボックスに届くので、出社する方や配達にすぐに対応できないことが多い方に重宝されています。コチラのバルコニーの広さは4.27㎡となっています。こちらの物件でペットの飼育をご希望の際は、事前にご相談ください。お部屋にキッチンがある住まいです 。住みやすい環境が嬉しい賃貸物件です。駅から徒歩9分に立地する物件です。多くの方にご好評の、BS対応のマンションとなっています。フローリングなので、
|
| エネルギー消費性能 |
- |
| 断熱性能 |
- |
| 目安光熱費 |
- |
| バス・トイレ |
バス・トイレ別、浴室乾燥機、洗面所独立、洗面所、温水洗浄便座、トイレ |
| キッチン |
システムキッチン、2口コンロ、ガスコンロ可 |
| セキュリティー |
モニター付オートロック、オートロック、モニター付インターホン、防犯カメラ |
| 収納 |
収納スペース、シューズボックス |
| 設備・サービス |
室内洗濯機置場、洗濯機置場、都市ガス給湯、給湯、フローリング、都市ガス、エアコン |
| TV・通信 |
インターネット対応、インターネット使用料無料、CS、BS端子 |
| その他 |
宅配BOX、バルコニー、エレベーター |
| 契約期間 |
2年 |
現況 |
空家 |
| 条件等 |
- |
入居可能時期 |
即時 |
| 更新料 |
旧賃料 1ヶ月 |
物件番号 |
1066138977 |
| 情報公開日 |
2026年5月10日 |
次回更新予定日 |
2026年5月24日 |
| ケータイ用バーコード |
- スマートフォンでこの物件を見る
- スマートフォンからもこの物件をご覧になれます。
|
※「-」と表示されている項目については、情報提供会社にご確認ください。
ここから簡単にお問い合わせをすることができます。
(SSLでの暗号化での送信を希望されるお客さまは
こちら
よりお問い合わせください)
お問い合わせを行う前に
「個人情報の取り扱いについて」を必ずお読みください。
「個人情報の取り扱いについて」に同意いただいた場合は「上記にご同意の上 確認画面へ進む」のボタンをクリックしてください。
個人情報の取り扱いについて
皆さまが送付された個人情報はアットホーム(株)のサーバを経由し、お問い合わせ先の不動産会社にメールまたはFAXにて転送されるためアットホーム(株)にも保管されます。アットホーム(株)で保管された個人情報の取り扱いについては、【こちら】をご覧ください。
また、本画面でご記入いただいた個人情報は、お問い合わせ先の不動産会社でも保管します。 お問い合わせ先の不動産会社が保管する個人情報の取り扱いについては、不動産会社に直接お問い合わせください。
国土交通大臣免許(14)第2018号 |
|---|
- 交通:
- 名古屋市東山線/伏見駅 徒歩5分
- 愛知県名古屋市中区栄2丁目4-10 セントラル広小路ビル1F
- TEL:
- 052-203-1681
- FAX:
- 052-203-1699
- 所属団体:
- (公社)愛知県宅地建物取引業協会会員東海不動産公正取引協議会加盟
取引態様:仲介  - 40401824
|
- スマートフォンで
この不動産会社を見る

|
- 提携サイト等より掲載されている物件情報につきましては、不動産会社詳細情報にリンクされていないものがあります。
- 物件に関するお問合せは、物件詳細ページの「情報提供会社」に表示されている不動産会社へ直接お願いいたします。
- 間取図は、現況を優先させていただきます。
- 映像は物件の一部を撮影したものです。物件の契約にあたっての最終判断はご自身の判断に基づいて行ってください。
- 仲介手数料について

アットホームは物件情報の適正化に努めております。
内容に誤りがある場合にはこちらへご連絡ください。