神奈川県横須賀市佐原4丁目(京急久里浜駅)の賃貸:物件詳細
交通 所在地 |
駅徒歩 |
賃料 管理費等 |
敷金/保証金 礼金 |
間取り 面積 |
物件種目 築年月 |
|
京急久里浜線/京急久里浜
神奈川県横須賀市佐原4丁目
|
22分
|
9.8万円
なし
|
1ヶ月 / なし
1ヶ月
|
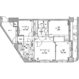
3LDK
59.26m²
|
賃貸マンション
1997年7月(築28年8ヶ月)
|
分譲タイプ、角部屋、南向き、外観タイル張り、保証人不要
|
|
間取図
|
外観
|
<
その他の画像
>
|
| 交通 | 京急久里浜線 京急久里浜駅 徒歩22分 |
|---|
| その他の交通 | 京急久里浜線 北久里浜駅 徒歩24分 JR横須賀線 久里浜駅 徒歩29分 |
| 所在地 |
神奈川県横須賀市佐原4丁目
|
| 物件種目 |
賃貸マンション |
| 賃料 |
9.8万円 |
管理費等 |
なし |
| 敷金 / 保証金 |
1ヶ月 / なし |
礼金 |
1ヶ月 |
| 敷引 |
- |
保証金償却 |
- |
| その他一時金 |
なし |
保険等 |
要 2年 21,500円 |
| 維持費等 |
緊急サポート24:800円/月 |
| 間取り |
3LDK(洋室5.7畳/洋室6畳/K3.1畳/LD7.5畳/S4.4畳) |
専有面積 |
59.26m² |
| 築年月 |
1997年7月(築28年8ヶ月)
|
階建 / 階 |
地上7階地下1階建 / 1階 |
| 建物構造 |
RC |
総戸数 |
- |
| 主要採光面 |
南 |
駐車場 |
有 無料 |
| バイク置き場 |
有 |
駐輪場 |
有 |
| 建物名・部屋番号 |
ガーデンライフ久里浜12番館 101 |
ペット |
-
|
| リフォーム履歴 |
- |
| リノベーション履歴 |
- |
| 備考 |
賃貸保証等:加入要(ジェイリース 初回保証料は賃料総額の50%、更新保証料は毎年1万円)
管理形態/管理員の勤務形態:-/日勤
管理人日勤
鍵交換代は実費。
鍵交換代は実費(約15,000~30,000円税別)になります。
|
| エネルギー消費性能 |
- |
| 断熱性能 |
- |
| 目安光熱費 |
- |
| バス・トイレ |
バス・トイレ別、追焚機能、洗面所独立、洗面台、シャワー、温水洗浄便座、トイレ |
| キッチン |
システムキッチン、3口以上コンロ、ガスコンロ付 |
| セキュリティー |
- |
| 収納 |
収納スペース、クローゼット、シューズボックス、床下収納 |
| 設備・サービス |
室内洗濯機置場、給湯、都市ガス、エアコン |
| TV・通信 |
CATVインターネット、ケーブルTV |
| その他 |
バイク置き場、バルコニー、駐輪場 |
| 契約期間 |
2年 |
現況 |
居住中 |
| 条件等 |
- |
入居可能時期 |
2026年3月下旬予定 |
| 仲介手数料 |
1.1ヶ月 |
|
|
| 更新料 |
新賃料 1ヶ月 |
物件番号 |
1066661044 |
| 情報公開日 |
2026年2月16日 |
次回更新予定日 |
2026年3月2日 |
| ケータイ用バーコード |
- スマートフォンでこの物件を見る
- スマートフォンからもこの物件をご覧になれます。
|
※「-」と表示されている項目については、情報提供会社にご確認ください。
| 周辺施設 |
ファミリーマート 佐原四丁目店 |
| 距離 |
741m |
写真を見る |
| 周辺施設 |
ave(エイビイ) 佐原店 |
| 距離 |
2133m |
写真を見る |
| 周辺施設 |
ワークマン 横須賀久里浜店 |
| 距離 |
579m |
写真を見る |
| 周辺施設 |
セブンイレブン 横須賀内川1丁目店 |
| 距離 |
422m |
写真を見る |
ここから簡単にお問い合わせをすることができます。
(SSLでの暗号化での送信を希望されるお客さまは
こちら
よりお問い合わせください)
お問い合わせを行う前に
「個人情報の取り扱いについて」を必ずお読みください。
「個人情報の取り扱いについて」に同意いただいた場合は「上記にご同意の上 確認画面へ進む」のボタンをクリックしてください。
個人情報の取り扱いについて
皆さまが送付された個人情報はアットホーム(株)のサーバを経由し、お問い合わせ先の不動産会社にメールまたはFAXにて転送されるためアットホーム(株)にも保管されます。アットホーム(株)で保管された個人情報の取り扱いについては、【こちら】をご覧ください。
また、本画面でご記入いただいた個人情報は、お問い合わせ先の不動産会社でも保管します。 お問い合わせ先の不動産会社が保管する個人情報の取り扱いについては、不動産会社に直接お問い合わせください。
神奈川県知事免許(5)第25817号 |
|---|
- 交通:
- 京急本線/県立大学駅 徒歩10分
- 神奈川県横須賀市日の出町3丁目14番地 ケイエムビル1F
- TEL:
- 046-824-6718
- FAX:
- 046-824-7327
- 所属団体:
- (公社)神奈川県宅地建物取引業協会会員(公社)首都圏不動産公正取引協議会加盟
取引態様:仲介  - 00020166
|
- スマートフォンで
この不動産会社を見る

|
- 提携サイト等より掲載されている物件情報につきましては、不動産会社詳細情報にリンクされていないものがあります。
- 物件に関するお問合せは、物件詳細ページの「情報提供会社」に表示されている不動産会社へ直接お願いいたします。
- 間取図は、現況を優先させていただきます。
- 映像は物件の一部を撮影したものです。物件の契約にあたっての最終判断はご自身の判断に基づいて行ってください。
- 仲介手数料について

アットホームは物件情報の適正化に努めております。
内容に誤りがある場合にはこちらへご連絡ください。