大阪府泉佐野市高松東2丁目(泉佐野駅)の賃貸:物件詳細
交通 所在地 |
駅徒歩 |
賃料 管理費等 |
敷金/保証金 礼金 |
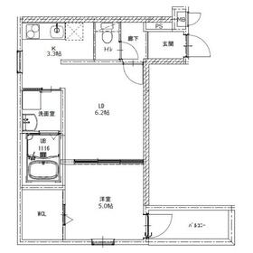
間取り 面積 |
物件種目 築年月 |
南海空港線/泉佐野
大阪府泉佐野市高松東2丁目
|
13分
|
6.7万円
5,000円
|
なし / なし
10万円
|
1LDK
36.42m²
|
賃貸アパート
2023年11月(築2年)
|
二人入居可、IT重説対応物件
|
間取図
|
外観
|
<
その他の画像
>
|
交通 | 南海空港線 泉佐野駅 徒歩13分 |
---|
その他の交通 | JR阪和線 日根野駅 徒歩32分 JR関西空港線 りんくうタウン駅 徒歩26分 |
所在地 |
大阪府泉佐野市高松東2丁目
|
物件種目 |
賃貸アパート |
賃料 |
6.7万円 |
管理費等 |
5,000円 |
敷金 / 保証金 |
なし / なし |
礼金 |
10万円 |
敷引 |
実費 |
保証金償却 |
- |
その他一時金 |
鍵交換代等:11,000円~ |
保険等 |
要 2年 19,000円 |
維持費等 |
- |
間取り |
1LDK(LDK9.5 洋5) |
専有面積 |
36.42m² |
築年月 |
2023年11月(築2年)
|
階建 / 階 |
3階建 / 1階 |
建物構造 |
木造 |
総戸数 |
12戸 |
主要採光面 |
南東 |
駐車場 |
空無 |
バイク置き場 |
- |
駐輪場 |
- |
建物名・部屋番号 |
フジパレスシエスタ 102 |
ペット |
-
|
アピールポイント |
オートロック、無料WiFi付きのお部屋です |
リフォーム履歴 |
- |
リノベーション履歴 |
- |
備考 |
賃貸保証等:加入要(初回:50%、月額:総賃料の1%)
管理形態/管理員の勤務形態:-/-
IT重説対応物件
火災保険加入必須
更新料:7,700円
|
エネルギー消費性能 |
- |
断熱性能 |
- |
目安光熱費 |
- |
バス・トイレ |
バス・トイレ別、浴室乾燥機、シャワー付洗面化粧台、洗面所独立、洗面所、洗面台、シャワー、温水洗浄便座、トイレ |
キッチン |
システムキッチン、IHクッキングヒーター |
セキュリティー |
オートロック、モニター付インターホン |
収納 |
ウォークインクローゼット |
設備・サービス |
室内洗濯機置場、全居室フローリング、フローリング、都市ガス、エアコン |
TV・通信 |
インターネット対応、インターネット使用料無料 |
その他 |
バルコニー |
契約期間 |
1年 |
現況 |
居住中 |
条件等 |
- |
入居可能時期 |
2025年12月下旬予定 |
更新料 |
7,700円 |
物件番号 |
1066959467 |
情報公開日 |
2025年10月10日 |
次回更新予定日 |
2025年10月24日 |
ケータイ用バーコード |
- スマートフォンでこの物件を見る
- スマートフォンからもこの物件をご覧になれます。
|
※「-」と表示されている項目については、情報提供会社にご確認ください。
ここから簡単にお問い合わせをすることができます。
(SSLでの暗号化での送信を希望されるお客さまは
こちら
よりお問い合わせください)
お問い合わせを行う前に
「個人情報の取り扱いについて」を必ずお読みください。
「個人情報の取り扱いについて」に同意いただいた場合は「上記にご同意の上 確認画面へ進む」のボタンをクリックしてください。
個人情報の取り扱いについて
皆さまが送付された個人情報はアットホーム(株)のサーバを経由し、お問い合わせ先の不動産会社にメールまたはFAXにて転送されるためアットホーム(株)にも保管されます。アットホーム(株)で保管された個人情報の取り扱いについては、【こちら】をご覧ください。
また、本画面でご記入いただいた個人情報は、お問い合わせ先の不動産会社でも保管します。 お問い合わせ先の不動産会社が保管する個人情報の取り扱いについては、不動産会社に直接お問い合わせください。
大阪府知事免許(3)第57744号 |
---|
- 交通:
- 南海本線/貝塚駅 徒歩8分
- 大阪府貝塚市新町5-3
- TEL:
- 072-439-1804
- FAX:
- 072-439-1805
- 所属団体:
- (公社)全日本不動産協会会員(公社)近畿地区不動産公正取引協議会加盟
取引態様:仲介  - 50026788
|
- スマートフォンで
この不動産会社を見る

|
- 提携サイト等より掲載されている物件情報につきましては、不動産会社詳細情報にリンクされていないものがあります。
- 物件に関するお問合せは、物件詳細ページの「情報提供会社」に表示されている不動産会社へ直接お願いいたします。
- 間取図は、現況を優先させていただきます。
- 映像は物件の一部を撮影したものです。物件の契約にあたっての最終判断はご自身の判断に基づいて行ってください。
- 仲介手数料について

アットホームは物件情報の適正化に努めております。
内容に誤りがある場合にはこちらへご連絡ください。