東京都調布市国領町5丁目(布田駅)の賃貸:物件詳細
交通 所在地 |
駅徒歩 |
賃料 管理費等 |
敷金/保証金 礼金 |
間取り 面積 |
物件種目 築年月 |
|
京王線/布田
東京都調布市国領町5丁目
|
1分
|
10万円
15,000円
|
なし / なし
1ヶ月
|
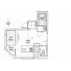
ワンルーム
25.40m²
|
賃貸マンション
2025年11月
|
デザイナーズ、角部屋、南向き、2面採光、24時間換気システム、IT重説対応物件
|
|
間取図
|
外観
|
<
その他の画像
>
|
| 交通 | 京王線 布田駅 徒歩1分 |
|---|
| その他の交通 | 京王線 国領駅 徒歩10分 京王線 調布駅 徒歩10分 |
| 所在地 |
東京都調布市国領町5丁目
|
| 物件種目 |
賃貸マンション |
| 賃料 |
10万円 |
管理費等 |
15,000円 |
| 敷金 / 保証金 |
なし / なし |
礼金 |
1ヶ月 |
| 敷引 |
- |
保証金償却 |
- |
| その他一時金 |
害虫駆除防除、光触媒:40,700円、消火剤:6,600円 |
保険等 |
要 |
| 維持費等 |
- |
| 間取り |
ワンルーム |
専有面積 |
25.40m² |
| 築年月 |
2025年11月
|
階建 / 階 |
地上5階地下1階建 / 1階 |
| 建物構造 |
RC |
総戸数 |
- |
| 主要採光面 |
南 |
駐車場 |
無 |
| バイク置き場 |
無 |
駐輪場 |
無 |
| 建物名・部屋番号 |
ラフィネ調布 201 |
ペット |
-
|
| リフォーム履歴 |
- |
| リノベーション履歴 |
- |
| 備考 |
賃貸保証等:加入要(Casa 初回賃料等の50%、月1600円、口座振替330円/月。)
管理形態/管理員の勤務形態:-/-
単身者限定、IT重説対応物件
クレジットカード払い対応物件もあります!
喫煙習慣のある入居者の場合、入居時に敷金1か月。 室内清掃費用 50000円
|
| エネルギー消費性能 |
- |
| 断熱性能 |
- |
| 目安光熱費 |
- |
| バス・トイレ |
バス・トイレ別、浴室乾燥機、洗面所独立、洗面所、シャワー、温水洗浄便座、トイレ |
| キッチン |
カウンターキッチン、システムキッチン、2口コンロ、ガスコンロ可 |
| セキュリティー |
モニター付オートロック、オートロック、モニター付インターホン、防犯カメラ |
| 収納 |
収納スペース、クローゼット、シューズボックス |
| 設備・サービス |
室内洗濯機置場、洗濯機置場、都市ガス給湯、給湯、フローリング、都市ガス、エアコン |
| TV・通信 |
インターネット対応、インターネット使用料無料 |
| その他 |
宅配BOX |
| 契約期間 |
2年 |
現況 |
完成済 |
| 条件等 |
- |
入居可能時期 |
即時 |
| 更新料 |
新賃料 1ヶ月 |
物件番号 |
1066966197 |
| 情報公開日 |
2025年12月7日 |
次回更新予定日 |
2025年12月21日 |
| ケータイ用バーコード |
- スマートフォンでこの物件を見る
- スマートフォンからもこの物件をご覧になれます。
|
※「-」と表示されている項目については、情報提供会社にご確認ください。
| 周辺施設 |
電気通信大学 |
| 距離 |
1182m |
写真を見る |
| 周辺施設 |
桐朋学園大学調布キャンパス |
| 距離 |
1456m |
写真を見る |
| 周辺施設 |
くら寿司 調布駅前店 |
| 距離 |
969m |
写真を見る |
| 周辺施設 |
ジョナサン 調布駅前店 |
| 距離 |
738m |
写真を見る |
| 周辺施設 |
デニーズ 調布店 |
| 距離 |
1221m |
写真を見る |
| 周辺施設 |
キッチンオリジン 国領駅前店 |
| 距離 |
768m |
写真を見る |
| 周辺施設 |
上布田公園 |
| 距離 |
1010m |
写真を見る |
| 周辺施設 |
西友 国領店 |
| 距離 |
793m |
写真を見る |
ここから簡単にお問い合わせをすることができます。
(SSLでの暗号化での送信を希望されるお客さまは
こちら
よりお問い合わせください)
お問い合わせを行う前に
「個人情報の取り扱いについて」を必ずお読みください。
「個人情報の取り扱いについて」に同意いただいた場合は「上記にご同意の上 確認画面へ進む」のボタンをクリックしてください。
個人情報の取り扱いについて
皆さまが送付された個人情報はアットホーム(株)のサーバを経由し、お問い合わせ先の不動産会社にメールまたはFAXにて転送されるためアットホーム(株)にも保管されます。アットホーム(株)で保管された個人情報の取り扱いについては、【こちら】をご覧ください。
また、本画面でご記入いただいた個人情報は、お問い合わせ先の不動産会社でも保管します。 お問い合わせ先の不動産会社が保管する個人情報の取り扱いについては、不動産会社に直接お問い合わせください。
東京都知事免許(1)第108225号 |
|---|
- 交通:
- 京王線/調布駅 徒歩2分
- 東京都調布市布田4丁目17-10 セントラルレジデンス調布1F
- TEL:
- 0800-170-0832
- FAX:
- 042-443-8252
- 所属団体:
- (公財)日本賃貸住宅管理協会会員(公社)首都圏不動産公正取引協議会加盟
取引態様:仲介  - 00511802
|
- スマートフォンで
この不動産会社を見る

|
- 提携サイト等より掲載されている物件情報につきましては、不動産会社詳細情報にリンクされていないものがあります。
- 物件に関するお問合せは、物件詳細ページの「情報提供会社」に表示されている不動産会社へ直接お願いいたします。
- 間取図は、現況を優先させていただきます。
- 映像は物件の一部を撮影したものです。物件の契約にあたっての最終判断はご自身の判断に基づいて行ってください。
- 仲介手数料について

アットホームは物件情報の適正化に努めております。
内容に誤りがある場合にはこちらへご連絡ください。