東京都新宿区東五軒町(江戸川橋駅)の賃貸:物件詳細
交通 所在地 |
駅徒歩 |
賃料 管理費等 |
敷金/保証金 礼金 |
間取り 面積 |
物件種目 築年月 |
|
東京メトロ有楽町線/江戸川橋
東京都新宿区東五軒町
|
8分
|
16.5万円
21,000円
|
1ヶ月 / なし
1ヶ月
|
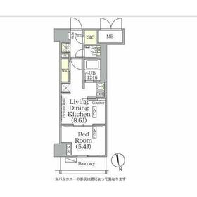
1LDK
34.92m²
|
賃貸マンション
2025年6月
|
ペット相談、常時ゴミ出し可能、IT重説対応物件
|
|
間取図
|
外観
|
<
その他の画像
>
|
| 交通 | 東京メトロ有楽町線 江戸川橋駅 徒歩8分 |
|---|
| その他の交通 | 東京メトロ東西線 神楽坂駅 徒歩12分 JR総武線 飯田橋駅 徒歩13分 |
| 所在地 |
東京都新宿区東五軒町
|
| 物件種目 |
賃貸マンション |
| 賃料 |
16.5万円 |
管理費等 |
21,000円 |
| 敷金 / 保証金 |
1ヶ月 / なし |
礼金 |
1ヶ月 |
| 敷引 |
- |
保証金償却 |
- |
| その他一時金 |
M-REALプレミアム会費:16,500円 |
保険等 |
要 2年 31,000円 |
| 維持費等 |
- |
| 間取り |
1LDK(洋5.4、LDK8.6) |
専有面積 |
34.92m² |
| 築年月 |
2025年6月
|
階建 / 階 |
10階建 / 1階 |
| 建物構造 |
RC |
総戸数 |
- |
| 主要採光面 |
北 |
駐車場 |
- |
| バイク置き場 |
- |
駐輪場 |
- |
| 建物名・部屋番号 |
ザ・パークハビオ神楽坂レジデンスSouth 114 |
ペット |
相談 |
| リフォーム履歴 |
- |
| リノベーション履歴 |
- |
| 備考 |
賃貸保証等:加入要(加入要 当社指定:初回保証料は賃料等の40%、月次保証料は賃料等の1%。その他保証会社条件有)
管理形態/管理員の勤務形態:-/-
IT重説対応物件
クレジットカード払い対応物件もあります!
退去時清掃実費、大手法人保証会社不要(敷金1ヶ月増)、ペットSOHO敷金1ヶ月増、駐車場は要問合せ
|
| エネルギー消費性能 |
- |
| 断熱性能 |
- |
| 目安光熱費 |
- |
| バス・トイレ |
バス・トイレ別、浴室乾燥機、追焚機能、シャワー付洗面化粧台、洗面所独立、洗面所、洗面台、温水洗浄便座、トイレ |
| キッチン |
システムキッチン |
| セキュリティー |
モニター付オートロック、オートロック、モニター付インターホン、防犯カメラ |
| 収納 |
収納スペース、クローゼット、シューズボックス |
| 設備・サービス |
室内洗濯機置場、洗濯機置場、全居室フローリング、フローリング、都市ガス、エアコン、冷房 |
| TV・通信 |
インターネット対応、インターネット使用料無料、BS端子 |
| その他 |
宅配BOX、バルコニー、エレベーター |
| 契約期間 |
2年 |
現況 |
完成済 |
| 条件等 |
- |
入居可能時期 |
即時 |
| 更新料 |
新賃料 1ヶ月 |
物件番号 |
1067879497 |
| 情報公開日 |
2025年10月11日 |
次回更新予定日 |
2025年11月8日 |
| ケータイ用バーコード |
- スマートフォンでこの物件を見る
- スマートフォンからもこの物件をご覧になれます。
|
※「-」と表示されている項目については、情報提供会社にご確認ください。
| 周辺施設 |
ローソン江戸川橋駅前店 |
| 距離 |
660m |
写真を見る |
| 周辺施設 |
まいばすけっと 牛込柳町駅東店 |
| 距離 |
1899m |
写真を見る |
| 周辺施設 |
スーパーマーケット リコス 関口1丁目 |
| 距離 |
1534m |
写真を見る |
| 周辺施設 |
ファミリーマート 新宿山吹町店 |
| 距離 |
1337m |
写真を見る |
| 周辺施設 |
HIGH FIVE SALAD 早稲田店 |
| 距離 |
1611m |
写真を見る |
| 周辺施設 |
文京区立江戸川公園 |
| 距離 |
1193m |
写真を見る |
ここから簡単にお問い合わせをすることができます。
(SSLでの暗号化での送信を希望されるお客さまは
こちら
よりお問い合わせください)
お問い合わせを行う前に
「個人情報の取り扱いについて」を必ずお読みください。
「個人情報の取り扱いについて」に同意いただいた場合は「上記にご同意の上 確認画面へ進む」のボタンをクリックしてください。
個人情報の取り扱いについて
皆さまが送付された個人情報はアットホーム(株)のサーバを経由し、お問い合わせ先の不動産会社にメールまたはFAXにて転送されるためアットホーム(株)にも保管されます。アットホーム(株)で保管された個人情報の取り扱いについては、【こちら】をご覧ください。
また、本画面でご記入いただいた個人情報は、お問い合わせ先の不動産会社でも保管します。 お問い合わせ先の不動産会社が保管する個人情報の取り扱いについては、不動産会社に直接お問い合わせください。
東京都知事免許(1)第108283号 |
|---|
- 交通:
- JR山手線/池袋駅 徒歩2分
- 東京都豊島区西池袋1丁目19-6 松長ビル2F
- TEL:
- 0800-170-0754
- FAX:
- 03-5979-8457
- 所属団体:
- (公財)日本賃貸住宅管理協会会員(公社)首都圏不動産公正取引協議会加盟
取引態様:仲介  - 00016971
|
- スマートフォンで
この不動産会社を見る

|
- 提携サイト等より掲載されている物件情報につきましては、不動産会社詳細情報にリンクされていないものがあります。
- 物件に関するお問合せは、物件詳細ページの「情報提供会社」に表示されている不動産会社へ直接お願いいたします。
- 間取図は、現況を優先させていただきます。
- 映像は物件の一部を撮影したものです。物件の契約にあたっての最終判断はご自身の判断に基づいて行ってください。
- 仲介手数料について

アットホームは物件情報の適正化に努めております。
内容に誤りがある場合にはこちらへご連絡ください。