千葉県千葉市花見川区幕張町6丁目(幕張駅)の賃貸:物件詳細
交通 所在地 |
駅徒歩 |
賃料 管理費等 |
敷金/保証金 礼金 |
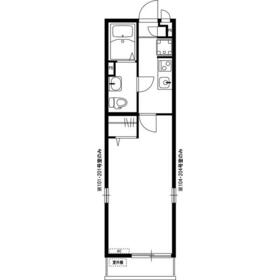
間取り 面積 |
物件種目 築年月 |
JR総武線/幕張
千葉県千葉市花見川区幕張町6丁目
|
5分
|
6.3万円
4,000円
|
なし / なし
なし
|
1K
24.84m²
|
賃貸アパート
2013年3月(築12年8ヶ月)
|
角部屋
|
間取図
|
外観
|
<
その他の画像
>
|
交通 | JR総武線 幕張駅 徒歩5分 |
---|
その他の交通 | 京成千葉線 京成幕張駅 徒歩9分 京成千葉線 検見川駅 徒歩16分 |
所在地 |
千葉県千葉市花見川区幕張町6丁目
|
物件種目 |
賃貸アパート |
賃料 |
6.3万円 |
管理費等 |
4,000円 |
敷金 / 保証金 |
なし / なし |
礼金 |
なし |
敷引 |
- |
保証金償却 |
- |
その他一時金 |
鍵交換代:24,200円、室内消毒代:16,500円、クリーニング代:36,300円 |
保険等 |
要 2年 19,000円 |
維持費等 |
- |
間取り |
1K(洋室8.2) |
専有面積 |
24.84m² |
築年月 |
2013年3月(築12年8ヶ月)
|
階建 / 階 |
2階建 / 1階 |
建物構造 |
木造 |
総戸数 |
- |
主要採光面 |
|
駐車場 |
無 |
バイク置き場 |
- |
駐輪場 |
- |
建物名・部屋番号 |
リブリ・JOY MAKUHARI 101 |
ペット |
-
|
リフォーム履歴 |
- |
リノベーション履歴 |
- |
備考 |
賃貸保証等:加入要(100%)
管理形態/管理員の勤務形態:-/-
☆学生さんにオススメ部物件☆敷金礼金0☆セコム完備☆人気の都市ガス
|
エネルギー消費性能 |
- |
断熱性能 |
- |
目安光熱費 |
- |
バス・トイレ |
バス・トイレ別、浴室乾燥機、洗面台、シャワー、温水洗浄便座、トイレ |
キッチン |
システムキッチン、2口コンロ、電気コンロ |
セキュリティー |
モニター付インターホン |
収納 |
クローゼット、シューズボックス |
設備・サービス |
室内洗濯機置場、給湯、フローリング、都市ガス、エアコン |
TV・通信 |
インターネット対応、CS、BS端子 |
その他 |
バルコニー |
契約期間 |
2年 |
現況 |
空家 |
条件等 |
定期借家 |
入居可能時期 |
相談 |
仲介手数料 |
1.1ヶ月 |
|
|
更新料 |
新賃料 1ヶ月 |
物件番号 |
1068277318 |
情報公開日 |
2025年10月13日 |
次回更新予定日 |
2025年10月27日 |
ケータイ用バーコード |
- スマートフォンでこの物件を見る
- スマートフォンからもこの物件をご覧になれます。
|
※「-」と表示されている項目については、情報提供会社にご確認ください。
周辺施設 |
スーパーマーケット三徳幕張店 |
距離 |
482m |
写真を見る |
周辺施設 |
ローソン・スリーエフ幕張駅北口店 |
距離 |
436m |
写真を見る |
周辺施設 |
ウエルシア千葉武石店 |
距離 |
695m |
写真を見る |
周辺施設 |
千葉市立幕張中学校 |
距離 |
858m |
写真を見る |
周辺施設 |
千葉市立幕張小学校 |
距離 |
1121m |
写真を見る |
周辺施設 |
幕張北口郵便局 |
距離 |
418m |
写真を見る |
周辺施設 |
千葉市花見川区役所 |
距離 |
1266m |
写真を見る |
周辺施設 |
ツルハドラッグ幕張店 |
距離 |
1042m |
写真を見る |
ここから簡単にお問い合わせをすることができます。
(SSLでの暗号化での送信を希望されるお客さまは
こちら
よりお問い合わせください)
お問い合わせを行う前に
「個人情報の取り扱いについて」を必ずお読みください。
「個人情報の取り扱いについて」に同意いただいた場合は「上記にご同意の上 確認画面へ進む」のボタンをクリックしてください。
個人情報の取り扱いについて
皆さまが送付された個人情報はアットホーム(株)のサーバを経由し、お問い合わせ先の不動産会社にメールまたはFAXにて転送されるためアットホーム(株)にも保管されます。アットホーム(株)で保管された個人情報の取り扱いについては、【こちら】をご覧ください。
また、本画面でご記入いただいた個人情報は、お問い合わせ先の不動産会社でも保管します。 お問い合わせ先の不動産会社が保管する個人情報の取り扱いについては、不動産会社に直接お問い合わせください。
千葉県知事免許(7)第12636号 |
---|
- 交通:
- JR総武線/幕張駅
- 千葉県千葉市花見川区幕張町5丁目150-14
- TEL:
- 0120-723-371
- FAX:
- 043-272-0031
- 所属団体:
- (公社)全日本不動産協会会員(公社)首都圏不動産公正取引協議会加盟
取引態様:仲介  - 99000552
|
- スマートフォンで
この不動産会社を見る

|
- 提携サイト等より掲載されている物件情報につきましては、不動産会社詳細情報にリンクされていないものがあります。
- 物件に関するお問合せは、物件詳細ページの「情報提供会社」に表示されている不動産会社へ直接お願いいたします。
- 間取図は、現況を優先させていただきます。
- 映像は物件の一部を撮影したものです。物件の契約にあたっての最終判断はご自身の判断に基づいて行ってください。
- 仲介手数料について

アットホームは物件情報の適正化に努めております。
内容に誤りがある場合にはこちらへご連絡ください。