千葉県千葉市中央区弁天1丁目(千葉駅)の賃貸:物件詳細
交通 所在地 |
駅徒歩 |
賃料 管理費等 |
敷金/保証金 礼金 |
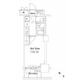
間取り 面積 |
物件種目 築年月 |
|
JR総武線/千葉
千葉県千葉市中央区弁天1丁目
|
5分
|
7.4万円
6,000円
|
1ヶ月 / なし
1ヶ月
|
1K
24.36m²
|
賃貸マンション
2009年3月(築16年8ヶ月)
|
最上階、保証人不要
|
|
間取図
|
外観
|
<
その他の画像
>
|
| 交通 | JR総武線 千葉駅 徒歩5分 |
|---|
| その他の交通 | 京成千葉線 新千葉駅 徒歩8分 千葉都市モノレール 千葉駅 徒歩6分 |
| 所在地 |
千葉県千葉市中央区弁天1丁目
|
| 物件種目 |
賃貸マンション |
| 賃料 |
7.4万円 |
管理費等 |
6,000円 |
| 敷金 / 保証金 |
1ヶ月 / なし |
礼金 |
1ヶ月 |
| 敷引 |
- |
保証金償却 |
- |
| その他一時金 |
鍵交換費用:16,500円 |
保険等 |
要 2年 |
| 維持費等 |
賃料等決算手数料:300円/月 |
| 間取り |
1K(洋室8.1畳) |
専有面積 |
24.36m² |
| 築年月 |
2009年3月(築16年8ヶ月)
|
階建 / 階 |
14階建 / 14階 |
| 建物構造 |
RC |
総戸数 |
- |
| 主要採光面 |
北東 |
駐車場 |
有 20,900円/月 |
| バイク置き場 |
有 |
駐輪場 |
有 |
| 建物名・部屋番号 |
パークアクシス千葉 1402 |
ペット |
-
|
| リフォーム履歴 |
- |
| リノベーション履歴 |
- |
| 備考 |
賃貸保証等:加入要(初回保証契約金:賃料+共益費の0.5ヶ月分更新保証料:1万円/年)
管理形態/管理員の勤務形態:-/巡回
管理人巡回
|
| エネルギー消費性能 |
- |
| 断熱性能 |
- |
| 目安光熱費 |
- |
| バス・トイレ |
バス・トイレ別、浴室暖房、浴室乾燥機、トイレ |
| キッチン |
システムキッチン、2口コンロ、ガスコンロ可 |
| セキュリティー |
モニター付オートロック、オートロック、モニター付インターホン |
| 収納 |
クローゼット |
| 設備・サービス |
室内洗濯機置場、都市ガス、エアコン |
| TV・通信 |
ケーブルTV、CS、BS端子 |
| その他 |
宅配BOX、バイク置き場、バルコニー、駐輪場、エレベーター |
| 契約期間 |
2年 |
現況 |
居住中 |
| 条件等 |
- |
入居可能時期 |
相談 |
| 更新料 |
新賃料 1ヶ月 |
物件番号 |
1070182548 |
| 情報公開日 |
2025年8月29日 |
次回更新予定日 |
2025年11月4日 |
| ケータイ用バーコード |
- スマートフォンでこの物件を見る
- スマートフォンからもこの物件をご覧になれます。
|
※「-」と表示されている項目については、情報提供会社にご確認ください。
| 周辺施設 |
ファミリーマート 千葉駅北口店 |
| 距離 |
173m |
写真を見る |
ここから簡単にお問い合わせをすることができます。
(SSLでの暗号化での送信を希望されるお客さまは
こちら
よりお問い合わせください)
お問い合わせを行う前に
「個人情報の取り扱いについて」を必ずお読みください。
「個人情報の取り扱いについて」に同意いただいた場合は「上記にご同意の上 確認画面へ進む」のボタンをクリックしてください。
個人情報の取り扱いについて
皆さまが送付された個人情報はアットホーム(株)のサーバを経由し、お問い合わせ先の不動産会社にメールまたはFAXにて転送されるためアットホーム(株)にも保管されます。アットホーム(株)で保管された個人情報の取り扱いについては、【こちら】をご覧ください。
また、本画面でご記入いただいた個人情報は、お問い合わせ先の不動産会社でも保管します。 お問い合わせ先の不動産会社が保管する個人情報の取り扱いについては、不動産会社に直接お問い合わせください。
国土交通大臣免許(7)第5235号 |
|---|
- 交通:
- JR山手線/田町駅 徒歩8分
- 東京都港区芝浦2丁目7-11 パークタワー芝浦ベイワードオーシャンウィング1F
- TEL:
- 03-3456-5980
- FAX:
- 03-3456-5981
- 所属団体:
- (公社)全日本不動産協会会員不動産公正取引協議会加盟
取引態様:仲介  - 00611938
|
- スマートフォンで
この不動産会社を見る

|
- 提携サイト等より掲載されている物件情報につきましては、不動産会社詳細情報にリンクされていないものがあります。
- 物件に関するお問合せは、物件詳細ページの「情報提供会社」に表示されている不動産会社へ直接お願いいたします。
- 間取図は、現況を優先させていただきます。
- 映像は物件の一部を撮影したものです。物件の契約にあたっての最終判断はご自身の判断に基づいて行ってください。
- 仲介手数料について

アットホームは物件情報の適正化に努めております。
内容に誤りがある場合にはこちらへご連絡ください。