東京都足立区西新井本町2丁目(江北駅)の賃貸:物件詳細
交通 所在地 |
駅徒歩 |
賃料 管理費等 |
敷金/保証金 礼金 |
間取り 面積 |
物件種目 築年月 |
|
日暮里舎人ライナー/江北
東京都足立区西新井本町2丁目
|
7分
|
13.8万円
10,000円
|
13.8万円 / なし
13.8万円
|
2LDK
55.00m²
|
賃貸マンション
2016年10月(築9年3ヶ月)
|
分譲タイプ、角部屋、外観タイル張り
|
|
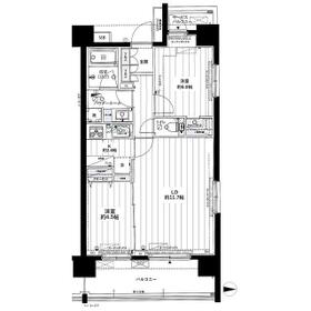
間取図
|
|
その他の画像
|
| 交通 | 日暮里舎人ライナー 江北駅 徒歩7分 |
|---|
| その他の交通 | 東武伊勢崎線 大師前駅 徒歩11分 |
| 所在地 |
東京都足立区西新井本町2丁目
|
| 物件種目 |
賃貸マンション |
| 賃料 |
13.8万円 |
管理費等 |
10,000円 |
| 敷金 / 保証金 |
13.8万円 / なし |
礼金 |
13.8万円 |
| 敷引 |
- |
保証金償却 |
- |
| その他一時金 |
カギ交換代:22,000円 |
保険等 |
要 850円 |
| 維持費等 |
24時間安心サポート:880円/月、住宅総合保険料:850円/月 |
| 間取り |
2LDK(LD11.7 K2.6 洋4.5 洋6) |
専有面積 |
55.00m² |
| 築年月 |
2016年10月(築9年3ヶ月)
|
階建 / 階 |
11階建 / 2階 |
| 建物構造 |
RC |
総戸数 |
40戸 |
| 主要採光面 |
東 |
駐車場 |
無 |
| バイク置き場 |
- |
駐輪場 |
- |
| 建物名・部屋番号 |
203 |
ペット |
-
|
| リフォーム履歴 |
- |
| リノベーション履歴 |
- |
| 備考 |
賃貸保証等:加入要(㈱オリコフォレントインシュア 初回賃料等総額の50% 更新料年1万円)
管理形態/管理員の勤務形態:-/-
バルコニー:12.55m²
「江北駅」徒歩7分の分譲マンション。追焚付オートバスや浴室換気扇等基本設備の整ったお部屋です。
☆都市ガス☆☆24Hセキュリティー☆
|
| エネルギー消費性能 |
- |
| 断熱性能 |
- |
| 目安光熱費 |
- |
| バス・トイレ |
バス・トイレ別、浴室乾燥機、追焚機能、洗面所、温水洗浄便座 |
| キッチン |
システムキッチン、ガスコンロ付 |
| セキュリティー |
オートロック、モニター付インターホン、防犯カメラ |
| 収納 |
収納スペース、シューズボックス |
| 設備・サービス |
洗濯機置場、給湯、フローリング、エアコン |
| TV・通信 |
- |
| その他 |
宅配BOX、バルコニー、エレベーター |
| 契約期間 |
2年 |
現況 |
空家 |
| 条件等 |
- |
入居可能時期 |
相談 |
| 仲介手数料 |
15.18万円 |
|
|
| 更新料 |
- |
物件番号 |
1070303988 |
| 情報公開日 |
2025年12月14日 |
次回更新予定日 |
2025年12月28日 |
| ケータイ用バーコード |
- スマートフォンでこの物件を見る
- スマートフォンからもこの物件をご覧になれます。
|
※「-」と表示されている項目については、情報提供会社にご確認ください。
| 周辺施設 |
興本扇学園足立区立興本小学校 |
| 距離 |
604m |
ここから簡単にお問い合わせをすることができます。
(SSLでの暗号化での送信を希望されるお客さまは
こちら
よりお問い合わせください)
お問い合わせを行う前に
「個人情報の取り扱いについて」を必ずお読みください。
「個人情報の取り扱いについて」に同意いただいた場合は「上記にご同意の上 確認画面へ進む」のボタンをクリックしてください。
個人情報の取り扱いについて
皆さまが送付された個人情報はアットホーム(株)のサーバを経由し、お問い合わせ先の不動産会社にメールまたはFAXにて転送されるためアットホーム(株)にも保管されます。アットホーム(株)で保管された個人情報の取り扱いについては、【こちら】をご覧ください。
また、本画面でご記入いただいた個人情報は、お問い合わせ先の不動産会社でも保管します。 お問い合わせ先の不動産会社が保管する個人情報の取り扱いについては、不動産会社に直接お問い合わせください。
東京都知事免許(7)第71467号 |
|---|
- 交通:
- JR総武線/大久保駅 徒歩6分
- 東京都新宿区西新宿7丁目22-35 西新宿三晃ビル3F
- TEL:
- 03-3367-6133
- FAX:
- 03-3367-6233
- 所属団体:
- (公社)全日本不動産協会会員(公社)首都圏不動産公正取引協議会加盟
取引態様:仲介  - 00311616
|
- スマートフォンで
この不動産会社を見る

|
- 提携サイト等より掲載されている物件情報につきましては、不動産会社詳細情報にリンクされていないものがあります。
- 物件に関するお問合せは、物件詳細ページの「情報提供会社」に表示されている不動産会社へ直接お願いいたします。
- 間取図は、現況を優先させていただきます。
- 映像は物件の一部を撮影したものです。物件の契約にあたっての最終判断はご自身の判断に基づいて行ってください。
- 仲介手数料について

アットホームは物件情報の適正化に努めております。
内容に誤りがある場合にはこちらへご連絡ください。