不動産 賃貸 マンション等の住宅情報:埼玉住まい情報


埼玉県羽生市大字羽生(羽生駅)の賃貸:物件詳細

  • 物件詳細
  • 情報の見方
  • 印刷用画面
交通
所在地
駅徒歩 賃料
管理費等
敷金/保証金
礼金
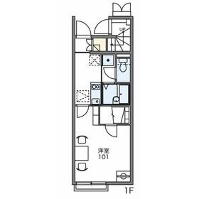
間取り
面積
物件種目
築年月

東武伊勢崎線/羽生

埼玉県羽生市大字羽生

15分

5.7万円

5,000円

なし / なし

1ヶ月

1K

23.61m²

賃貸アパート

2009年4月(築16年7ヶ月)

おすすめPOINT角部屋、高齢者相談、ルームシェア可、二人入居可、閑静な住宅街、IT重説対応物件、保証人不要

おすすめコメント  スタッフ: 金子 直樹

★家具家電付き物件★羽生駅徒歩圏内★2駅利用可★モニター付きインターホン・バストイレ別・浴室乾燥機・エアコンなど設備充実★

間取図

間取図

間取図

外観

外観

外観

<
その他の画像
  • リビング
  • 玄関
  • 室内
  • 室内
  • 洗面
  • トイレ
  • キッチン
  • エントランス
  • その他
  • 共有部分
  • 駐車場
  • 収納
  • バス/シャワー
  • ショッピング施設
  • ショッピング施設
  • ショッピング施設
  • ショッピング施設
>
    • とりあえず保存
    • お問い合わせ
    交通

    東武伊勢崎線 羽生駅 徒歩15分

    その他の交通

    秩父鉄道 西羽生駅 徒歩10分

    JR高崎線 熊谷駅 徒歩15700m

    所在地 埼玉県羽生市大字羽生
    物件種目 賃貸アパート
    賃料 5.7万円 管理費等 5,000円
    敷金 / 保証金 なし / なし 礼金 1ヶ月
    敷引 保証金償却
    その他一時金 室内清掃費用:41,800円、鍵交換代等:16,500円~ 保険等 要 2年 19,890円
    維持費等 環境維持費:550円/月 クレジットカード決済 初期費用可
    間取り 1K 専有面積 23.61m²
    築年月 2009年4月(築16年7ヶ月) 階建 / 階 2階建 / 1階
    建物構造 木造 総戸数 18戸
    主要採光面 南東 駐車場 有 7,150円/月
    バイク置き場 駐輪場 有 無料
    建物名・部屋番号 レオネクストショコラ 109 ペット
    アピールポイント ★お客様にぴったりなお部屋が見つかるように精一杯頑張りますのでよろしくお願いいたします!
    リフォーム履歴
    リノベーション履歴
    備考
    賃貸保証等:加入要(保証人代行会社 プラザ賃貸管理保証賃貸保証料 100%保証人代行詳細 初回保証料月額総支払額の100%or120%年間保証料1万円)
    管理形態/管理員の勤務形態:-/-
    IT重説対応物件
    ★お部屋探しはタウンハウジング熊谷店へ★★元気なスタッフが対応します!
    エネルギー消費性能
    断熱性能
    目安光熱費
    バス・トイレ バス・トイレ別、浴室暖房、浴室乾燥機、洗面所、洗面台、シャワー、温水洗浄便座、トイレ
    キッチン システムキッチン、独立型キッチン、IHクッキングヒーター、2口コンロ
    セキュリティー モニター付インターホン
    収納 全居室収納、収納スペース、シューズボックス
    設備・サービス 全居室エアコン、室内洗濯機置場、冷蔵庫、給湯、フローリング、クッションフロア、エアコン、家具付き、家電付、照明器具
    TV・通信 インターネット対応
    その他 駐輪場
    契約期間 2年 現況 空家
    条件等 入居可能時期 即時
    更新料 16,500円 物件番号 1071622572
    情報公開日 2025年9月25日 次回更新予定日 2025年11月7日
    ケータイ用バーコード

    QRコード

    スマートフォンでこの物件を見る
    スマートフォンからもこの物件をご覧になれます。
    ※「-」と表示されている項目については、情報提供会社にご確認ください。

    この物件の周辺情報

    周辺施設 イオンモール羽生
    距離 4780m
    周辺施設 KENZOウエスト
    距離 990m
    周辺施設 ドラッグセイムス 羽生店
    距離 830m
    周辺施設 D2ケーヨーデイツー 羽生駅前店
    距離 1160m

    クイックお問い合わせ

    ここから簡単にお問い合わせをすることができます。
    (SSLでの暗号化での送信を希望されるお客さまは こちら よりお問い合わせください)

    お問い合わせ内容(必須)
    お名前(必須) 姓  名 
    メールアドレス(必須)
    ※携帯電話のメールアドレスをご入力される方はこちらをご確認ください
    電話番号(必須)
    - -

    ※入力いただいた電話番号へSMSまたは音声でパスワードをご連絡します。

    携帯電話の番号をご入力の方へ

    携帯電話の番号をご入力の方へ
    確認画面にて送信ボタンをクリックするとSMSが携帯電話に届きます。
    そのSMSに記載のパスワード(認証番号)を入力し、お問い合わせを完了してください。
    尚、SMSの送信者番号は 0005 202 760 となります。
    これはアットホームの固定番号です。

    備考欄 希望条件、物件案内希望日、質問などがございましたらご記入ください。
    お問い合わせを行う前に「個人情報の取り扱いについて」を必ずお読みください。
    「個人情報の取り扱いについて」に同意いただいた場合は「上記にご同意の上 確認画面へ進む」のボタンをクリックしてください。

    個人情報の取り扱いについて

    皆さまが送付された個人情報はアットホーム(株)のサーバを経由し、お問い合わせ先の不動産会社にメールまたはFAXにて転送されるためアットホーム(株)にも保管されます。アットホーム(株)で保管された個人情報の取り扱いについては、【こちら】をご覧ください。
    また、本画面でご記入いただいた個人情報は、お問い合わせ先の不動産会社でも保管します。 お問い合わせ先の不動産会社が保管する個人情報の取り扱いについては、不動産会社に直接お問い合わせください。

    情報提供会社

    情報提供会社

    (株)タウンハウジング埼玉 熊谷店

    国土交通大臣免許(1)第9925号

    交通:
    JR高崎線/熊谷駅 徒歩2分
    埼玉県熊谷市筑波2丁目57 うさぎや筑波ビル
    TEL:
    048-525-2005
    FAX:
    048-525-2006

    取引態様:仲介

    • 会社情報
    • 00270945
    スマートフォンで
    この不動産会社を見る
    QRコード
    • とりあえず保存
    • お問い合わせ
    • 提携サイト等より掲載されている物件情報につきましては、不動産会社詳細情報にリンクされていないものがあります。
    • 物件に関するお問合せは、物件詳細ページの「情報提供会社」に表示されている不動産会社へ直接お願いいたします。
    • 間取図は、現況を優先させていただきます。
    • 映像は物件の一部を撮影したものです。物件の契約にあたっての最終判断はご自身の判断に基づいて行ってください。
    • 仲介手数料について仲介手数料

    アットホームは物件情報の適正化に努めております。 内容に誤りがある場合にはこちらへご連絡ください。

    【埼玉住まい情報】では、日本全国の物件から賃貸マンションや賃貸アパート・賃貸一戸建て等の賃貸住宅情報、新築マンション・分譲マンションや中古マンション等の売買マンション情報、新築一戸建てや中古一戸建てなどの戸建住宅、 土地など、総合的な不動産住宅情報検索サービスを提供致します。
    【埼玉住まい情報】から、選りすぐりの不動産物件を探してみましょう。

    【免責事項】
    このコーナーの運営はアットホーム株式会社(https://www.athome.co.jp/)が行っています。
    このコーナーに掲載している物件情報は、「アットホーム不動産情報ネットワーク」に加盟する不動産会社等(情報提供元)から提供されています。信頼性の高い情報提供が行えるよう、最大限の努力をしておりますが、その内容を保証するものではありません。 利用者のみなさまと各情報提供元との取引に起因する損害および情報が掲載されたことに起因する損害等については、株式会社イーシティ埼玉、およびアットホームは一切責任を負いません。
    各物件情報の内容や画像等はすべて現況を優先させていただきます。
    お取引等(お取引の準備、資金調達等を含みます)の際には、内容や契約条件等について、各情報提供元より十分な説明を受け、ご自身でご確認の上、判断してください。
    このコーナーへの物件情報のご掲載、その他不動産業務ソリューション等についての不動産会社様のお問合せはこちらからお願いいたします。

    物件画像: