東京都葛飾区東金町6丁目(金町駅)の賃貸:物件詳細
交通 所在地 |
駅徒歩 |
賃料 管理費等 |
敷金/保証金 礼金 |
間取り 面積 |
物件種目 築年月 |
|
JR千代田・常磐緩行線/金町
東京都葛飾区東金町6丁目
|
10分
|
6.4万円
4,000円
|
なし / なし
1ヶ月
|
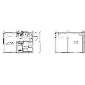
ワンルーム
13.17m²
|
賃貸アパート
2026年1月
|
IT重説対応物件
|
|
間取図
|
外観
|
その他の画像
|
| 交通 | JR千代田・常磐緩行線 金町駅 徒歩10分 |
|---|
| その他の交通 | 京成金町線 京成金町駅 徒歩10分 |
| 所在地 |
東京都葛飾区東金町6丁目
|
| 物件種目 |
賃貸アパート |
| 賃料 |
6.4万円 |
管理費等 |
4,000円 |
| 敷金 / 保証金 |
なし / なし |
礼金 |
1ヶ月 |
| 敷引 |
- |
保証金償却 |
- |
| その他一時金 |
インターネット開通費:16,500円、24時間サポート:19,800円、除菌消臭費:19,800円 |
保険等 |
要 2年 20,000円 |
| 維持費等 |
町会費:300円/月 |
| 間取り |
ワンルーム |
専有面積 |
13.17m² |
| 築年月 |
2026年1月
|
階建 / 階 |
2階建 / 1階 |
| 建物構造 |
木造 |
総戸数 |
- |
| 主要採光面 |
南西 |
駐車場 |
無 |
| バイク置き場 |
無 |
駐輪場 |
- |
| 建物名・部屋番号 |
金町BASE 102 |
ペット |
-
|
| リフォーム履歴 |
- |
| リノベーション履歴 |
- |
| 備考 |
賃貸保証等:加入要(初回保証料:30%~50%)
管理形態/管理員の勤務形態:-/-
IT重説対応物件
クレジットカード払い対応物件もあります!
短期解約違約金有 エアコンクリーニング費13200円 室内清掃費用 38500円
|
| エネルギー消費性能 |
- |
| 断熱性能 |
- |
| 目安光熱費 |
- |
| バス・トイレ |
バス・トイレ別、シャワー付洗面化粧台、洗面所独立、洗面所、洗面台、シャワー、温水洗浄便座、トイレ |
| キッチン |
ガスコンロ可 |
| セキュリティー |
モニター付インターホン、防犯カメラ |
| 収納 |
収納スペース、シューズボックス |
| 設備・サービス |
室内洗濯機置場、洗濯機置場、ロフト、プロパンガス給湯、給湯、フローリング、プロパンガス、エアコン |
| TV・通信 |
インターネット対応、インターネット使用料無料 |
| その他 |
宅配BOX |
| 契約期間 |
2年 |
現況 |
未完成 |
| 条件等 |
- |
入居可能時期 |
2026年1月中旬予定 |
| 更新料 |
新賃料 1ヶ月 |
物件番号 |
1074771697 |
| 情報公開日 |
2025年12月13日 |
次回更新予定日 |
2025年12月27日 |
| ケータイ用バーコード |
- スマートフォンでこの物件を見る
- スマートフォンからもこの物件をご覧になれます。
|
※「-」と表示されている項目については、情報提供会社にご確認ください。
| 周辺施設 |
長門小学校 |
| 距離 |
3115m |
写真を見る |
| 周辺施設 |
末広小学校 |
| 距離 |
1327m |
写真を見る |
| 周辺施設 |
高州東小学校 |
| 距離 |
2340m |
写真を見る |
| 周辺施設 |
葛飾区立常盤中学校 |
| 距離 |
1279m |
写真を見る |
| 周辺施設 |
東京理科大学 葛飾キャンパス |
| 距離 |
1440m |
写真を見る |
ここから簡単にお問い合わせをすることができます。
(SSLでの暗号化での送信を希望されるお客さまは
こちら
よりお問い合わせください)
お問い合わせを行う前に
「個人情報の取り扱いについて」を必ずお読みください。
「個人情報の取り扱いについて」に同意いただいた場合は「上記にご同意の上 確認画面へ進む」のボタンをクリックしてください。
個人情報の取り扱いについて
皆さまが送付された個人情報はアットホーム(株)のサーバを経由し、お問い合わせ先の不動産会社にメールまたはFAXにて転送されるためアットホーム(株)にも保管されます。アットホーム(株)で保管された個人情報の取り扱いについては、【こちら】をご覧ください。
また、本画面でご記入いただいた個人情報は、お問い合わせ先の不動産会社でも保管します。 お問い合わせ先の不動産会社が保管する個人情報の取り扱いについては、不動産会社に直接お問い合わせください。
千葉県知事免許(1)第18235号 |
|---|
- 交通:
- JR常磐線/松戸駅 徒歩1分
- 千葉県松戸市本町2-3 平野第1ビル3F
- TEL:
- 0800-170-0379
- FAX:
- 047-331-1312
- 所属団体:
- (公財)日本賃貸住宅管理協会会員(公社)首都圏不動産公正取引協議会加盟
取引態様:仲介  - 00511336
|
- スマートフォンで
この不動産会社を見る

|
- 提携サイト等より掲載されている物件情報につきましては、不動産会社詳細情報にリンクされていないものがあります。
- 物件に関するお問合せは、物件詳細ページの「情報提供会社」に表示されている不動産会社へ直接お願いいたします。
- 間取図は、現況を優先させていただきます。
- 映像は物件の一部を撮影したものです。物件の契約にあたっての最終判断はご自身の判断に基づいて行ってください。
- 仲介手数料について

アットホームは物件情報の適正化に努めております。
内容に誤りがある場合にはこちらへご連絡ください。