神奈川県川崎市川崎区川中島1丁目(川崎大師駅)の賃貸:物件詳細
交通 所在地 |
駅徒歩 |
賃料 管理費等 |
敷金/保証金 礼金 |
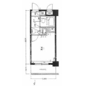
間取り 面積 |
物件種目 築年月 |
|
京急大師線/川崎大師
神奈川県川崎市川崎区川中島1丁目
|
9分
|
5.2万円
6,000円
|
1ヶ月 / なし
なし
|
1K
19.65m²
|
賃貸マンション
1988年3月(築37年10ヶ月)
|
ペット相談、分譲タイプ、最上階、IT重説対応物件
|
| 交通 | 京急大師線 川崎大師駅 徒歩9分 |
|---|
| その他の交通 | JR京浜東北線 川崎駅 【バス】 3分 観音2丁目大師口 停歩10分 京急本線 京急川崎駅 【バス】 3分 観音2丁目大師口 停歩10分 |
| 所在地 |
神奈川県川崎市川崎区川中島1丁目
|
| 物件種目 |
賃貸マンション |
| 賃料 |
5.2万円 |
管理費等 |
6,000円 |
| 敷金 / 保証金 |
1ヶ月 / なし |
礼金 |
なし |
| 敷引 |
1ヶ月 |
保証金償却 |
- |
| その他一時金 |
契約事務手数料:25,000円 |
保険等 |
要 |
| 維持費等 |
安心トラブルサポート:1,500円/月、口座振替手数料:930円/月 |
| 間取り |
1K |
専有面積 |
19.65m² |
| 築年月 |
1988年3月(築37年10ヶ月)
|
階建 / 階 |
5階建 / 5階 |
| 建物構造 |
RC |
総戸数 |
- |
| 主要採光面 |
東 |
駐車場 |
- |
| バイク置き場 |
- |
駐輪場 |
- |
| 建物名・部屋番号 |
|
ペット |
相談 |
| リフォーム履歴 |
- |
| リノベーション履歴 |
- |
| 備考 |
賃貸保証等:加入要(JRAG 初回100%)
管理形態/管理員の勤務形態:-/-
IT重説対応物件
クレジットカード払い対応物件もあります!
ペット飼育時敷金積み増し料金(償却)有り 室内清掃費用 45000円
|
| エネルギー消費性能 |
- |
| 断熱性能 |
- |
| 目安光熱費 |
- |
| バス・トイレ |
洗面台、シャワー、トイレ |
| キッチン |
- |
| セキュリティー |
オートロック |
| 収納 |
収納スペース、シューズボックス |
| 設備・サービス |
室内洗濯機置場、洗濯機置場、給湯、フローリング、エアコン |
| TV・通信 |
インターネット対応、光ファイバー |
| その他 |
バルコニー、エレベーター |
| 契約期間 |
2年 |
現況 |
- |
| 条件等 |
- |
入居可能時期 |
2026年1月下旬予定 |
| 更新料 |
新賃料 1.5ヶ月 |
物件番号 |
1075000397 |
| 情報公開日 |
2025年12月15日 |
次回更新予定日 |
2025年12月29日 |
| ケータイ用バーコード |
- スマートフォンでこの物件を見る
- スマートフォンからもこの物件をご覧になれます。
|
※「-」と表示されている項目については、情報提供会社にご確認ください。
| 周辺施設 |
まいばすけっと川崎大師駅前 |
| 距離 |
231m |
写真を見る |
ここから簡単にお問い合わせをすることができます。
(SSLでの暗号化での送信を希望されるお客さまは
こちら
よりお問い合わせください)
お問い合わせを行う前に
「個人情報の取り扱いについて」を必ずお読みください。
「個人情報の取り扱いについて」に同意いただいた場合は「上記にご同意の上 確認画面へ進む」のボタンをクリックしてください。
個人情報の取り扱いについて
皆さまが送付された個人情報はアットホーム(株)のサーバを経由し、お問い合わせ先の不動産会社にメールまたはFAXにて転送されるためアットホーム(株)にも保管されます。アットホーム(株)で保管された個人情報の取り扱いについては、【こちら】をご覧ください。
また、本画面でご記入いただいた個人情報は、お問い合わせ先の不動産会社でも保管します。 お問い合わせ先の不動産会社が保管する個人情報の取り扱いについては、不動産会社に直接お問い合わせください。
神奈川県知事免許(1)第31769号 |
|---|
- 交通:
- JR東海道本線/川崎駅 徒歩1分
- 神奈川県川崎市川崎区駅前本町11-1 パシフィックマークス川崎5F
- TEL:
- 0800-170-0883
- FAX:
- 044-222-6451
- 所属団体:
- (公財)日本賃貸住宅管理協会会員(公社)首都圏不動産公正取引協議会加盟
取引態様:仲介  - 00511969
|
- スマートフォンで
この不動産会社を見る

|
- 提携サイト等より掲載されている物件情報につきましては、不動産会社詳細情報にリンクされていないものがあります。
- 物件に関するお問合せは、物件詳細ページの「情報提供会社」に表示されている不動産会社へ直接お願いいたします。
- 間取図は、現況を優先させていただきます。
- 映像は物件の一部を撮影したものです。物件の契約にあたっての最終判断はご自身の判断に基づいて行ってください。
- 仲介手数料について

アットホームは物件情報の適正化に努めております。
内容に誤りがある場合にはこちらへご連絡ください。