東京都杉並区高円寺北2丁目(高円寺駅)の賃貸:物件詳細
交通 所在地 |
駅徒歩 |
賃料 管理費等 |
敷金/保証金 礼金 |
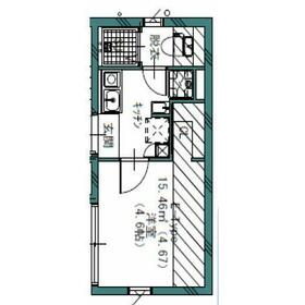
間取り 面積 |
物件種目 築年月 |
|
JR中央線/高円寺
東京都杉並区高円寺北2丁目
|
8分
|
8.9万円
9,000円
|
なし / なし
1ヶ月
|
1K
15.46m²
|
賃貸マンション
2024年3月(築1年10ヶ月)
|
角部屋、2面採光、IT重説対応物件
|
|
間取図
|
|
その他の画像
|
| 交通 | JR中央線 高円寺駅 徒歩8分 |
|---|
| その他の交通 | JR中央線 中野駅 徒歩20分 西武新宿線 野方駅 徒歩16分 |
| 所在地 |
東京都杉並区高円寺北2丁目
|
| 物件種目 |
賃貸マンション |
| 賃料 |
8.9万円 |
管理費等 |
9,000円 |
| 敷金 / 保証金 |
なし / なし |
礼金 |
1ヶ月 |
| 敷引 |
- |
保証金償却 |
- |
| その他一時金 |
なし、鍵交換代等:22,000円~ |
保険等 |
要 |
| 維持費等 |
24時間サポート:1,100円/月 |
| 間取り |
1K(洋4.6) |
専有面積 |
15.46m² |
| 築年月 |
2024年3月(築1年10ヶ月)
|
階建 / 階 |
4階建 / 3階 |
| 建物構造 |
RC |
総戸数 |
- |
| 主要採光面 |
|
駐車場 |
- |
| バイク置き場 |
- |
駐輪場 |
- |
| 建物名・部屋番号 |
GREW Koenji Residence 301 |
ペット |
-
|
| リフォーム履歴 |
- |
| リノベーション履歴 |
- |
| 備考 |
賃貸保証等:加入要(初回保証料100%)
管理形態/管理員の勤務形態:-/-
単身者限定、IT重説対応物件
クレジットカード払い対応物件もあります!
|
| エネルギー消費性能 |
- |
| 断熱性能 |
- |
| 目安光熱費 |
- |
| バス・トイレ |
洗面所独立、洗面所、シャワールーム、シャワー、温水洗浄便座、トイレ |
| キッチン |
システムキッチン、IHクッキングヒーター |
| セキュリティー |
モニター付オートロック、オートロック、モニター付インターホン |
| 収納 |
収納スペース、クローゼット、シューズボックス |
| 設備・サービス |
室内洗濯機置場、洗濯機置場、フローリング、都市ガス、エアコン |
| TV・通信 |
インターネット対応 |
| その他 |
- |
| 契約期間 |
2年 |
現況 |
- |
| 条件等 |
- |
入居可能時期 |
相談 |
| 更新料 |
新賃料 1ヶ月 |
物件番号 |
1076384097 |
| 情報公開日 |
2025年12月25日 |
次回更新予定日 |
2026年1月8日 |
| ケータイ用バーコード |
- スマートフォンでこの物件を見る
- スマートフォンからもこの物件をご覧になれます。
|
※「-」と表示されている項目については、情報提供会社にご確認ください。
| 周辺施設 |
まいばすけっと 高円寺駅北店 |
| 距離 |
443m |
写真を見る |
| 周辺施設 |
ファミリーマート野方1丁目店 |
| 距離 |
203m |
写真を見る |
| 周辺施設 |
Olympic(オリンピック) 高円寺店 |
| 距離 |
469m |
写真を見る |
| 周辺施設 |
三菱UFJ銀行高円寺支店 |
| 距離 |
611m |
写真を見る |
| 周辺施設 |
高円寺駅前郵便局 |
| 距離 |
461m |
写真を見る |
ここから簡単にお問い合わせをすることができます。
(SSLでの暗号化での送信を希望されるお客さまは
こちら
よりお問い合わせください)
お問い合わせを行う前に
「個人情報の取り扱いについて」を必ずお読みください。
「個人情報の取り扱いについて」に同意いただいた場合は「上記にご同意の上 確認画面へ進む」のボタンをクリックしてください。
個人情報の取り扱いについて
皆さまが送付された個人情報はアットホーム(株)のサーバを経由し、お問い合わせ先の不動産会社にメールまたはFAXにて転送されるためアットホーム(株)にも保管されます。アットホーム(株)で保管された個人情報の取り扱いについては、【こちら】をご覧ください。
また、本画面でご記入いただいた個人情報は、お問い合わせ先の不動産会社でも保管します。 お問い合わせ先の不動産会社が保管する個人情報の取り扱いについては、不動産会社に直接お問い合わせください。
東京都知事免許(1)第108283号 |
|---|
- 交通:
- JR中央線/高円寺駅 徒歩1分
- 東京都杉並区高円寺北2丁目4-5
- TEL:
- 0800-080-3465
- 所属団体:
- (公財)日本賃貸住宅管理協会会員(公社)首都圏不動産公正取引協議会加盟
取引態様:仲介  - 00274025
|
- スマートフォンで
この不動産会社を見る

|
- 提携サイト等より掲載されている物件情報につきましては、不動産会社詳細情報にリンクされていないものがあります。
- 物件に関するお問合せは、物件詳細ページの「情報提供会社」に表示されている不動産会社へ直接お願いいたします。
- 間取図は、現況を優先させていただきます。
- 映像は物件の一部を撮影したものです。物件の契約にあたっての最終判断はご自身の判断に基づいて行ってください。
- 仲介手数料について

アットホームは物件情報の適正化に努めております。
内容に誤りがある場合にはこちらへご連絡ください。