東京都千代田区東神田2丁目(馬喰町駅)の賃貸:物件詳細
交通 所在地 |
駅徒歩 |
賃料 管理費等 |
敷金/保証金 礼金 |
間取り 面積 |
物件種目 築年月 |
|
JR総武本線/馬喰町
東京都千代田区東神田2丁目
|
5分
|
21.5万円
15,000円
|
なし / なし
1ヶ月
|
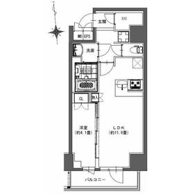
1LDK
41.28m²
|
賃貸マンション
2020年6月(築5年5ヶ月)
|
ペット相談、南向き、IT重説対応物件、保証人不要
|
|
間取図
|
外観
|
<
その他の画像
>
|
| 交通 | JR総武本線 馬喰町駅 徒歩5分 |
|---|
| その他の交通 | JR総武本線 馬喰町駅 徒歩5分 JR総武線 浅草橋駅 徒歩6分 |
| 所在地 |
東京都千代田区東神田2丁目
|
| 物件種目 |
賃貸マンション |
| 賃料 |
21.5万円 |
管理費等 |
15,000円 |
| 敷金 / 保証金 |
なし / なし |
礼金 |
1ヶ月 |
| 敷引 |
- |
保証金償却 |
- |
| その他一時金 |
なし |
保険等 |
要 2年 16,550円 |
| 維持費等 |
- |
| 間取り |
1LDK(LDK9.3帖 洋室4.1帖) |
専有面積 |
41.28m² |
| 築年月 |
2020年6月(築5年5ヶ月)
|
階建 / 階 |
12階建 / 6階 |
| 建物構造 |
RC |
総戸数 |
51戸 |
| 主要採光面 |
南 |
駐車場 |
無 |
| バイク置き場 |
- |
駐輪場 |
- |
| 建物名・部屋番号 |
La Douceur東神田 |
ペット |
相談 |
| アピールポイント |
当社は今年で創業45周年 全国賃貸仲介件数ランキング74,000件 第2位の信頼と実績がございます。また1都5県139店舗の豊富なネットワークを活かし200000件以上を常時物件募集をしております。総合仲介な為、他社様のインターネット物件情報もご紹介可能です。お部屋探し~物件提案~見学~ご契約まで全てオンライン非対面でのご利用です。ご来店・お問合せをスタッフ一同心よりお待ちしております。 |
| リフォーム履歴 |
- |
| リノベーション履歴 |
- |
| 備考 |
賃貸保証等:加入要(エポスカード(RP) 保証料:賃料等の50%(最低2万)、月額保証料:賃料等の1%(更新料無))
管理形態/管理員の勤務形態:-/-
IT重説対応物件
東京を中心に関東人気エリアの賃貸マンション・アパート情報が豊富!創業45年 直営140店舗以上の 独自のネットワークで最適なマンション・アパートをお探しします!お部屋探しからご契約までをオンラインで簡単にご対応できます!『ひとを、まちを、もっと豊かに。』2023年賃貸仲介件数全国第2位の実績です!安心してお問合せくださいませ。※退去時清掃費用借主負担
|
| エネルギー消費性能 |
- |
| 断熱性能 |
- |
| 目安光熱費 |
- |
| バス・トイレ |
バス・トイレ別、洗面所独立 |
| キッチン |
システムキッチン |
| セキュリティー |
オートロック、防犯カメラ |
| 収納 |
- |
| 設備・サービス |
室内洗濯機置場 |
| TV・通信 |
インターネット使用料無料 |
| その他 |
宅配BOX、エレベーター |
| 契約期間 |
2年 |
現況 |
空家 |
| 条件等 |
- |
入居可能時期 |
即時 |
| 仲介手数料 |
1.1ヶ月 |
|
|
| 更新料 |
新賃料 1ヶ月 |
物件番号 |
1077707264 |
| 情報公開日 |
2025年10月24日 |
次回更新予定日 |
2025年11月7日 |
| ケータイ用バーコード |
- スマートフォンでこの物件を見る
- スマートフォンからもこの物件をご覧になれます。
|
※「-」と表示されている項目については、情報提供会社にご確認ください。
| 周辺施設 |
アトレ秋葉原2 |
| 距離 |
810m |
写真を見る |
| 周辺施設 |
肉のハナマサ |
| 距離 |
360m |
写真を見る |
| 周辺施設 |
ファミリーマート東神田二丁目店 |
| 距離 |
80m |
写真を見る |
| 周辺施設 |
くすりセイジョー |
| 距離 |
620m |
写真を見る |
| 周辺施設 |
東神田郵便局 |
| 距離 |
250m |
写真を見る |
| 周辺施設 |
社会福祉法人三井記念病院 |
| 距離 |
600m |
写真を見る |
ここから簡単にお問い合わせをすることができます。
(SSLでの暗号化での送信を希望されるお客さまは
こちら
よりお問い合わせください)
お問い合わせを行う前に
「個人情報の取り扱いについて」を必ずお読みください。
「個人情報の取り扱いについて」に同意いただいた場合は「上記にご同意の上 確認画面へ進む」のボタンをクリックしてください。
個人情報の取り扱いについて
皆さまが送付された個人情報はアットホーム(株)のサーバを経由し、お問い合わせ先の不動産会社にメールまたはFAXにて転送されるためアットホーム(株)にも保管されます。アットホーム(株)で保管された個人情報の取り扱いについては、【こちら】をご覧ください。
また、本画面でご記入いただいた個人情報は、お問い合わせ先の不動産会社でも保管します。 お問い合わせ先の不動産会社が保管する個人情報の取り扱いについては、不動産会社に直接お問い合わせください。
国土交通大臣免許(1)第9926号 |
|---|
- 交通:
- 東京メトロ千代田線/赤坂駅 徒歩2分
- 東京都港区赤坂3丁目15-10 SP赤坂ビル3階
- TEL:
- 03-5563-9055
- FAX:
- 03-5563-9056
取引態様:仲介  - 00265348
|
- スマートフォンで
この不動産会社を見る

|
- 提携サイト等より掲載されている物件情報につきましては、不動産会社詳細情報にリンクされていないものがあります。
- 物件に関するお問合せは、物件詳細ページの「情報提供会社」に表示されている不動産会社へ直接お願いいたします。
- 間取図は、現況を優先させていただきます。
- 映像は物件の一部を撮影したものです。物件の契約にあたっての最終判断はご自身の判断に基づいて行ってください。
- 仲介手数料について

アットホームは物件情報の適正化に努めております。
内容に誤りがある場合にはこちらへご連絡ください。