東京都中央区新川2丁目(八丁堀駅)の賃貸:物件詳細
交通 所在地 |
駅徒歩 |
賃料 管理費等 |
敷金/保証金 礼金 |
間取り 面積 |
物件種目 築年月 |
|
JR京葉線/八丁堀
東京都中央区新川2丁目
|
3分
|
25万円
10,000円
|
1ヶ月 / なし
1ヶ月
|
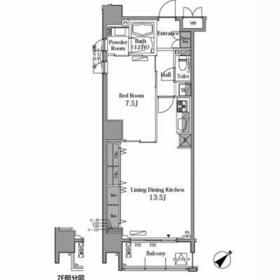
1LDK
53.00m²
|
賃貸マンション
2009年3月(築16年9ヶ月)
|
楽器相談
|
|
間取図
間取図
|
外観
外観
|
<
その他の画像
>
|
| 交通 | JR京葉線 八丁堀駅 徒歩3分 |
|---|
| その他の交通 | 東京メトロ日比谷線 茅場町駅 徒歩10分 東京メトロ日比谷線 八丁堀駅 徒歩8分 |
| 所在地 |
東京都中央区新川2丁目
|
| 物件種目 |
賃貸マンション |
| 賃料 |
25万円 |
管理費等 |
10,000円 |
| 敷金 / 保証金 |
1ヶ月 / なし |
礼金 |
1ヶ月 |
| 敷引 |
- |
保証金償却 |
- |
| その他一時金 |
- |
保険等 |
要 2年 |
| 維持費等 |
- |
| 間取り |
1LDK(洋 7.5/ LDK13.5/) |
専有面積 |
53.00m² |
| 築年月 |
2009年3月(築16年9ヶ月)
|
階建 / 階 |
地上12階地下1階建 / 9階 |
| 建物構造 |
RC |
総戸数 |
- |
| 主要採光面 |
北東 |
駐車場 |
無 |
| バイク置き場 |
- |
駐輪場 |
有 |
| 建物名・部屋番号 |
パークアクシス八丁堀 |
ペット |
-
|
| リフォーム履歴 |
- |
| リノベーション履歴 |
- |
| 備考 |
賃貸保証等:加入要(保証会社必須(初回保証料:契約時月額賃料等の50%、継続保証料:毎年1万円))
管理形態/管理員の勤務形態:-/-
賠償保険加入費用・退去時室内清掃費用が発生します。契約条件により金員内容が異なります。■鍵交換費用が別途発生いたします。■口座振替事務手数料が別途発生致します。
|
| エネルギー消費性能 |
- |
| 断熱性能 |
- |
| 目安光熱費 |
- |
| バス・トイレ |
バス・トイレ別、浴室乾燥機、追焚機能、洗面所独立、温水洗浄便座 |
| キッチン |
- |
| セキュリティー |
オートロック、モニター付インターホン、ディンプルキー、防犯カメラ |
| 収納 |
収納スペース |
| 設備・サービス |
室内洗濯機置場、給湯、フローリング、エアコン |
| TV・通信 |
ケーブルTV、CS、BS端子 |
| その他 |
宅配BOX、バルコニー、駐輪場、エレベーター |
| 契約期間 |
2年 |
現況 |
空家 |
| 条件等 |
- |
入居可能時期 |
即時 |
| 更新料 |
新賃料 1ヶ月 |
物件番号 |
1077964131 |
| 情報公開日 |
2025年9月8日 |
次回更新予定日 |
2025年11月6日 |
| ケータイ用バーコード |
- スマートフォンでこの物件を見る
- スマートフォンからもこの物件をご覧になれます。
|
※「-」と表示されている項目については、情報提供会社にご確認ください。
ここから簡単にお問い合わせをすることができます。
(SSLでの暗号化での送信を希望されるお客さまは
こちら
よりお問い合わせください)
お問い合わせを行う前に
「個人情報の取り扱いについて」を必ずお読みください。
「個人情報の取り扱いについて」に同意いただいた場合は「上記にご同意の上 確認画面へ進む」のボタンをクリックしてください。
個人情報の取り扱いについて
皆さまが送付された個人情報はアットホーム(株)のサーバを経由し、お問い合わせ先の不動産会社にメールまたはFAXにて転送されるためアットホーム(株)にも保管されます。アットホーム(株)で保管された個人情報の取り扱いについては、【こちら】をご覧ください。
また、本画面でご記入いただいた個人情報は、お問い合わせ先の不動産会社でも保管します。 お問い合わせ先の不動産会社が保管する個人情報の取り扱いについては、不動産会社に直接お問い合わせください。
国土交通大臣免許(8)第4372号 |
|---|
- 交通:
- 都営大江戸線/勝どき駅 徒歩3分
- 東京都中央区勝どき3丁目3-7 ケンメディアビル7F
- TEL:
- 03-3534-3600
- FAX:
- 03-3534-3601
- 所属団体:
- (一社)不動産流通経営協会会員(公社)首都圏不動産公正取引協議会加盟
取引態様:仲介  - 00106144
|
- スマートフォンで
この不動産会社を見る

|
- 提携サイト等より掲載されている物件情報につきましては、不動産会社詳細情報にリンクされていないものがあります。
- 物件に関するお問合せは、物件詳細ページの「情報提供会社」に表示されている不動産会社へ直接お願いいたします。
- 間取図は、現況を優先させていただきます。
- 映像は物件の一部を撮影したものです。物件の契約にあたっての最終判断はご自身の判断に基づいて行ってください。
- 仲介手数料について

アットホームは物件情報の適正化に努めております。
内容に誤りがある場合にはこちらへご連絡ください。