東京都目黒区青葉台3丁目(池尻大橋駅)の賃貸:物件詳細
交通 所在地 |
駅徒歩 |
賃料 管理費等 |
敷金/保証金 礼金 |
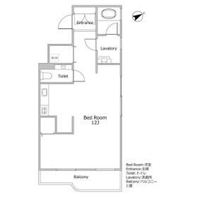
間取り 面積 |
物件種目 築年月 |
|
東急田園都市線/池尻大橋
東京都目黒区青葉台3丁目
|
9分
|
12.5万円
10,000円
|
1ヶ月 / なし
1ヶ月
|
ワンルーム
32.79m²
|
賃貸マンション
1997年1月(築28年11ヶ月)
|
楽器相談、角部屋
|
|
間取図
|
外観
|
<
その他の画像
>
|
| 交通 | 東急田園都市線 池尻大橋駅 徒歩9分 |
|---|
| その他の交通 | 東急東横線 中目黒駅 徒歩16分 |
| 所在地 |
東京都目黒区青葉台3丁目
|
| 物件種目 |
賃貸マンション |
| 賃料 |
12.5万円 |
管理費等 |
10,000円 |
| 敷金 / 保証金 |
1ヶ月 / なし |
礼金 |
1ヶ月 |
| 敷引 |
- |
保証金償却 |
- |
| その他一時金 |
- |
保険等 |
要 2年 17,680円 |
| 維持費等 |
- |
| 間取り |
ワンルーム |
専有面積 |
32.79m² |
| 築年月 |
1997年1月(築28年11ヶ月)
|
階建 / 階 |
地上4階地下1階建 / 1階 |
| 建物構造 |
RC |
総戸数 |
- |
| 主要採光面 |
南東 |
駐車場 |
無 |
| バイク置き場 |
- |
駐輪場 |
- |
| 建物名・部屋番号 |
ジェイパーク青葉台アパートメント |
ペット |
-
|
| リフォーム履歴 |
- |
| リノベーション履歴 |
- |
| 備考 |
賃貸保証等:加入要(■保証会社加入要※初回保証料賃料等0.5ヶ月・最低1.5万円、保証委託料賃料等1%/月・最低300円)
管理形態/管理員の勤務形態:-/日勤
バルコニー:2.49m²
管理人日勤
※オーブンレンジ・照明器具は機能保証無※禁煙(バルコニー含)
【借主負担】■退去時清掃費用:㎡×1,430円■退去時エアコンクリーニング費用(1基)■ピアノ相談可:規約による制限有■更新料:新賃料の1ヵ月分■鍵交換費用(任意/入居後交換の可能性有)
|
| エネルギー消費性能 |
- |
| 断熱性能 |
- |
| 目安光熱費 |
- |
| バス・トイレ |
バス・トイレ別、洗面所独立、温水洗浄便座、トイレ |
| キッチン |
システムキッチン、2口コンロ、ガスコンロ付 |
| セキュリティー |
オートロック、モニター付インターホン |
| 収納 |
トランクルーム、シューズボックス |
| 設備・サービス |
室内洗濯機置場、給湯、全居室フローリング、都市ガス、エアコン |
| TV・通信 |
光ファイバー、BS端子 |
| その他 |
宅配BOX |
| 契約期間 |
2年 |
現況 |
居住中 |
| 条件等 |
- |
入居可能時期 |
2025年12月31日予定 |
| 仲介手数料 |
13.75万円 |
|
|
| 更新料 |
新賃料 1ヶ月 |
物件番号 |
1082578685 |
| 情報公開日 |
2025年10月28日 |
次回更新予定日 |
2025年11月13日 |
| ケータイ用バーコード |
- スマートフォンでこの物件を見る
- スマートフォンからもこの物件をご覧になれます。
|
※「-」と表示されている項目については、情報提供会社にご確認ください。
ここから簡単にお問い合わせをすることができます。
(SSLでの暗号化での送信を希望されるお客さまは
こちら
よりお問い合わせください)
お問い合わせを行う前に
「個人情報の取り扱いについて」を必ずお読みください。
「個人情報の取り扱いについて」に同意いただいた場合は「上記にご同意の上 確認画面へ進む」のボタンをクリックしてください。
個人情報の取り扱いについて
皆さまが送付された個人情報はアットホーム(株)のサーバを経由し、お問い合わせ先の不動産会社にメールまたはFAXにて転送されるためアットホーム(株)にも保管されます。アットホーム(株)で保管された個人情報の取り扱いについては、【こちら】をご覧ください。
また、本画面でご記入いただいた個人情報は、お問い合わせ先の不動産会社でも保管します。 お問い合わせ先の不動産会社が保管する個人情報の取り扱いについては、不動産会社に直接お問い合わせください。
国土交通大臣免許(12)第2611号 |
|---|
- 交通:
- 都営新宿線/市ヶ谷駅 徒歩1分
- 東京都千代田区九段南4丁目7-15 JPR市ヶ谷ビル 1F
- TEL:
- 0800-100-3109
- FAX:
- 03-6862-1093
- 所属団体:
- (一社)不動産流通経営協会会員(公社)首都圏不動産公正取引協議会加盟
取引態様:仲介  - 00786178
|
- スマートフォンで
この不動産会社を見る

|
- 提携サイト等より掲載されている物件情報につきましては、不動産会社詳細情報にリンクされていないものがあります。
- 物件に関するお問合せは、物件詳細ページの「情報提供会社」に表示されている不動産会社へ直接お願いいたします。
- 間取図は、現況を優先させていただきます。
- 映像は物件の一部を撮影したものです。物件の契約にあたっての最終判断はご自身の判断に基づいて行ってください。
- 仲介手数料について

アットホームは物件情報の適正化に努めております。
内容に誤りがある場合にはこちらへご連絡ください。