東京都北区王子5丁目(王子神谷駅)の賃貸:物件詳細
交通 所在地 |
駅徒歩 |
賃料 管理費等 |
敷金/保証金 礼金 |
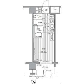
間取り 面積 |
物件種目 築年月 |
|
東京メトロ南北線/王子神谷
東京都北区王子5丁目
|
2分
|
10.75万円
4,500円
|
1ヶ月 / なし
1ヶ月
|
1K
25.13m²
|
賃貸マンション
2010年2月(築16年)
|
楽器相談
|
|
間取図
|
外観
|
その他の画像
|
| 交通 | 東京メトロ南北線 王子神谷駅 徒歩2分 |
|---|
| その他の交通 | JR京浜東北線 東十条駅 徒歩12分 |
| 所在地 |
東京都北区王子5丁目
|
| 物件種目 |
賃貸マンション |
| 賃料 |
10.75万円 |
管理費等 |
4,500円 |
| 敷金 / 保証金 |
1ヶ月 / なし |
礼金 |
1ヶ月 |
| 敷引 |
- |
保証金償却 |
- |
| その他一時金 |
カギ交換代:22,000円 |
保険等 |
要 2年 18,000円 |
| 維持費等 |
- |
| 間取り |
1K(K2.5 洋7.4) |
専有面積 |
25.13m² |
| 築年月 |
2010年2月(築16年)
|
階建 / 階 |
12階建 / 7階 |
| 建物構造 |
RC |
総戸数 |
- |
| 主要採光面 |
南西 |
駐車場 |
無 |
| バイク置き場 |
- |
駐輪場 |
有 無料 |
| 建物名・部屋番号 |
センテニアル王子神谷アネックス 705 |
ペット |
-
|
| リフォーム履歴 |
- |
| リノベーション履歴 |
- |
| 備考 |
賃貸保証等:加入要(初回保証料総賃料40%、月額総賃料1%、更新料1%)
管理形態/管理員の勤務形態:-/-
王子神谷駅徒歩2分☆アップライトピアノ可
エレベーターや宅配BOXを備え、バイク置き場があり、アップライトピアノ相談も可能な点が魅力。システム
|
| エネルギー消費性能 |
- |
| 断熱性能 |
- |
| 目安光熱費 |
- |
| バス・トイレ |
バス・トイレ別、浴室乾燥機、洗面所独立、洗面所、洗面台、シャワー、温水洗浄便座、トイレ |
| キッチン |
システムキッチン、独立型キッチン、2口コンロ |
| セキュリティー |
オートロック、モニター付インターホン、防犯カメラ、火災警報器(報知機) |
| 収納 |
収納スペース |
| 設備・サービス |
室内洗濯機置場、洗濯機置場、給湯、フローリング、エアコン |
| TV・通信 |
光ファイバー、ケーブルTV、CS、BS端子 |
| その他 |
宅配BOX、バルコニー、駐輪場、エレベーター |
| 契約期間 |
2年 |
現況 |
空家 |
| 条件等 |
- |
入居可能時期 |
相談 |
| 仲介手数料 |
11.825万円 |
|
|
| 更新料 |
新賃料 1ヶ月 |
物件番号 |
1082610977 |
| 情報公開日 |
2025年12月26日 |
次回更新予定日 |
2026年1月9日 |
| ケータイ用バーコード |
- スマートフォンでこの物件を見る
- スマートフォンからもこの物件をご覧になれます。
|
※「-」と表示されている項目については、情報提供会社にご確認ください。
| 周辺施設 |
コモディイイダ東十条 |
| 距離 |
386m |
写真を見る |
| 周辺施設 |
セブンイレブン北区神谷1丁目 |
| 距離 |
206m |
写真を見る |
ここから簡単にお問い合わせをすることができます。
(SSLでの暗号化での送信を希望されるお客さまは
こちら
よりお問い合わせください)
お問い合わせを行う前に
「個人情報の取り扱いについて」を必ずお読みください。
「個人情報の取り扱いについて」に同意いただいた場合は「上記にご同意の上 確認画面へ進む」のボタンをクリックしてください。
個人情報の取り扱いについて
皆さまが送付された個人情報はアットホーム(株)のサーバを経由し、お問い合わせ先の不動産会社にメールまたはFAXにて転送されるためアットホーム(株)にも保管されます。アットホーム(株)で保管された個人情報の取り扱いについては、【こちら】をご覧ください。
また、本画面でご記入いただいた個人情報は、お問い合わせ先の不動産会社でも保管します。 お問い合わせ先の不動産会社が保管する個人情報の取り扱いについては、不動産会社に直接お問い合わせください。
国土交通大臣免許(10)第3369号 |
|---|
- 交通:
- 東急田園都市線/用賀駅 徒歩1分
- 東京都世田谷区用賀4丁目11-5 リエルナ用賀3F
- TEL:
- 03-3707-3999
- FAX:
- 03-3707-3991
- 所属団体:
- (公社)東京都宅地建物取引業協会会員(公社)首都圏不動産公正取引協議会加盟
取引態様:仲介  - 00106793
|
- スマートフォンで
この不動産会社を見る

|
- 提携サイト等より掲載されている物件情報につきましては、不動産会社詳細情報にリンクされていないものがあります。
- 物件に関するお問合せは、物件詳細ページの「情報提供会社」に表示されている不動産会社へ直接お願いいたします。
- 間取図は、現況を優先させていただきます。
- 映像は物件の一部を撮影したものです。物件の契約にあたっての最終判断はご自身の判断に基づいて行ってください。
- 仲介手数料について

アットホームは物件情報の適正化に努めております。
内容に誤りがある場合にはこちらへご連絡ください。