不動産 賃貸 マンション等の住宅情報:埼玉住まい情報


東京都江東区東雲1丁目(辰巳駅)の賃貸:物件詳細

  • 物件詳細
  • 情報の見方
  • 印刷用画面
交通
所在地
駅徒歩 賃料
管理費等
敷金/保証金
礼金
間取り
面積
物件種目
築年月

東京メトロ有楽町線/辰巳

東京都江東区東雲1丁目

10分

20.4万円

15,000円

1ヶ月 / なし

1ヶ月

1LDK

66.06m²

賃貸マンション

2004年3月(築22年1ヶ月)

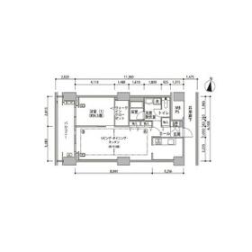
間取図

  • とりあえず保存
  • お問い合わせ
交通

東京メトロ有楽町線 辰巳駅 徒歩10分

その他の交通

りんかい線 東雲駅 徒歩11分

新交通ゆりかもめ 豊洲駅 徒歩15分

所在地 東京都江東区東雲1丁目
物件種目 賃貸マンション
賃料 20.4万円 管理費等 15,000円
敷金 / 保証金 1ヶ月 / なし 礼金 1ヶ月
敷引 保証金償却
その他一時金 カギ交換代:33,000円、クリーニング費用:92,180円、エアコン清掃費:41,800円 保険等 要 2年 16,550円
維持費等
間取り 1LDK(LDK19.3 洋6.5) 専有面積 66.06m²
築年月 2004年3月(築22年1ヶ月) 階建 / 階 地上14階地下1階建 / 12階
建物構造 RC 総戸数
主要採光面 西 駐車場
バイク置き場 駐輪場
建物名・部屋番号 東雲キャナルコートCODAN16号棟 1210 ペット
リフォーム履歴
リノベーション履歴
備考
賃貸保証等:加入要(レジデンシャルパートナーズ 保証料:賃料等の50%(最低2万)、月額保証・事務手数料:賃料等の1%()
管理形態/管理員の勤務形態:-/-
エネルギー消費性能
断熱性能
目安光熱費
バス・トイレ バス・トイレ別、追焚機能、洗面所独立、温水洗浄便座
キッチン システムキッチン
セキュリティー オートロック、モニター付インターホン
収納 クローゼット
設備・サービス エアコン2台以上、室内洗濯機置場、給湯、都市ガス
TV・通信 ケーブルTV、CS、BS端子
その他 宅配BOX
契約期間 2年 現況 居住中
条件等 入居可能時期 2026年5月9日予定
仲介手数料 22.44万円    
更新料 新賃料 1ヶ月 物件番号 1083190985
情報公開日 2026年3月2日 次回更新予定日 2026年3月16日
ケータイ用バーコード

QRコード

スマートフォンでこの物件を見る
スマートフォンからもこの物件をご覧になれます。
※「-」と表示されている項目については、情報提供会社にご確認ください。

この物件の周辺情報

周辺施設 イオン東雲SC
距離 155m
周辺施設 イオン内ATMコーナー
距離 155m

クイックお問い合わせ

ここから簡単にお問い合わせをすることができます。
(SSLでの暗号化での送信を希望されるお客さまは こちら よりお問い合わせください)

お問い合わせ内容(必須)
お名前(必須) 姓  名 
メールアドレス(必須)
※携帯電話のメールアドレスをご入力される方はこちらをご確認ください
電話番号(必須)
- -

※入力いただいた電話番号へSMSまたは音声でパスワードをご連絡します。

携帯電話の番号をご入力の方へ

携帯電話の番号をご入力の方へ
確認画面にて送信ボタンをクリックするとSMSが携帯電話に届きます。
そのSMSに記載のパスワード(認証番号)を入力し、お問い合わせを完了してください。
尚、SMSの送信者番号は 0005 202 760 となります。
これはアットホームの固定番号です。

備考欄 希望条件、物件案内希望日、質問などがございましたらご記入ください。
お問い合わせを行う前に「個人情報の取り扱いについて」を必ずお読みください。
「個人情報の取り扱いについて」に同意いただいた場合は「上記にご同意の上 確認画面へ進む」のボタンをクリックしてください。

個人情報の取り扱いについて

皆さまが送付された個人情報はアットホーム(株)のサーバを経由し、お問い合わせ先の不動産会社にメールまたはFAXにて転送されるためアットホーム(株)にも保管されます。アットホーム(株)で保管された個人情報の取り扱いについては、【こちら】をご覧ください。
また、本画面でご記入いただいた個人情報は、お問い合わせ先の不動産会社でも保管します。 お問い合わせ先の不動産会社が保管する個人情報の取り扱いについては、不動産会社に直接お問い合わせください。

情報提供会社

情報提供会社

東急リバブル(株) 豊洲センター

国土交通大臣免許(12)第2611号

交通:
東京メトロ有楽町線/豊洲駅 徒歩1分
東京都江東区豊洲4丁目1-23 ティ・ビィ豊洲ビル4階
TEL:
0120-691-795
FAX:
03-3536-2380
所属団体:
(一社)不動産流通経営協会会員
(一社)不動産協会会員
(公社)首都圏不動産公正取引協議会加盟

取引態様:仲介

  • 会社情報
  • 00782472
スマートフォンで
この不動産会社を見る
QRコード
  • とりあえず保存
  • お問い合わせ
  • 提携サイト等より掲載されている物件情報につきましては、不動産会社詳細情報にリンクされていないものがあります。
  • 物件に関するお問合せは、物件詳細ページの「情報提供会社」に表示されている不動産会社へ直接お願いいたします。
  • 間取図は、現況を優先させていただきます。
  • 映像は物件の一部を撮影したものです。物件の契約にあたっての最終判断はご自身の判断に基づいて行ってください。
  • 仲介手数料について仲介手数料

アットホームは物件情報の適正化に努めております。 内容に誤りがある場合にはこちらへご連絡ください。

【埼玉住まい情報】では、日本全国の物件から賃貸マンションや賃貸アパート・賃貸一戸建て等の賃貸住宅情報、新築マンション・分譲マンションや中古マンション等の売買マンション情報、新築一戸建てや中古一戸建てなどの戸建住宅、 土地など、総合的な不動産住宅情報検索サービスを提供致します。
【埼玉住まい情報】から、選りすぐりの不動産物件を探してみましょう。

【免責事項】
このコーナーの運営はアットホーム株式会社(https://www.athome.co.jp/)が行っています。
このコーナーに掲載している物件情報は、「アットホーム不動産情報ネットワーク」に加盟する不動産会社等(情報提供元)から提供されています。信頼性の高い情報提供が行えるよう、最大限の努力をしておりますが、その内容を保証するものではありません。 利用者のみなさまと各情報提供元との取引に起因する損害および情報が掲載されたことに起因する損害等については、株式会社イーシティ埼玉、およびアットホームは一切責任を負いません。
各物件情報の内容や画像等はすべて現況を優先させていただきます。
お取引等(お取引の準備、資金調達等を含みます)の際には、内容や契約条件等について、各情報提供元より十分な説明を受け、ご自身でご確認の上、判断してください。
このコーナーへの物件情報のご掲載、その他不動産業務ソリューション等についての不動産会社様のお問合せはこちらからお願いいたします。

物件画像: