東京都新宿区北新宿4丁目(東中野駅)の賃貸:物件詳細
交通 所在地 |
駅徒歩 |
賃料 管理費等 |
敷金/保証金 礼金 |
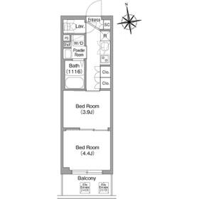
間取り 面積 |
物件種目 築年月 |
|
JR総武線/東中野
東京都新宿区北新宿4丁目
|
9分
|
16.3万円
10,000円
|
1ヶ月 / なし
なし
|
2K
25.36m²
|
賃貸マンション
2025年2月
|
ペット相談、南向き
|
|
間取図
|
外観
|
<
その他の画像
>
|
| 交通 | JR総武線 東中野駅 徒歩9分 |
|---|
| その他の交通 | JR総武線 大久保駅 徒歩11分 JR山手線 新大久保駅 徒歩15分 |
| 所在地 |
東京都新宿区北新宿4丁目
|
| 物件種目 |
賃貸マンション |
| 賃料 |
16.3万円 |
管理費等 |
10,000円 |
| 敷金 / 保証金 |
1ヶ月 / なし |
礼金 |
なし |
| 敷引 |
- |
保証金償却 |
- |
| その他一時金 |
クリーニング費用:38,500円、エアコン清掃費:11,000円 |
保険等 |
要 2年 16,550円 |
| 維持費等 |
- |
| 間取り |
2K(洋4.4 洋3.9) |
専有面積 |
25.36m² |
| 築年月 |
2025年2月
|
階建 / 階 |
13階建 / 8階 |
| 建物構造 |
RC |
総戸数 |
- |
| 主要採光面 |
南 |
駐車場 |
無 |
| バイク置き場 |
- |
駐輪場 |
- |
| 建物名・部屋番号 |
コンフォリア・リヴ北新宿 0804 |
ペット |
相談 |
| リフォーム履歴 |
- |
| リノベーション履歴 |
- |
| 備考 |
賃貸保証等:加入要(エポスカード(RP) 保証料:賃料等の50%(最低2万)、月額保証料:賃料等の1%(更新料無))
管理形態/管理員の勤務形態:-/-
|
| エネルギー消費性能 |
- |
| 断熱性能 |
- |
| 目安光熱費 |
- |
| バス・トイレ |
浴室乾燥機、洗面所独立、温水洗浄便座 |
| キッチン |
- |
| セキュリティー |
オートロック、モニター付インターホン |
| 収納 |
- |
| 設備・サービス |
室内洗濯機置場、エアコン |
| TV・通信 |
CS、BS端子 |
| その他 |
宅配BOX、エレベーター |
| 契約期間 |
2年 |
現況 |
空家 |
| 条件等 |
- |
入居可能時期 |
即時 |
| 仲介手数料 |
17.93万円 |
|
|
| 更新料 |
新賃料 1ヶ月 |
物件番号 |
1083539785 |
| 情報公開日 |
2025年9月26日 |
次回更新予定日 |
2025年11月10日 |
| ケータイ用バーコード |
- スマートフォンでこの物件を見る
- スマートフォンからもこの物件をご覧になれます。
|
※「-」と表示されている項目については、情報提供会社にご確認ください。
ここから簡単にお問い合わせをすることができます。
(SSLでの暗号化での送信を希望されるお客さまは
こちら
よりお問い合わせください)
お問い合わせを行う前に
「個人情報の取り扱いについて」を必ずお読みください。
「個人情報の取り扱いについて」に同意いただいた場合は「上記にご同意の上 確認画面へ進む」のボタンをクリックしてください。
個人情報の取り扱いについて
皆さまが送付された個人情報はアットホーム(株)のサーバを経由し、お問い合わせ先の不動産会社にメールまたはFAXにて転送されるためアットホーム(株)にも保管されます。アットホーム(株)で保管された個人情報の取り扱いについては、【こちら】をご覧ください。
また、本画面でご記入いただいた個人情報は、お問い合わせ先の不動産会社でも保管します。 お問い合わせ先の不動産会社が保管する個人情報の取り扱いについては、不動産会社に直接お問い合わせください。
国土交通大臣免許(12)第2611号 |
|---|
- 交通:
- JR山手線/新宿駅 徒歩2分
- 東京都新宿区西新宿1丁目6-1 新宿エルタワー1階
- TEL:
- 0800-170-7016
- FAX:
- 03-6877-1030
- 所属団体:
- (一社)不動産流通経営協会会員(一社)不動産協会会員(公社)首都圏不動産公正取引協議会加盟
取引態様:仲介  - 00780416
|
- スマートフォンで
この不動産会社を見る

|
- 提携サイト等より掲載されている物件情報につきましては、不動産会社詳細情報にリンクされていないものがあります。
- 物件に関するお問合せは、物件詳細ページの「情報提供会社」に表示されている不動産会社へ直接お願いいたします。
- 間取図は、現況を優先させていただきます。
- 映像は物件の一部を撮影したものです。物件の契約にあたっての最終判断はご自身の判断に基づいて行ってください。
- 仲介手数料について

アットホームは物件情報の適正化に努めております。
内容に誤りがある場合にはこちらへご連絡ください。