東京都小金井市東町4丁目(東小金井駅)の賃貸:物件詳細
交通 所在地 |
駅徒歩 |
賃料 管理費等 |
敷金/保証金 礼金 |
間取り 面積 |
物件種目 築年月 |
|
JR中央線/東小金井
東京都小金井市東町4丁目
|
11分
|
27万円
25,000円
|
27万円 / なし
なし
|
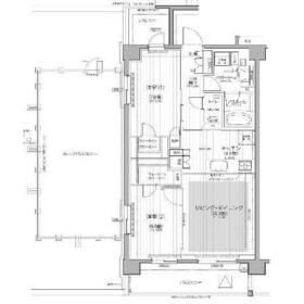
4LDK
64.31m²
|
賃貸マンション
2019年3月(築6年10ヶ月)
|
ペット相談、角部屋、二人入居可、2面採光、IT重説対応物件、保証人不要
|
|
間取図
|
外観
|
<
その他の画像
>
|
|
|
- VR/パノラマで内見する
-
その場で物件を内見しているように見ることができます。
左のQRコードをスマートフォンで読み取って、再生されるVR画像をVRゴーグルでごらんください。
|
| 交通 | JR中央線 東小金井駅 徒歩11分 |
|---|
| その他の交通 | 西武多摩川線 新小金井駅 徒歩7分 JR中央線 武蔵小金井駅 徒歩23分 |
| 所在地 |
東京都小金井市東町4丁目
|
| 物件種目 |
賃貸マンション |
| 賃料 |
27万円 |
管理費等 |
25,000円 |
| 敷金 / 保証金 |
27万円 / なし |
礼金 |
なし |
| 敷引 |
- |
保証金償却 |
- |
| その他一時金 |
鍵費用:26,400円 |
保険等 |
要 2年 27,000円 |
| 維持費等 |
- |
| 間取り |
4LDK(LDK13.1 洋室6 洋室5.2 洋室5 洋室4) |
専有面積 |
64.31m² |
| 築年月 |
2019年3月(築6年10ヶ月)
|
階建 / 階 |
7階建 / 5階 |
| 建物構造 |
RC |
総戸数 |
50戸 |
| 主要採光面 |
西 |
駐車場 |
無 |
| バイク置き場 |
- |
駐輪場 |
- |
| 建物名・部屋番号 |
Nステージ東小金井 501 |
ペット |
相談 |
| アピールポイント |
食洗器、浄水器、床暖房等設備充実!高級賃貸マンション! |
| リフォーム履歴 |
- |
| リノベーション履歴 |
- |
| 備考 |
賃貸保証等:加入要(エポス 家賃保証会社 初回保証料50%)
管理形態/管理員の勤務形態:-/-
IT重説対応物件
|
| エネルギー消費性能 |
- |
| 断熱性能 |
- |
| 目安光熱費 |
- |
| バス・トイレ |
バス・トイレ別、浴室暖房、浴室乾燥機、追焚機能、洗面所独立、洗面所、洗面台、シャワー、温水洗浄便座、トイレ |
| キッチン |
カウンターキッチン、システムキッチン、食器洗浄乾燥機、浄水器、IHクッキングヒーター、3口以上コンロ |
| セキュリティー |
オートロック、モニター付インターホン、防犯カメラ |
| 収納 |
全居室収納、ウォークインクローゼット、クローゼット、シューズボックス |
| 設備・サービス |
全居室エアコン、エアコン2台以上、床暖房、室内洗濯機置場、都市ガス給湯、給湯、フローリング、都市ガス、エアコン |
| TV・通信 |
光ファイバー |
| その他 |
宅配BOX、バルコニー、エレベーター |
| 契約期間 |
2年 |
現況 |
空家 |
| 条件等 |
- |
入居可能時期 |
即時 |
| 更新料 |
新賃料 1ヶ月 |
物件番号 |
1087519348 |
| 情報公開日 |
2025年12月15日 |
次回更新予定日 |
2025年12月29日 |
| ケータイ用バーコード |
- スマートフォンでこの物件を見る
- スマートフォンからもこの物件をご覧になれます。
|
※「-」と表示されている項目については、情報提供会社にご確認ください。
| 周辺施設 |
私立国際基督教大学高校 |
| 距離 |
1647m |
ここから簡単にお問い合わせをすることができます。
(SSLでの暗号化での送信を希望されるお客さまは
こちら
よりお問い合わせください)
お問い合わせを行う前に
「個人情報の取り扱いについて」を必ずお読みください。
「個人情報の取り扱いについて」に同意いただいた場合は「上記にご同意の上 確認画面へ進む」のボタンをクリックしてください。
個人情報の取り扱いについて
皆さまが送付された個人情報はアットホーム(株)のサーバを経由し、お問い合わせ先の不動産会社にメールまたはFAXにて転送されるためアットホーム(株)にも保管されます。アットホーム(株)で保管された個人情報の取り扱いについては、【こちら】をご覧ください。
また、本画面でご記入いただいた個人情報は、お問い合わせ先の不動産会社でも保管します。 お問い合わせ先の不動産会社が保管する個人情報の取り扱いについては、不動産会社に直接お問い合わせください。
国土交通大臣免許(6)第5570号 |
|---|
- 交通:
- JR中央線/三鷹駅 徒歩1分
- 東京都武蔵野市中町1丁目13-2 伊藤ビル2F
- TEL:
- 0422-60-2532
- FAX:
- 0422-60-0132
取引態様:仲介  - 00784065
|
- スマートフォンで
この不動産会社を見る

|
- 提携サイト等より掲載されている物件情報につきましては、不動産会社詳細情報にリンクされていないものがあります。
- 物件に関するお問合せは、物件詳細ページの「情報提供会社」に表示されている不動産会社へ直接お願いいたします。
- 間取図は、現況を優先させていただきます。
- 映像は物件の一部を撮影したものです。物件の契約にあたっての最終判断はご自身の判断に基づいて行ってください。
- 仲介手数料について

アットホームは物件情報の適正化に努めております。
内容に誤りがある場合にはこちらへご連絡ください。